搜索
汉力达液压金币充值官方微信群液压资料下载
查看: 18256|回复: 48

回路动作异常 请教什么原因?

  [复制链接]
发表于 2014-1-3 21:59:23 | 显示全部楼层 |阅读模式
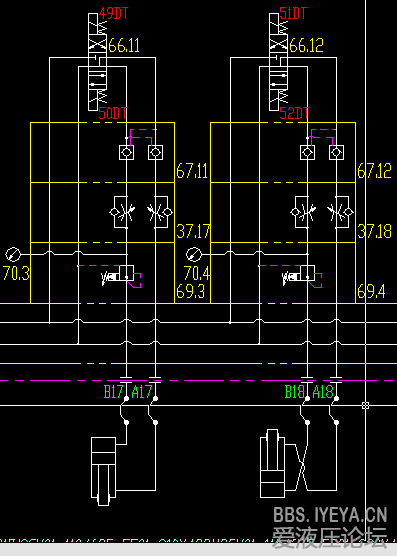
减压阀调至5MPa一下油缸伸出缩回动作明显缓慢,节流阀开口已经最大,5MPa以上正常 怎么回事?华德的阀
QQ截图20140103220303.png
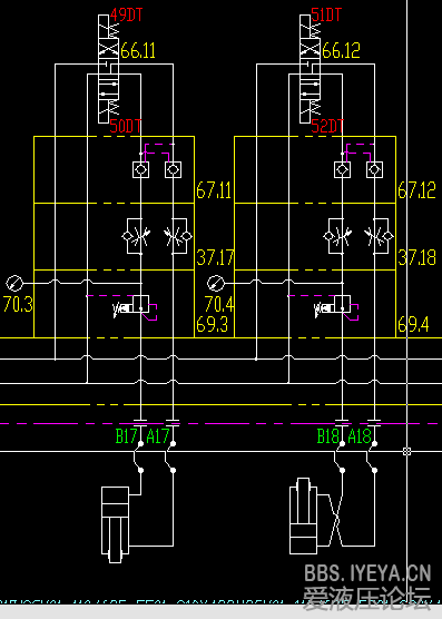
QQ截图20140103220445.png
  • 打卡等级:初来乍到
  • 打卡总天数:38
  • 打卡总奖励:101
发表于 2014-1-3 22:41:46 | 显示全部楼层
你查查你使用的减压阀的压力-流量曲线,分析一下。
回复

使用道具 举报

  • 打卡等级:论坛老炮
  • 打卡总天数:1172
  • 打卡总奖励:1822
发表于 2014-1-4 07:24:04 来自手机 | 显示全部楼层
你的减压阀设定压力太低导致推不动负载,有以下原则:负载运动压力即工作压力<减压阀设定压力<系统压力
回复

使用道具 举报

  • 打卡等级:无名新人
  • 打卡总天数:1
  • 打卡总奖励:1
发表于 2014-1-4 09:41:22 | 显示全部楼层
这个阀应该有过载保护的,
回复

使用道具 举报

发表于 2014-1-4 15:15:56 | 显示全部楼层
这样图示减压阀是错误的, 压力表测试点应该在此阀的B1口(也即B17和B18)
另外这不是普通常见的通过B口控制P油路的减压的阀,而型号显然是三通减压阀
回复

使用道具 举报

  • 打卡等级:论坛老炮
  • 打卡总天数:1172
  • 打卡总奖励:1822
发表于 2014-1-4 15:42:50 来自手机 | 显示全部楼层
测压点应在减压阀后,而不是阀前;另外应该是反向带单向阀的减压阀。
回复

使用道具 举报

 楼主| 发表于 2014-1-4 21:40:13 | 显示全部楼层
qqqqqqwwww 发表于 2014-1-4 07:24
你的减压阀设定压力太低导致推不动负载,有以下原则:负载运动压力即工作压力

不是这样的,我试过用4mpa的系统压力运动没问题(减压阀全部被死),但是减压到5mpa就不行了
回复

使用道具 举报

 楼主| 发表于 2014-1-4 21:42:44 | 显示全部楼层
qqqqqqwwww 发表于 2014-1-4 15:42
测压点应在减压阀后,而不是阀前;另外应该是反向带单向阀的减压阀。

单向阀的减压阀的话缩回应该是正常的,但现在伸出缩回都不正常啊
回复

使用道具 举报

 楼主| 发表于 2014-1-4 21:46:09 | 显示全部楼层
qqqqqqwwww 发表于 2014-1-4 15:42
测压点应在减压阀后,而不是阀前;另外应该是反向带单向阀的减压阀。

这个现场我改过来了,减压阀在换向阀之后
回复

使用道具 举报

 楼主| 发表于 2014-1-4 21:47:08 | 显示全部楼层
吸铁石 发表于 2014-1-4 15:15
这样图示减压阀是错误的, 压力表测试点应该在此阀的B1口(也即B17和B18)
另外这不是普通常见的通过B口控制 ...

没明白您的意思

点评

就是7#楼朋友讲的,测压点应在减压阀后,而不是阀前  发表于 2014-1-5 09:24
回复

使用道具 举报

您需要登录后才可以回帖 登录 | 立即注册

本版积分规则