搜索
汉力达液压金币充值官方微信群液压资料下载
查看: 15362|回复: 19

再次发布本人做的插装油路板

    [复制链接]
  • 打卡等级:初来乍到
  • 打卡总天数:58
  • 打卡总奖励:229
发表于 2014-4-9 19:34:41 | 显示全部楼层 |阅读模式
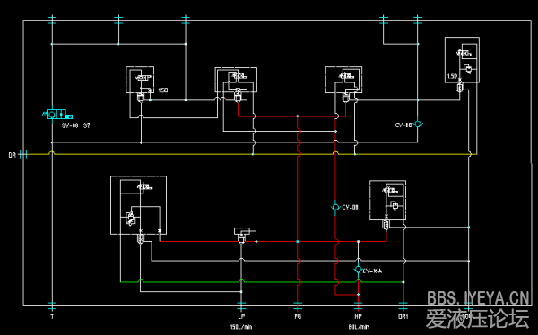
       这是本人做的插装油路块,这种布置及安装方式是本人第一次设计的。虽然是第一次,但总算成功,此油路板可在起动时实现快速前进。这次发布出来希望同行也能给点建议让本人能在哪方面可以改进。
263596.PNG
20140408194104.png
20140408194147.png
20140408194328.png
IMAG4497.jpg
IMAG4498.jpg
IMAG4499.jpg
IMAG4500.jpg
IMAG4501.jpg
IMAG4502.jpg
IMAG4538.jpg
IMAG4540.jpg
IMAG4541.jpg
IMAG4542.jpg
IMAG4545.jpg
IMAG4546.jpg

评分

参与人数 1金钱 +10 收起 理由
泛舟 + 10 支持原创!

查看全部评分

  • 打卡等级:常驻居民
  • 打卡总天数:340
  • 打卡总奖励:732
发表于 2014-4-9 21:30:21 | 显示全部楼层
是什么电机啊,没见过这种电机
回复

使用道具 举报

发表于 2014-4-9 21:37:24 | 显示全部楼层
楼主设计要求是什么?只是启动时快进吗?这是什么设备,希望能共同探讨。
回复

使用道具 举报

  • 打卡等级:初来乍到
  • 打卡总天数:58
  • 打卡总奖励:229
 楼主| 发表于 2014-4-9 21:43:11 | 显示全部楼层
不高兴 发表于 2014-4-9 21:30
是什么电机啊,没见过这种电机

双轴电机,一头接双联泵,另一头接齿轮泵
回复

使用道具 举报

  • 打卡等级:初来乍到
  • 打卡总天数:58
  • 打卡总奖励:229
 楼主| 发表于 2014-4-9 21:48:42 | 显示全部楼层
木木727 发表于 2014-4-9 21:37
楼主设计要求是什么?只是启动时快进吗?这是什么设备,希望能共同探讨。

此设备是废纸打包机。此油路板输入油是由双联泵提供的。设备起动时双联泵两泵同时供时,并差动前进。高压时由双联泵的高压泵供油,当系统达到设置的压力时就实行保压
回复

使用道具 举报

发表于 2014-4-9 23:12:44 | 显示全部楼层
压力的的那个弯头上,缠的是生胶带么?液压系统能缠生胶带么?我们都没这么弄过?
可以选PARKER的带ED密封圈的接头啊!避免用生胶带缠!
回复

使用道具 举报

  • 打卡等级:初来乍到
  • 打卡总天数:51
  • 打卡总奖励:394
发表于 2014-4-10 00:03:08 | 显示全部楼层
楼主强大,观摩学习了
回复

使用道具 举报

  • 打卡等级:以坛为家
  • 打卡总天数:772
  • 打卡总奖励:2750
发表于 2014-4-10 07:18:51 | 显示全部楼层
装配环境有点差强人意
回复

使用道具 举报

  • 打卡等级:伴坛终老
  • 打卡总天数:2453
  • 打卡总奖励:6766
发表于 2014-4-10 07:40:18 | 显示全部楼层
楼主液压造诣很高。
回复

使用道具 举报

  • 打卡等级:偶尔看看
  • 打卡总天数:118
  • 打卡总奖励:605
发表于 2014-4-10 08:24:38 | 显示全部楼层
学习了 谢谢楼主分享
回复

使用道具 举报

您需要登录后才可以回帖 登录 | 立即注册

本版积分规则