搜索
汉力达液压金币充值官方微信群液压资料下载
查看: 13199|回复: 20

两个减压阀并联的问题

[复制链接]
  • 打卡等级:无名新人
  • 打卡总天数:21
  • 打卡总奖励:56
发表于 2015-1-29 13:21:28 | 显示全部楼层 |阅读模式
两个减压阀并联后,泄油合在一起,会有什么问题?
  • 打卡等级:论坛老炮
  • 打卡总天数:1145
  • 打卡总奖励:1768
发表于 2015-1-29 13:41:51 | 显示全部楼层
说得不明不白的!听不懂
回复

使用道具 举报

  • 打卡等级:无名新人
  • 打卡总天数:4
  • 打卡总奖励:8
发表于 2015-1-29 13:52:07 | 显示全部楼层
看着像是教科书或者考试的问题,你想得到的答案是同型号调定压力差不多的减压阀泄油管合在一起会共振么?
回复

使用道具 举报

发表于 2015-1-29 14:25:08 | 显示全部楼层
一般那个泄油都是弹簧腔里的,那个要求直接回油箱以保证背压最小。你把并联的两个合并以后直接回油箱时尽可能使管径大点,管长度尽可能短,一般不会有问题的
回复

使用道具 举报

  • 打卡等级:无名新人
  • 打卡总天数:22
  • 打卡总奖励:80
发表于 2015-1-29 20:11:11 | 显示全部楼层
没关系  串联也没关系 管子内径大一点 须单独回油  否则压力不稳定  
回复

使用道具 举报

发表于 2015-1-29 21:25:22 | 显示全部楼层
wawaadd 发表于 2015-1-29 13:52
看着像是教科书或者考试的问题,你想得到的答案是同型号调定压力差不多的减压阀泄油管合在一起会共振么?

教科书共振这种较多,还一种是问,减压阀并联后接同一负载压力取决于哪个。
回复

使用道具 举报

  • 打卡等级:无名新人
  • 打卡总天数:21
  • 打卡总奖励:56
 楼主| 发表于 2015-1-30 13:21:23 | 显示全部楼层
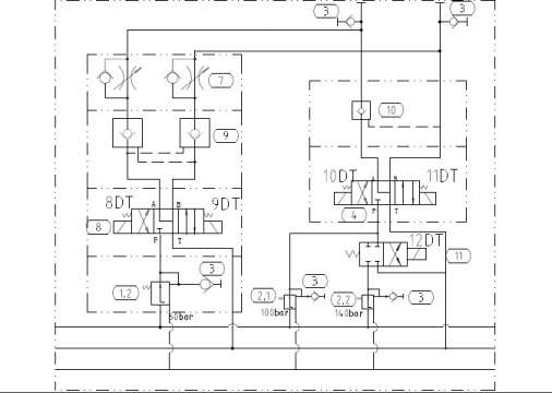
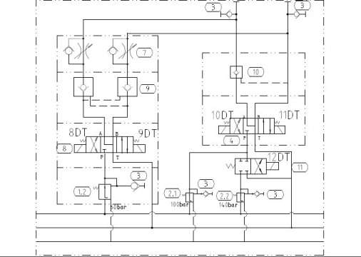
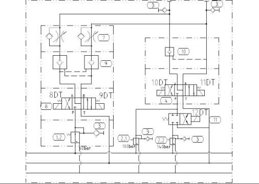
原理图是这样

回复

使用道具 举报

  • 打卡等级:无名新人
  • 打卡总天数:21
  • 打卡总奖励:56
 楼主| 发表于 2015-1-30 13:23:05 | 显示全部楼层
图中2.1和2.2是两个减压阀,泄油在集成块里合在一起通过22*3的管子回油箱

点评

泄油并在一起没啥问题,一定会直接回油箱。不对吗?  发表于 2015-1-30 22:51
回复

使用道具 举报

  • 打卡等级:论坛老炮
  • 打卡总天数:1145
  • 打卡总奖励:1768
发表于 2015-1-30 13:36:14 | 显示全部楼层
DR管
回复

使用道具 举报

  • 打卡等级:无名新人
  • 打卡总天数:21
  • 打卡总奖励:56
 楼主| 发表于 2015-1-30 13:47:01 | 显示全部楼层
减压阀型号 DR20-5-5X/200YM  力士乐

点评

与具体型号没关系  发表于 2015-1-30 22:50
回复

使用道具 举报

您需要登录后才可以回帖 登录 | 立即注册

本版积分规则