搜索
汉力达液压金币充值官方微信群液压资料下载
查看: 7526|回复: 10

砂浆泵液压原理请教

[复制链接]
发表于 2015-4-6 16:04:50 | 显示全部楼层 |阅读模式
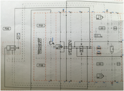
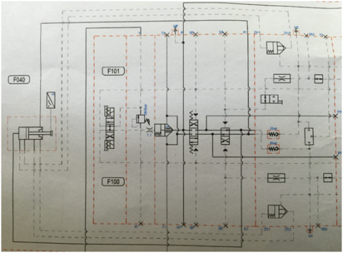
砂浆的液压原理图有几个地方不是很明白,希望有高手指点,谢谢。图1右边两根实线是主进油路,左边三根实线是回油路。
问题1:最左边那个油缸好像结构和一般的油缸不一样,有4根控制油路,而这4根控制油路分别是两两连接插装阀,但这两根控制油路的油压应该是一样的啊,那连接的插装阀就不能打开了啊?我就是想不通这两个插装阀怎么才能打开油路呢?





图1(远视)

图1(远视)

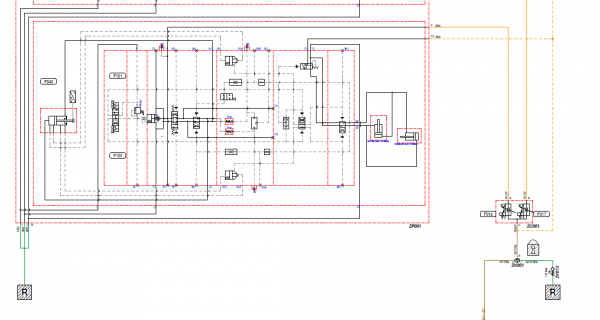
图2(局部图)

图2(局部图)
发表于 2015-4-6 17:38:13 | 显示全部楼层
这是盾构机上面的砂浆系统,图号503开头如果我记得不错
回复

使用道具 举报

发表于 2015-4-6 17:40:15 | 显示全部楼层
海瑞克的这个砂浆泵关键是上下的两个插装阀。买彩笔,慢慢画油液走线的图,分析油缸的动作你就能明白为什么油缸自动往复运动了,注意观察插装阀管路的安装位置很关键,图纸上面也画的很清楚了
回复

使用道具 举报

发表于 2015-4-6 17:46:15 | 显示全部楼层
如果看不懂,建议你去一号台车上面看,仔细看看砂浆泵管路是怎么安装的
回复

使用道具 举报

  • 打卡等级:无名新人
  • 打卡总天数:4
  • 打卡总奖励:8
发表于 2015-4-6 18:13:34 | 显示全部楼层
水泥泵的液压缸多是如此实现自动换向,活塞运动到基本底部的时候,在两个孔之间的位置一个孔通高压一个通回油,就可以 打开插装阀去实现液控换向了
回复

使用道具 举报

  • 打卡等级:无名新人
  • 打卡总天数:25
  • 打卡总奖励:199
发表于 2015-4-6 21:16:29 | 显示全部楼层
本帖最后由 wuzhong 于 2015-4-6 21:41 编辑

最左边油缸的四条油路现在看是将插装阀关闭的,考虑到油缸的活塞是持续运动的,当油缸运动到左侧将下面的两条控制油路隔开时,有杆腔的高压油将打开插装阀实现先一步的控制功能,运动到右侧也是同样的道理!
回复

使用道具 举报

  • 打卡等级:无名新人
  • 打卡总天数:25
  • 打卡总奖励:199
发表于 2015-4-6 21:17:04 | 显示全部楼层
本帖最后由 wuzhong 于 2015-4-6 21:18 编辑

最左边油缸的四条油路现在看是将插装阀关闭的,考虑到油缸的活塞是持续运动的,当油缸运动到左侧将下面的两条控制油路隔开时,插装阀的上腔接无杆腔回油,有杆腔的高压油将打开插装阀,实现先一步的控制功能,运动到右侧也是同样的道理!
回复

使用道具 举报

 楼主| 发表于 2015-4-7 09:12:10 | 显示全部楼层
chenliang47 发表于 2015-4-6 17:38
这是盾构机上面的砂浆系统,图号503开头如果我记得不错

高手,您好,我QQ54372796,手机13547481588,能加我好友进一步联系吗?
回复

使用道具 举报

 楼主| 发表于 2015-4-7 09:16:45 | 显示全部楼层
wuzhong 发表于 2015-4-6 21:17
最左边油缸的四条油路现在看是将插装阀关闭的,考虑到油缸的活塞是持续运动的,当油缸运动到左侧将下面的两 ...

谢谢指点,我去现场看看,谢谢了
回复

使用道具 举报

 楼主| 发表于 2015-4-7 09:17:40 | 显示全部楼层
chenliang47 发表于 2015-4-6 17:38
这是盾构机上面的砂浆系统,图号503开头如果我记得不错

的确是TBM上的图纸,能加我QQ好友54372796进一步讨论吗,谢谢
回复

使用道具 举报

您需要登录后才可以回帖 登录 | 立即注册

本版积分规则