设为首页
收藏本站
所有帖子
关于我们
联系我们
微信群
开启辅助访问
搜索
搜索
本版
用户
门户
Portal
资讯
液压资讯
观点
观点
产品
液压产品
技术
液压技术
合集
导读
Guide
下载
签到
金币
论坛
BBS
登录
立即注册
腾讯QQ
账号
自动登录
找回密码
密码
登录
立即注册
只需一步,快速开始
好友
动态
收藏
分享
帖子
日志
记录
相册
留言板
勋章
任务
道具
设置
退出
液压圈
»
论坛
›
液压元件
›
插装阀
›
有愿意兼职画个油路块吗?
负载敏感资料下载
|
液压培训资料下载
|
液压样本下载
|
AMESim资料下载
|
力士乐资料下载
|
挖掘机资料下载
|
标准资料下载
|
多路阀资料下载
1
2
/ 2 页
下一页
返回列表
查看:
8467
|
回复:
15
有愿意兼职画个油路块吗?
[复制链接]
wieka
wieka
当前离线
积分
10
注册时间
2016-1-28
最后登录
1970-1-1
IP卡
狗仔卡
发表于 2016-1-28 10:24:02
|
显示全部楼层
|
阅读模式
本帖最后由 wieka 于 2016-1-29 08:21 编辑
有愿意兼职画个油路块吗?
有愿意兼职画个油路块吗?
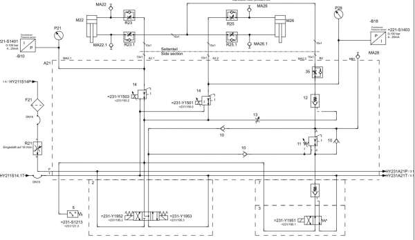
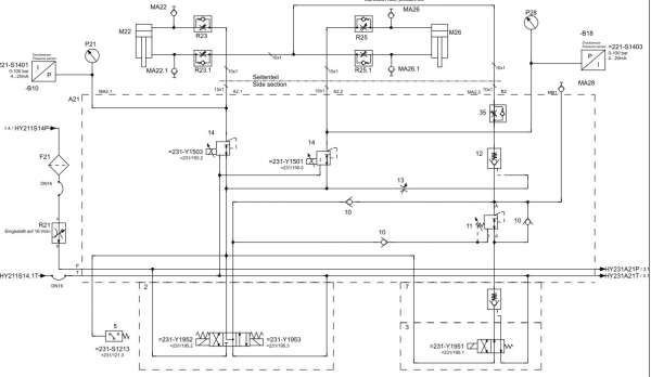
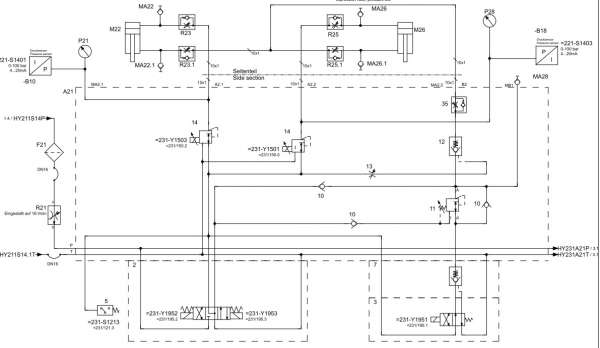
如图所示,设计油路块,压力100bar,流量16l/min,包括阀的选型,华德液压或台湾品牌,要求提供Solidworks源文件,可提供部分参考实物图,有意者可邮件联系,谢谢!
welkin3061@163.com
回复
使用道具
举报
提升卡
置顶卡
变色卡
13907155562
13907155562
当前离线
积分
43
注册时间
2016-1-26
最后登录
1970-1-1
IP卡
狗仔卡
发表于 2016-1-28 13:14:32
|
显示全部楼层
这个系统是为了双缸同步吗?
回复
使用道具
举报
13907155562
13907155562
当前离线
积分
43
注册时间
2016-1-26
最后登录
1970-1-1
IP卡
狗仔卡
发表于 2016-1-28 13:17:16
|
显示全部楼层
可告诉电话吗?
回复
使用道具
举报
13907155562
13907155562
当前离线
积分
43
注册时间
2016-1-26
最后登录
1970-1-1
IP卡
狗仔卡
发表于 2016-1-28 13:29:27
|
显示全部楼层
不对称负载的同步回路?
回复
使用道具
举报
wieka
wieka
当前离线
积分
10
注册时间
2016-1-28
最后登录
1970-1-1
IP卡
狗仔卡
楼主
|
发表于 2016-1-28 15:38:23
|
显示全部楼层
本帖最后由 wieka 于 2016-1-28 15:39 编辑
同步没有啥特殊的,主要是实现背压。双缸压下工作时要平衡设备本身的重量,同时左右侧压力可根据生产工艺要求可调。
回复
使用道具
举报
tczz
tczz
当前离线
积分
441
注册时间
2015-8-7
最后登录
1970-1-1
IP卡
狗仔卡
打卡等级:即来则安
打卡总天数:263
打卡总奖励:291
发表于 2016-1-28 16:23:49
|
显示全部楼层
要兼职的人多咯!11
回复
使用道具
举报
一路走着
一路走着
当前离线
积分
123
注册时间
2012-6-9
最后登录
1970-1-1
IP卡
狗仔卡
打卡等级:无名新人
打卡总天数:11
打卡总奖励:30
发表于 2016-1-28 23:05:10
|
显示全部楼层
最近没时间,年后可能会有时间
回复
使用道具
举报
wieka
wieka
当前离线
积分
10
注册时间
2016-1-28
最后登录
1970-1-1
IP卡
狗仔卡
楼主
|
发表于 2016-1-29 08:21:00
|
显示全部楼层
江浙沪优先,有合作加工厂优先,有意者请发邮件告知联系方式
回复
使用道具
举报
liuyouhong88
liuyouhong88
当前离线
积分
58
注册时间
2015-8-10
最后登录
1970-1-1
IP卡
狗仔卡
打卡等级:常驻居民
打卡总天数:341
打卡总奖励:984
发表于 2016-1-29 16:01:52
|
显示全部楼层
可直接信息商量!!
回复
使用道具
举报
阳光中的向日葵
阳光中的向日葵
当前离线
积分
40
注册时间
2016-2-4
最后登录
1970-1-1
IP卡
狗仔卡
发表于 2016-3-25 12:19:34
|
显示全部楼层
可长期做兼职么?电话联系18640041947
回复
使用道具
举报
下一页 »
1
2
/ 2 页
下一页
返回列表
高级模式
B
Color
Image
Link
Quote
Code
Smilies
您需要登录后才可以回帖
登录
|
立即注册
本版积分规则
发表回复
回帖后跳转到最后一页
浏览过的版块
液压泵马达
快速回复
返回顶部
返回列表