设为首页
收藏本站
所有帖子
关于我们
联系我们
微信群
开启辅助访问
搜索
搜索
本版
用户
门户
Portal
资讯
液压资讯
观点
观点
产品
液压产品
技术
液压技术
合集
导读
Guide
下载
签到
金币
论坛
BBS
登录
立即注册
腾讯QQ
账号
自动登录
找回密码
密码
登录
立即注册
只需一步,快速开始
好友
动态
收藏
分享
帖子
日志
记录
相册
留言板
勋章
任务
道具
设置
退出
液压圈
»
论坛
›
液压系统
›
液压技术
›
请大家帮助!!
负载敏感资料下载
|
液压培训资料下载
|
液压样本下载
|
AMESim资料下载
|
力士乐资料下载
|
挖掘机资料下载
|
标准资料下载
|
多路阀资料下载
1
2
/ 2 页
下一页
返回列表
查看:
5970
|
回复:
12
请大家帮助!!
[复制链接]
rechard_pan
rechard_pan
当前离线
积分
21
注册时间
2017-6-6
最后登录
1970-1-1
IP卡
狗仔卡
打卡等级:初来乍到
打卡总天数:37
打卡总奖励:119
发表于 2017-7-22 08:03:05
|
显示全部楼层
|
阅读模式
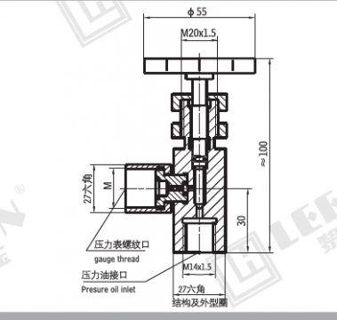
请问你了解0-40Mpa的压力表连接是用O形圈,还是用组合密封垫圈?
请大家帮助!!
回复
使用道具
举报
提升卡
置顶卡
变色卡
wable0012
wable0012
当前离线
积分
22
注册时间
2016-4-20
最后登录
1970-1-1
IP卡
狗仔卡
发表于 2017-7-22 09:00:20
|
显示全部楼层
压力表密封一般不在你所指位置,在下端面。你可以参考一下压力表开关或测压接头结构。
回复
使用道具
举报
wable0012
wable0012
当前离线
积分
22
注册时间
2016-4-20
最后登录
1970-1-1
IP卡
狗仔卡
发表于 2017-7-22 09:12:39
|
显示全部楼层
压力表开关结构
压力表开关结构
回复
使用道具
举报
ffyy1134
ffyy1134
当前离线
积分
33
注册时间
2014-10-23
最后登录
1970-1-1
IP卡
狗仔卡
打卡等级:偶尔看看
打卡总天数:158
打卡总奖励:479
发表于 2017-7-22 15:20:41
|
显示全部楼层
最下面那个凸起那里有个很小的O型圈
评分
参与人数
1
金钱
+8
收起
理由
吸铁石
+ 8
查看全部评分
回复
使用道具
举报
hlw1022
hlw1022
当前离线
积分
16
注册时间
2017-6-9
最后登录
1970-1-1
IP卡
狗仔卡
打卡等级:无名新人
打卡总天数:14
打卡总奖励:47
发表于 2017-7-22 19:44:18
|
显示全部楼层
以上两位正解啊。
回复
使用道具
举报
仁者爱人
仁者爱人
当前离线
积分
170
注册时间
2016-9-23
最后登录
1970-1-1
IP卡
狗仔卡
打卡等级:偶尔看看
打卡总天数:126
打卡总奖励:352
发表于 2017-7-23 20:34:50
|
显示全部楼层
最下面加小O型圈!
回复
使用道具
举报
液压小后生
液压小后生
当前离线
积分
36
注册时间
2014-8-14
最后登录
1970-1-1
IP卡
狗仔卡
打卡等级:无名新人
打卡总天数:3
打卡总奖励:10
发表于 2017-7-24 07:57:48
|
显示全部楼层
最下面那个凸起来的地方
回复
使用道具
举报
15901814350
15901814350
当前离线
积分
23
注册时间
2017-6-5
最后登录
1970-1-1
IP卡
狗仔卡
发表于 2017-7-25 13:41:31
|
显示全部楼层
配合紫铜垫密封
回复
使用道具
举报
小小毛孩
小小毛孩
当前离线
积分
5
注册时间
2017-8-10
最后登录
1970-1-1
IP卡
狗仔卡
发表于 2017-8-10 22:28:43
|
显示全部楼层
啥垫也不用加,突出的铜头会与锥形面形成金属密封的,只需将活螺母拧紧了保证压紧力肯定没问题
回复
使用道具
举报
13945285542
13945285542
当前离线
积分
69
注册时间
2016-10-25
最后登录
1970-1-1
IP卡
狗仔卡
发表于 2017-8-11 19:41:31
|
显示全部楼层
表座内有O型密封圈
回复
使用道具
举报
下一页 »
1
2
/ 2 页
下一页
返回列表
高级模式
B
Color
Image
Link
Quote
Code
Smilies
您需要登录后才可以回帖
登录
|
立即注册
本版积分规则
发表回复
回帖后跳转到最后一页
浏览过的版块
工程机械
供求信息
快速回复
返回顶部
返回列表