搜索
金币充值液压资料下载官方微信群
查看: 3735|回复: 17

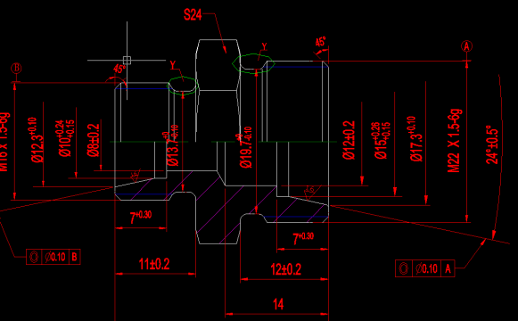
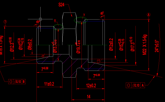
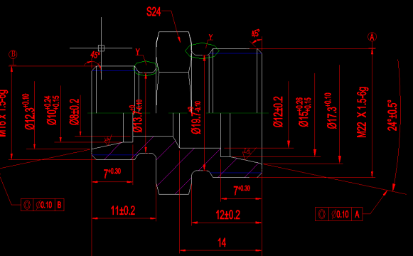
卡套24°锥接头加工图(就图片中就可以)

  [复制链接]
  • 打卡等级:以坛为家
  • 打卡总天数:706
  • 打卡总奖励:1162
发表于 2022-12-12 08:50:40 | 显示全部楼层 |阅读模式
悬赏200金钱已解决
有的兄弟们  留下联系方式
微信截图_20221212084913.png

最佳答案

查看完整内容

卡套头部都是按照iso标准尺寸画的
发表于 2022-12-12 08:50:41 | 显示全部楼层
卡套头部都是按照iso标准尺寸画的
111.png
回复

使用道具 举报

发表于 2022-12-13 20:25:52 | 显示全部楼层
这种接头图纸一个小时可以画好几张
回复

使用道具 举报

  • 打卡等级:以坛为家
  • 打卡总天数:706
  • 打卡总奖励:1162
 楼主| 发表于 2022-12-14 14:16:13 | 显示全部楼层
MistetSmith 发表于 2022-12-13 20:25
这种接头图纸一个小时可以画好几张

你可以先画两个系列看看吗
回复

使用道具 举报

  • 打卡等级:以坛为家
  • 打卡总天数:706
  • 打卡总奖励:1162
 楼主| 发表于 2023-2-9 16:05:22 | 显示全部楼层
没有人就撤销吧
回复

使用道具 举报

  • 打卡等级:论坛老炮
  • 打卡总天数:1355
  • 打卡总奖励:2132
发表于 2023-2-11 21:21:38 来自手机 | 显示全部楼层
这个就是有个关键尺寸,24°锥喇叭口母口最大尺寸,就是大一点也封不住油。
回复

使用道具 举报

  • 打卡等级:论坛老炮
  • 打卡总天数:1355
  • 打卡总奖励:2132
发表于 2023-2-13 16:25:52 来自手机 | 显示全部楼层
这是锥口28的,仅供参考。
IMG_20230213_155630.jpg
回复

使用道具 举报

  • 打卡等级:以坛为家
  • 打卡总天数:706
  • 打卡总奖励:1162
 楼主| 发表于 2023-2-15 16:50:22 | 显示全部楼层
qqqqqqwwww 发表于 2023-2-13 16:25
这是锥口28的,仅供参考。

要标准的  类似图片中 微信截图_20230215164956.png
回复

使用道具 举报

  • 打卡等级:论坛老炮
  • 打卡总天数:1355
  • 打卡总奖励:2132
发表于 2023-2-16 10:19:01 来自手机 | 显示全部楼层
hu123 发表于 2023-2-15 16:50
要标准的  类似图片中

你这个够标准的了,我们都是检修或者改造更换接头,随便画画,没那么精确。要是大批量加工制造,得严格按你这种图纸。
回复

使用道具 举报

发表于 2023-6-27 14:02:01 | 显示全部楼层
这个可以有  伊顿派克标准都可以出图
回复

使用道具 举报

您需要登录后才可以回帖 登录 | 立即注册

本版积分规则