搜索
汉力达液压金币充值官方微信群液压资料下载
查看: 2872|回复: 11

恒压变量泵为什么会出现这种现象

[复制链接]
  • 打卡等级:无名新人
  • 打卡总天数:5
  • 打卡总奖励:5
发表于 2023-5-14 21:07:43 | 显示全部楼层 |阅读模式
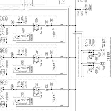
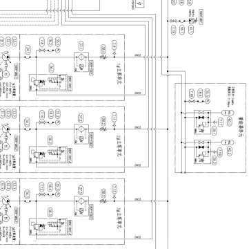
三个恒压,泵一设定11,泵二设定13,泵三设定9.8,我先启动二号泵在启动一三号泵,发现一号泵的斜盘来回轻微摆动,频率比较快,过了五六秒回复正常,三号泵就没有这种情况,然后我又试了下先启动一三号泵再启动二号泵或者只启动一号泵就没有以上情况的发生,我最开始怀疑是泵的内泄量大于最小排量导致的,但是解释不了为什么过了五六秒又恢复正常,也解释不了为什么单独启动或者先启动一号泵的时候没有这种情况发生,只是在先启动二号泵再启动一号泵的时候发生这种现象,把压力调高至13现象也会消失,请各位前辈指点一下迷津
106149449719960763.jpg
  • 打卡等级:偶尔看看
  • 打卡总天数:66
  • 打卡总奖励:158
发表于 2023-5-15 16:22:39 | 显示全部楼层
此回路是三恒压泵经单向阀合流带蓄能器供液回路。
泵2启动后向蓄能器充液,充液过程中再启动泵1、泵3,泵1加入充液。因泵1设置压力11MPa接近蓄能器充液压力11.5MPa,加入充液时充液压力已接近泵1设置压力,故短时间泵1处于充液、卸载临界状态,发生斜盘摆动。蓄能器进油管通径偏小会加剧此现象。5~6秒后充液压力达到蓄能器充液压力,泵1、泵2先后进入稳定卸载状态。充液进油管通径偏小会加剧此现象。
泵3启动时充液压力已大于泵3设置压力,故实际未参与充液,直接进入卸载状态,也不会发生卸载临界状态。
回复

使用道具 举报

  • 打卡等级:论坛老炮
  • 打卡总天数:980
  • 打卡总奖励:1694
发表于 2023-5-15 19:04:01 来自手机 | 显示全部楼层
zzfjct 发表于 2023-5-15 16:22
此回路是三恒压泵经单向阀合流带蓄能器供液回路。
泵2启动后向蓄能器充液,充液过程中再启动泵1、泵3,泵1 ...

为什么充油管小会加剧呢?
回复

使用道具 举报

  • 打卡等级:偶尔看看
  • 打卡总天数:66
  • 打卡总奖励:158
发表于 2023-5-16 12:42:34 | 显示全部楼层
1648183658 发表于 2023-5-15 19:04
为什么充油管小会加剧呢?

充液管通径偏小时管路压降随双泵或单泵充液影响更大,对泵源而言相当于负载压力变化,当压力变化覆盖泵1设置压力时可能发生充液、卸载临界状态。
回复

使用道具 举报

  • 打卡等级:无名新人
  • 打卡总天数:5
  • 打卡总奖励:5
 楼主| 发表于 2023-5-16 17:17:40 | 显示全部楼层
zzfjct 发表于 2023-5-15 16:22
此回路是三恒压泵经单向阀合流带蓄能器供液回路。
泵2启动后向蓄能器充液,充液过程中再启动泵1、泵3,泵1 ...

我这个单向阀是M-SR直角式单向阀,先启动二号泵的时候,压力油直接把一号泵出口的单向阀给压死了,再启动一号泵在单向阀两端受力面积相等的情况下,因压力比二号泵小打不开单向阀,所以应该处于最小摆角状态,不存在于向蓄能器充液
回复

使用道具 举报

  • 打卡等级:偶尔看看
  • 打卡总天数:66
  • 打卡总奖励:158
发表于 2023-5-17 11:49:11 | 显示全部楼层
17603710516 发表于 2023-5-16 17:17
我这个单向阀是M-SR直角式单向阀,先启动二号泵的时候,压力油直接把一号泵出口的单向阀给压死了,再启动 ...

单泵排量180L/min即3L/s,蓄能器容量40L*2=80L,80L/3L≈27s,如果充液时间小于27s,就存在双泵充液。
因泵1设定压力接近蓄能器充液压力,泵1启动时充液压力尚未达到泵1设定压力,由于双泵充液与单泵 充液时管路压降的细微影响,所以泵1会产生充液、卸载的临界状态。
回复

使用道具 举报

  • 打卡等级:无名新人
  • 打卡总天数:5
  • 打卡总奖励:5
 楼主| 发表于 2023-5-17 21:01:52 | 显示全部楼层
zzfjct 发表于 2023-5-17 11:49
单泵排量180L/min即3L/s,蓄能器容量40L*2=80L,80L/3L≈27s,如果充液时间小于27s,就存在双泵充液。
因 ...

两个蓄能器总容积80,充气压力11.5,系统最高压力13,蓄能器怎么可能能充液80升呐,
回复

使用道具 举报

  • 打卡等级:无名新人
  • 打卡总天数:5
  • 打卡总奖励:5
 楼主| 发表于 2023-5-17 21:32:47 | 显示全部楼层
zzfjct 发表于 2023-5-17 11:49
单泵排量180L/min即3L/s,蓄能器容量40L*2=80L,80L/3L≈27s,如果充液时间小于27s,就存在双泵充液。
因 ...

因为我观察在我启动一号泵系统已经压力是13,所以二号泵早已完成充液,在压力差的作用下一号泵怎么可能顶开单向阀向蓄能器充液,所以发生这种现象不是你所说的这个原因造成的
回复

使用道具 举报

  • 打卡等级:论坛老炮
  • 打卡总天数:1170
  • 打卡总奖励:1820
发表于 2023-5-21 09:58:48 来自手机 | 显示全部楼层
为什么三台泵设定偏差这么大?最大与最小相差3.2,应该尽量设定一致。那个设定9.8的小流量时基本不出力,成摆设了。
回复

使用道具 举报

  • 打卡等级:无名新人
  • 打卡总天数:5
  • 打卡总奖励:5
 楼主| 发表于 2023-5-22 08:13:35 | 显示全部楼层
qqqqqqwwww 发表于 2023-5-21 09:58
为什么三台泵设定偏差这么大?最大与最小相差3.2,应该尽量设定一致。那个设定9.8的小流量时基本不出力,成 ...

都是乱调的,我这个是打包机的液压站,因为盘丝的钢种或者规格不一样,有时候为了控制包型长度或者避免夹伤调的压力
回复

使用道具 举报

您需要登录后才可以回帖 登录 | 立即注册

本版积分规则