搜索
金币充值液压资料下载官方微信群
查看: 11415|回复: 22

请教 关于先导式溢流阀的问题

[复制链接]
  • 打卡等级:无名新人
  • 打卡总天数:1
  • 打卡总奖励:1
发表于 2013-7-6 14:24:17 | 显示全部楼层 |阅读模式
本帖最后由 joust 于 2013-7-6 14:43 编辑

我单位有一台液压校正机,主要用来校压弯曲的钢管,现发现设备的溢流阀出现故障,经多次检查,问题仍得不到解决,特来请教下各位:
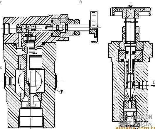
溢流阀为先导式溢流阀,结构见图:

先导式溢流阀

先导式溢流阀


故障说明:设备在校压管子时,压力小。早上上班后正常工作10分钟后出现压力低情况后停机,未进行任何处理第二天早上又可正常工作10分钟后,出现压力低现象。

检查情况:1、调节溢流阀压力调节旋钮,调至最大,仍出现无压力现象。
                 2、将溢流阀卸荷口的油管卸下,测试发现,设备在正常运转,系统未加载负荷情况下溢流阀关闭正常。在系统加载很小负荷(不能满足要求的压力)后溢流阀溢流。
               3、根据第二条判断主阀芯工作正常。怀疑先导阀出现故障。拆下先导阀后,检查了弹簧、阀芯、阀座以及主阀芯的阻尼孔,均未见异常,后将所有配件全部清洗后重新安装。经试验发现,问题依然存在,且没有了开始时还可工作10分钟的情况。

请教:因为将溢流阀拆下、装上检查好几次了,问题一直未得到解决,查不到原因,希望大家帮忙分析分析。谢谢!

         

点评

问题解决了,答案在20楼!***提供问题并给出了答案,感谢大家无私交流!  发表于 2013-7-23 23:13
  • 打卡等级:初来乍到
  • 打卡总天数:31
  • 打卡总奖励:75
发表于 2013-7-7 09:53:28 | 显示全部楼层
油温多少度?若油泵损耗严重或液压缸泄漏,会出现油温上升,系统便失压。但10分钟则比较怪,有压力开关之类的元件吗?有油路图可助排除固障。
回复

使用道具 举报

  • 打卡等级:论坛老炮
  • 打卡总天数:1311
  • 打卡总奖励:2066
发表于 2013-7-7 15:55:04 | 显示全部楼层
先导阀的锥阀芯有没有磨损?
回复

使用道具 举报

  • 打卡等级:无名新人
  • 打卡总天数:1
  • 打卡总奖励:1
 楼主| 发表于 2013-7-8 09:36:23 | 显示全部楼层
qqqqqqwwww 发表于 2013-7-7 15:55
先导阀的锥阀芯有没有磨损?

阀芯没磨损。还更换过先导阀的阀座和阀芯,问题未解。
回复

使用道具 举报

  • 打卡等级:无名新人
  • 打卡总天数:1
  • 打卡总奖励:1
 楼主| 发表于 2013-7-8 09:38:30 | 显示全部楼层
游勇 发表于 2013-7-7 09:53
油温多少度?若油泵损耗严重或液压缸泄漏,会出现油温上升,系统便失压。但10分钟则比较怪,有压力开关之类 ...

开始出现问题时,油温有些高,设备停了之后,第二天早上试验时,只有10分钟正常,油温也很低。说明和油温没关系。
回复

使用道具 举报

  • 打卡等级:无名新人
  • 打卡总天数:1
  • 打卡总奖励:1
 楼主| 发表于 2013-7-8 09:51:09 | 显示全部楼层
本帖最后由 joust 于 2013-7-8 09:52 编辑

问题一直未解决,现附上原理图,请大家帮忙看看,远程调压那一路现在不起作用,已经在远端堵上了。
照片.jpg
回复

使用道具 举报

  • 打卡等级:以坛为家
  • 打卡总天数:821
  • 打卡总奖励:1299
发表于 2013-7-8 10:23:25 | 显示全部楼层
检查主阀芯上的小阻尼孔(0.5~1mm左右)是否堵塞。
回复

使用道具 举报

  • 打卡等级:无名新人
  • 打卡总天数:1
  • 打卡总奖励:1
 楼主| 发表于 2013-7-8 11:11:08 | 显示全部楼层
海中游 发表于 2013-7-8 10:23
检查主阀芯上的小阻尼孔(0.5~1mm左右)是否堵塞。

检查过了,没有堵塞。{:9_221:}
回复

使用道具 举报

  • 打卡等级:论坛老炮
  • 打卡总天数:1311
  • 打卡总奖励:2066
发表于 2013-7-8 13:58:34 来自手机 | 显示全部楼层
我认为若主阀芯阻尼孔没堵塞的话,还是先导阀的问题,泄漏产生压差将主阀打开,可以试着调压弹簧加个垫片看有没有效果,或者更换一个同型号的安全阀。

评分

参与人数 1金钱 +8 收起 理由
谁心索欲 + 8 赞一个!

查看全部评分

回复

使用道具 举报

  • 打卡等级:无名新人
  • 打卡总天数:1
  • 打卡总奖励:1
 楼主| 发表于 2013-7-8 15:19:26 | 显示全部楼层
qqqqqqwwww 发表于 2013-7-8 13:58
我认为若主阀芯阻尼孔没堵塞的话,还是先导阀的问题,泄漏产生压差将主阀打开,可以试着调压弹簧加个垫片看有没 ...

意思是弹簧弹力不好了?在将先导阀全部关完的情况下弹簧的力量还是小?
回复

使用道具 举报

您需要登录后才可以回帖 登录 | 立即注册

本版积分规则