搜索
汉力达液压金币充值官方微信群液压资料下载
查看: 13902|回复: 15

各位老师,液压集成块怎么设计啊

[复制链接]
发表于 2013-4-24 15:29:14 | 显示全部楼层 |阅读模式
我的毕设要设计液压集成块,但是现在没有思路怎么设计,以前没学过。我已经设计了液压原理图和选择了液压元件,就是不会设计液压集成块。还有集成块用什么软件画三维图比较好?
发表于 2013-4-24 15:37:06 | 显示全部楼层
液压阀块设计不是很难的,你了解阀的P、T、A、B口液压油是怎么流动的之后,就可以开始设计了,如果发现有干涉的油路,你可以采用工艺孔。液压油路块设计的要小巧,安装一定要方便。可以用UG、PRE软件都可以的。
回复

使用道具 举报

 楼主| 发表于 2013-4-24 15:41:20 | 显示全部楼层
追风的沙 发表于 2013-4-24 15:37
液压阀块设计不是很难的,你了解阀的P、T、A、B口液压油是怎么流动的之后,就可以开始设计了,如果发现有干 ...

亲问,有集成块这方面的资料吗
回复

使用道具 举报

  • 打卡等级:无名新人
  • 打卡总天数:22
  • 打卡总奖励:89
发表于 2013-4-24 21:20:22 | 显示全部楼层
把你的液压原理图传上来看看,我帮你设计看看
回复

使用道具 举报

  • 打卡等级:无名新人
  • 打卡总天数:11
  • 打卡总奖励:60
发表于 2013-4-25 12:41:44 | 显示全部楼层
画图还要思路? 先随意布置油口,之后你就会发现好与不好、怎样改了。。难点是
阀芯安装孔、油口接口要按标准去画。
回复

使用道具 举报

 楼主| 发表于 2013-4-25 19:07:48 | 显示全部楼层
andyyan1985 发表于 2013-4-24 21:20
把你的液压原理图传上来看看,我帮你设计看看

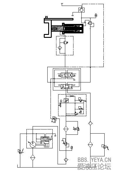
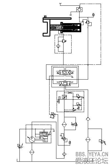
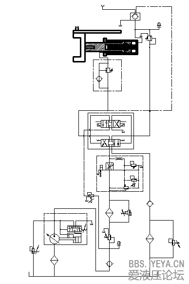
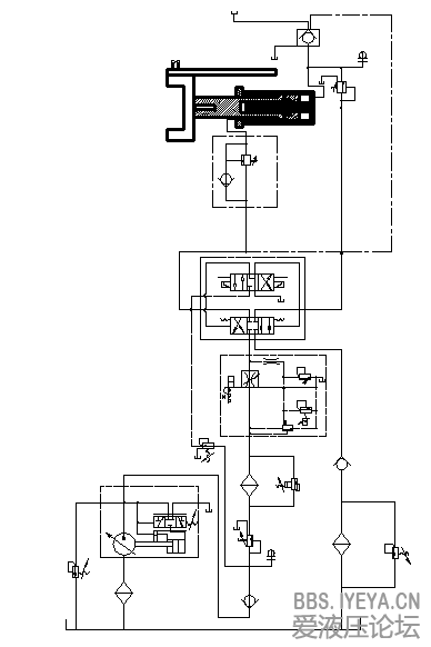
这是原理图,帮我设计下,谢谢
原理图.png

点评

不错,楼主的回路可以用,但电机会带载起动。给楼主一个比较简单及合理的油路参考。  详情 回复 发表于 2013-4-26 10:42
回复

使用道具 举报

发表于 2013-4-25 20:59:49 | 显示全部楼层
看好油口,画图就行了
回复

使用道具 举报

  • 打卡等级:无名新人
  • 打卡总天数:22
  • 打卡总奖励:89
发表于 2013-4-25 23:21:17 | 显示全部楼层
你的 原理图是不是有问题啊,你用个变量泵怎么连个LS反馈回路都没有?
回复

使用道具 举报

  • 打卡等级:初来乍到
  • 打卡总天数:30
  • 打卡总奖励:74
发表于 2013-4-26 10:42:58 | 显示全部楼层
zgjxwll818 发表于 2013-4-25 19:07
这是原理图,帮我设计下,谢谢

不错,楼主的回路可以用,但电机会带载起动。给楼主一个比较简单及合理的油路参考。

Pre-fill circuit.jpg
回复

使用道具 举报

  • 打卡等级:无名新人
  • 打卡总天数:2
  • 打卡总奖励:5
发表于 2013-4-28 14:30:30 | 显示全部楼层
andyyan1985 发表于 2013-4-25 23:21
你的 原理图是不是有问题啊,你用个变量泵怎么连个LS反馈回路都没有?

哥们儿,工业系统有用负荷传感的吗,看好了,是恒压变量泵!
回复

使用道具 举报

您需要登录后才可以回帖 登录 | 立即注册

本版积分规则