设为首页
收藏本站
所有帖子
关于我们
联系我们
微信群
开启辅助访问
搜索
搜索
本版
用户
门户
Portal
资讯
液压资讯
观点
观点
产品
液压产品
技术
液压技术
合集
导读
Guide
下载
签到
金币
论坛
BBS
登录
立即注册
腾讯QQ
账号
自动登录
找回密码
密码
登录
立即注册
只需一步,快速开始
好友
动态
收藏
分享
帖子
日志
记录
相册
留言板
勋章
任务
道具
设置
退出
液压圈
»
论坛
›
液压元件
›
液压泵马达
›
柱塞泵与马达柱塞、滑靴等结构问题探讨 ...
负载敏感资料下载
|
液压培训资料下载
|
液压样本下载
|
AMESim资料下载
|
力士乐资料下载
|
挖掘机资料下载
|
标准资料下载
|
多路阀资料下载
1
2
3
4
5
6
/ 6 页
下一页
返回列表
查看:
36155
|
回复:
52
柱塞泵与马达柱塞、滑靴等结构问题探讨
[复制链接]
xiaoshxin
xiaoshxin
当前离线
积分
1997
注册时间
2010-12-4
最后登录
1970-1-1
IP卡
狗仔卡
发表于 2013-12-5 21:11:55
|
显示全部楼层
|
阅读模式
本帖最后由 xiaoshxin 于 2013-12-5 21:36 编辑
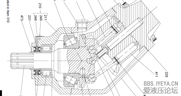
图中13、14是什么零件,有何用途
图中6是什么零件,有何用途
图中6和9零件用来限制8,有些
泵
没有6和9,什么时候需要6和9
图中2是什么东西,
图4的弹簧是什么用途,
柱塞泵
,
马达
相关帖子
.
丹佛斯H1B马达
.
柱塞泵简介(应用、结构、特点)
.
赫格隆CA70 70 SALN00 02 00马达样本、图纸、及控制阀
.
派克液压泵基础培训资料
.
请大侠帮我出主意!我选泵!
.
派克PV泵样本
.
力士乐泵资料
.
Liebherr吊机旋转速度慢
.
力士乐A4VG、a6VM、a10VO结构视频
回复
使用道具
举报
提升卡
置顶卡
变色卡
xiaoshxin
xiaoshxin
当前离线
积分
1997
注册时间
2010-12-4
最后登录
1970-1-1
IP卡
狗仔卡
楼主
|
发表于 2013-12-5 21:28:01
|
显示全部楼层
滑靴包柱塞
柱塞包滑靴
回复
使用道具
举报
xiaoshxin
xiaoshxin
当前离线
积分
1997
注册时间
2010-12-4
最后登录
1970-1-1
IP卡
狗仔卡
楼主
|
发表于 2013-12-5 21:40:10
|
显示全部楼层
力士乐A4VG闭式泵伺服机构
回复
使用道具
举报
xiaoshxin
xiaoshxin
当前离线
积分
1997
注册时间
2010-12-4
最后登录
1970-1-1
IP卡
狗仔卡
楼主
|
发表于 2013-12-5 21:43:53
|
显示全部楼层
负载敏感泵控制模块有双弹簧、也有单弹簧
回复
使用道具
举报
xiaoshxin
xiaoshxin
当前离线
积分
1997
注册时间
2010-12-4
最后登录
1970-1-1
IP卡
狗仔卡
楼主
|
发表于 2013-12-5 21:46:38
|
显示全部楼层
缸体上有锥齿,保证缸体与轴同步回转
回复
使用道具
举报
xizhengke
xizhengke
当前离线
积分
142
注册时间
2012-7-7
最后登录
1970-1-1
IP卡
狗仔卡
打卡等级:无名新人
打卡总天数:2
打卡总奖励:8
发表于 2013-12-5 22:19:30
|
显示全部楼层
13,14是制动片,其他不太清楚了
好多啊,有没有径向柱塞马达的,给你补点?
回复
使用道具
举报
xizhengke
xizhengke
当前离线
积分
142
注册时间
2012-7-7
最后登录
1970-1-1
IP卡
狗仔卡
打卡等级:无名新人
打卡总天数:2
打卡总奖励:8
发表于 2013-12-5 22:24:07
|
显示全部楼层
弹簧4是让柱塞回位的?
回复
使用道具
举报
sgnl
sgnl
当前离线
积分
49
注册时间
2013-2-16
最后登录
1970-1-1
IP卡
狗仔卡
发表于 2013-12-5 22:30:11
|
显示全部楼层
图中13,14分别为分隔片,摩擦片,装在泵内起一个稳定的作用。
图中6为止推盘,装在缸体后端,分流,摩擦作用
图中6,9用来限制回程盘,一般向A11VO,PVH都用到这个
图中2为月牙轴承,滑动摇摆作用
图中4为小弹簧,支撑求教,调剂间隙
回复
使用道具
举报
iHydraulic
iHydraulic
当前离线
积分
135
注册时间
2011-10-6
最后登录
1970-1-1
IP卡
狗仔卡
发表于 2013-12-5 22:37:12
|
显示全部楼层
xiaoshxin 发表于 2013-12-5 21:28
滑靴包柱塞
柱塞包滑靴
滑靴包柱塞的很常见,柱塞包滑靴的没见过实物。
回复
使用道具
举报
选择离开
选择离开
当前离线
积分
93
注册时间
2012-4-30
最后登录
1970-1-1
IP卡
狗仔卡
发表于 2013-12-5 22:37:43
|
显示全部楼层
垫片.....hehe 。。。。。
回复
使用道具
举报
下一页 »
1
2
3
4
5
6
/ 6 页
下一页
返回列表
高级模式
B
Color
Image
Link
Quote
Code
Smilies
您需要登录后才可以回帖
登录
|
立即注册
本版积分规则
发表回复
回帖后跳转到最后一页
浏览过的版块
液压技术
快速回复
返回顶部
返回列表