搜索
汉力达液压金币充值官方微信群液压资料下载
查看: 14603|回复: 31

LS溢流压力的讨论

  [复制链接]
  • 打卡等级:无名新人
  • 打卡总天数:3
  • 打卡总奖励:21
发表于 2015-1-5 13:02:32 | 显示全部楼层 |阅读模式
元旦前曾发帖讨论关于多路阀LS溢流压力的问题,后来服务器出现故障,原帖丢失。今天再将问题分享出来,大家感兴趣的一起讨论下(淘液压)。
1:问题如下:
三联多路阀,每联控制一个马达,初始状态1,2联LS溢流压力设定为280bar,3联设定压力200bar;当把1,2联压力调低(淘液压:不知道具体调到了多少)第3联调高(陶液压:不知道具体调到了多高,只确认调高了,高于了200bar)。当3联复合动作时,口压力(从阀上的M口测试)只能到80bar左右,请分析为什么?
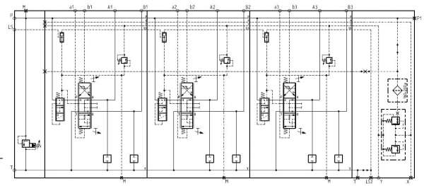
2:系统配置:变量泵(具备恒功率,恒压及负载敏感控制功能)+3联多路阀(如下图)

想必大家把这个问题讨论清楚了,负载敏感的原理会理解得更透彻(淘液压)。

淘液压:多路阀原理图

淘液压:多路阀原理图

点评

貌似调节的只是LS最高***压力,并没有实际负载加载到200bar;最后的80bar是负载建立的压力  发表于 2015-1-5 14:46
  • 打卡等级:无名新人
  • 打卡总天数:3
  • 打卡总奖励:21
 楼主| 发表于 2015-1-5 13:59:47 | 显示全部楼层
没有感兴趣的朋友?
回复

使用道具 举报

  • 打卡等级:无名新人
  • 打卡总天数:3
  • 打卡总奖励:21
 楼主| 发表于 2015-1-5 14:50:16 | 显示全部楼层
忘记给大家说了,当把马达加上载荷后,泵口压力(M口测试)80bar,马达无法转动。
回复

使用道具 举报

  • 打卡等级:无名新人
  • 打卡总天数:3
  • 打卡总奖励:21
 楼主| 发表于 2015-1-5 14:53:14 | 显示全部楼层
马达加载后,测试M口压力是80bar.负载是大于80bar的,因为此时马达转不动!
回复

使用道具 举报

发表于 2015-1-5 18:44:27 | 显示全部楼层
泵的流量在做复合动作的时候够吗?如果LS调低到80bar,那是有可能只到80bar啊。
回复

使用道具 举报

  • 打卡等级:无名新人
  • 打卡总天数:3
  • 打卡总奖励:21
 楼主| 发表于 2015-1-5 23:52:40 | 显示全部楼层
albert 发表于 2015-1-5 18:44
泵的流量在做复合动作的时候够吗?如果LS调低到80bar,那是有可能只到80bar啊。

泵的流量是够的,LS系统里做复合动作时M口压力是由最高负载联压力决定的,所以当第3联LS溢流压力设定值高于200bar时,M口压力正常不应该只有80bar.您似乎没有理解清楚问题,您再看看吧
回复

使用道具 举报

发表于 2015-1-6 10:49:14 | 显示全部楼层
你说的M口测到的系统压力80bar时马达就不动了,是三个马达都不动了还是其中有的马达不动了?你这个现象说的不清楚啊。如果是都不动了那是不是你的泵上压力切断值就是个80bar啊
回复

使用道具 举报

发表于 2015-1-6 10:57:35 | 显示全部楼层
楼主你这个负载敏感阀是什么品牌的?
回复

使用道具 举报

  • 打卡等级:常驻居民
  • 打卡总天数:340
  • 打卡总奖励:398
发表于 2015-1-6 15:38:33 | 显示全部楼层
阀中LS溢流阀作用是限定每联负载的最高压力,如果调定的1、2联LS溢流压力偏低,M口测的的压力偏低了,因为此时LS溢流了。你可以试着调高1、2联阀的LS溢流压力。
回复

使用道具 举报

  • 打卡等级:无名新人
  • 打卡总天数:3
  • 打卡总奖励:21
 楼主| 发表于 2015-1-6 22:57:18 | 显示全部楼层
静静等待 发表于 2015-1-6 10:57
楼主你这个负载敏感阀是什么品牌的?

Rexroth
回复

使用道具 举报

您需要登录后才可以回帖 登录 | 立即注册

本版积分规则