搜索
汉力达液压金币充值官方微信群液压资料下载
查看: 7392|回复: 15

谁能为我讲一下此图,谢谢了

  [复制链接]
  • 打卡等级:无名新人
  • 打卡总天数:1
  • 打卡总奖励:7
发表于 2015-1-30 19:31:53 | 显示全部楼层 |阅读模式
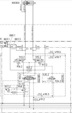
谁能为我讲一下此图,谢谢了,其中955.2 957.2 958.2部分是怎么工作的
- 本文出自液压圈,原文地址:https://www.iyeya.cn/forum-21-1.html

谁能为我讲一下此图,谢谢了

谁能为我讲一下此图,谢谢了
  • 打卡等级:偶尔看看
  • 打卡总天数:115
  • 打卡总奖励:811
发表于 2015-1-30 20:51:27 | 显示全部楼层
    个人理解,不知道对不对,希望能抛砖引玉:
    该系统为一伺服控制系统,主要由减压单元、伺服阀单元、插装阀及其控制单元、执行元件(伺服液压缸)以及其他相关控制辅件构成。
    下面三根管线由上至下应该是P、T、L管线,压力油主油路经由减压阀958.2进入伺服阀P口,伺服阀T口直接和T管道相连,伺服阀a口经由插装阀913.2连接伺服缸左腔,伺服阀b口经由插装阀915.2连接伺服缸右腔,形成主回路。至于减压单元,主要是为了稳定伺服阀P口压力,采用了二级减压控制,先导阀957.2出口经由梭阀955.2通过伺服阀和T口连接,形成减压回路。而二位三通换向阀535.2和两个插装阀形成控制主回路启闭的控制回路,正常运行时535.2得电,插装阀开启,主回路正常运行,停止时535.2失电,插装阀关闭,液压缸被锁定。
    请高手指正。
回复

使用道具 举报

  • 打卡等级:论坛老炮
  • 打卡总天数:961
  • 打卡总奖励:3213
发表于 2015-1-30 22:20:51 | 显示全部楼层
这原理是比例阀调速回路,957.2和958.2组成先导式压力补偿器以保证通过比例阀的压差保持恒定,实现稳定调速。同时955.2是为了取油缸在不同的运动方向时油压。

评分

参与人数 1金钱 +5 收起 理由
游勇 + 5

查看全部评分

回复

使用道具 举报

  • 打卡等级:偶尔看看
  • 打卡总天数:107
  • 打卡总奖励:441
发表于 2015-1-30 22:29:55 | 显示全部楼层
阀控缸系统,带液压锁,控制阀为比例阀,油源稳压
回复

使用道具 举报

  • 打卡等级:无名新人
  • 打卡总天数:1
  • 打卡总奖励:7
 楼主| 发表于 2015-1-31 07:38:42 | 显示全部楼层
anyushui00 发表于 2015-1-30 20:51
个人理解,不知道对不对,希望能抛砖引玉:
    该系统为一伺服控制系统,主要由减压单元、伺服阀单元 ...

首先谢谢师傅的回答讲解,不过兄弟有一处不明白,“至于减压单元,主要是为了稳定伺服阀P口压力,采用了二级减压控制,先导阀957.2出口经由梭阀955.2通过伺服阀和T口连接,形减压回路”,此时先导阀957.2出口经梭阀能与换向阀T口连接吗?
回复

使用道具 举报

  • 打卡等级:论坛老炮
  • 打卡总天数:1145
  • 打卡总奖励:1768
发表于 2015-1-31 09:39:11 | 显示全部楼层

093909olstsrv7kkz7qkec.jpg
回复

使用道具 举报

  • 打卡等级:无名新人
  • 打卡总天数:1
  • 打卡总奖励:4
发表于 2015-1-31 16:03:18 | 显示全部楼层
zrk 发表于 2015-1-30 22:20
这原理是比例阀调速回路,957.2和958.2组成先导式压力补偿器以保证通过比例阀的压差保持恒定,实现稳定调速 ...

请教一下,这是如何组成先导式压力补偿器的,原理是什么?
回复

使用道具 举报

  • 打卡等级:无名新人
  • 打卡总天数:1
  • 打卡总奖励:4
发表于 2015-1-31 16:11:13 | 显示全部楼层
zrk 发表于 2015-1-30 22:20
这原理是比例阀调速回路,957.2和958.2组成先导式压力补偿器以保证通过比例阀的压差保持恒定,实现稳定调速 ...

个人愚见,这不叫先导式,只是换了一种方式将负载压力引到弹簧腔,压差值还是由定压差阀上的弹簧决定,所以不能称作是先导式吧
回复

使用道具 举报

  • 打卡等级:论坛老炮
  • 打卡总天数:961
  • 打卡总奖励:3213
发表于 2015-1-31 18:56:15 | 显示全部楼层
weiyajun 发表于 2015-1-31 16:03
请教一下,这是如何组成先导式压力补偿器的,原理是什么?

你去网上搜 力士乐液压培训教材。那上面有介绍
回复

使用道具 举报

  • 打卡等级:论坛老炮
  • 打卡总天数:961
  • 打卡总奖励:3213
发表于 2015-1-31 20:40:59 | 显示全部楼层
可以参看阅6楼的。那是力士乐比例阀部分的讲解。恕不能发附件。可以从网上搜。
回复

使用道具 举报

您需要登录后才可以回帖 登录 | 立即注册

本版积分规则