搜索
金币充值液压资料下载官方微信群
查看: 9300|回复: 14

又没睡的液压大神吗 急求一个关于液压缸的问题

  [复制链接]
发表于 2016-5-27 23:44:43 | 显示全部楼层 |阅读模式
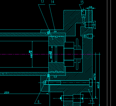
这个液压缸的装配图的工作原理是啥 怎么进油出油 啊  江湖救急 。。。。

又没睡的液压大神吗 急求一个关于液压缸的问题

又没睡的液压大神吗  急求一个关于液压缸的问题
  • 打卡等级:初来乍到
  • 打卡总天数:44
  • 打卡总奖励:323
发表于 2016-5-29 09:06:15 | 显示全部楼层
线宽改一下,重发。模糊不清,谁给你费劲猜。
回复

使用道具 举报

  • 打卡等级:偶尔看看
  • 打卡总天数:176
  • 打卡总奖励:795
发表于 2016-5-29 09:21:53 | 显示全部楼层
模糊不清,猜一下,尾端进油,经过序号14进入前端再导入有杆腔,无杆腔貌似直接进油
回复

使用道具 举报

  • 打卡等级:初来乍到
  • 打卡总天数:44
  • 打卡总奖励:323
发表于 2016-5-29 09:31:17 | 显示全部楼层
Hliyeya 发表于 2016-5-29 09:21
模糊不清,猜一下,尾端进油,经过序号14进入前端再导入有杆腔,无杆腔貌似直接进油

确定的东西被搞成不确定的,这也是一种悲哀。
回复

使用道具 举报

  • 打卡等级:无名新人
  • 打卡总天数:23
  • 打卡总奖励:63
发表于 2016-5-29 14:00:28 | 显示全部楼层
两个油口应该都在缸尾。无杆腔直接进油,有杆腔通过14的油管进油
回复

使用道具 举报

发表于 2016-5-29 21:37:54 | 显示全部楼层
好模糊呀,看不清
回复

使用道具 举报

  • 打卡等级:常驻居民
  • 打卡总天数:349
  • 打卡总奖励:1339
发表于 2016-5-30 10:08:04 | 显示全部楼层
能把线宽改改吗?这样子给你猜吗?
回复

使用道具 举报

 楼主| 发表于 2016-5-30 19:29:40 | 显示全部楼层
cqzyouxiang 发表于 2016-5-29 09:06
线宽改一下,重发。模糊不清,谁给你费劲猜。

对不起 是我粗心了  现在是我重发的 麻烦您看下 指正下  让我学习下
QQ截图20160530192112.png
QQ截图20160530192038.png
QQ截图20160530192128.png
回复

使用道具 举报

 楼主| 发表于 2016-5-30 19:31:42 | 显示全部楼层
Hliyeya 发表于 2016-5-29 09:21
模糊不清,猜一下,尾端进油,经过序号14进入前端再导入有杆腔,无杆腔貌似直接进油

清晰的图发在后面了 有时间 您帮忙看下 让我学点东西  现在还没弄懂怎么进油出油 怎么推动杆运动
回复

使用道具 举报

 楼主| 发表于 2016-5-30 19:32:13 | 显示全部楼层
cqzyouxiang 发表于 2016-5-29 09:31
确定的东西被搞成不确定的,这也是一种悲哀。

不好意思 是我疏忽了 没注意 那时候急了
回复

使用道具 举报

您需要登录后才可以回帖 登录 | 立即注册

本版积分规则