搜索
汉力达液压金币充值官方微信群液压资料下载
查看: 2178|回复: 18

关于顺序阀在液压系统的作用

  [复制链接]
  • 打卡等级:偶尔看看
  • 打卡总天数:96
  • 打卡总奖励:127
发表于 2025-2-11 16:56:44 | 显示全部楼层 |阅读模式
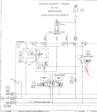
我们线上有一台设备,图纸上阀6是顺序阀,能不能请大师讲解一下此阀在这液压系统中的作用?
e3d61565887ccec0d5d62b2b1c63944.png
回复

使用道具 举报

  • 打卡等级:伴坛终老
  • 打卡总天数:2118
  • 打卡总奖励:4401
发表于 2025-2-12 10:05:36 | 显示全部楼层
控制回油               
回复

使用道具 举报

  • 打卡等级:以坛为家
  • 打卡总天数:765
  • 打卡总奖励:1172
发表于 2025-2-12 10:15:05 | 显示全部楼层
这个回路好像是个快进回路,X是溢流阀6的控制口,阀6控制油缸有杆腔在伸出和缩回两种工作状态下的设定压力。
回复

使用道具 举报

  • 打卡等级:论坛老炮
  • 打卡总天数:975
  • 打卡总奖励:1689
发表于 2025-2-13 21:54:09 来自手机 | 显示全部楼层
X口压力超过设定,便开始溢流同时停止油缸再生
回复

使用道具 举报

  • 打卡等级:偶尔看看
  • 打卡总天数:144
  • 打卡总奖励:368
发表于 2025-2-14 05:47:21 | 显示全部楼层
左端是个电磁单向阀,得电油缸可以缩回,不得电就是单向阀,可以锁定油缸
回复

使用道具 举报

  • 打卡等级:偶尔看看
  • 打卡总天数:144
  • 打卡总奖励:368
发表于 2025-2-14 05:59:06 | 显示全部楼层
油缸伸出时是差动状态,为的是加快速度;当压力达到顺序阀的设定压力时,顺序阀就打开,增大油缸推力
回复

使用道具 举报

  • 打卡等级:常驻居民
  • 打卡总天数:576
  • 打卡总奖励:707
发表于 2025-2-14 08:15:29 | 显示全部楼层
确定是顺序阀?感觉更像是溢流阀
回复

使用道具 举报

  • 打卡等级:即来则安
  • 打卡总天数:198
  • 打卡总奖励:312
发表于 2025-2-14 08:31:36 | 显示全部楼层
cyxz 发表于 2025-2-14 05:59
油缸伸出时是差动状态,为的是加快速度;当压力达到顺序阀的设定压力时,顺序阀就打开,增大油缸推力 ...

对的,超过压力值,小腔油液从顺序阀回油箱了,不进大腔,速度就降下来了,推力也会增大
回复

使用道具 举报

  • 打卡等级:偶尔看看
  • 打卡总天数:144
  • 打卡总奖励:368
发表于 2025-2-14 10:12:28 | 显示全部楼层
油缸伸出时是差动状态,为的是加快速度;当压力达到顺序阀的设定压力时,顺序阀就打开,增大油缸推力
回复

使用道具 举报

发表于 2025-2-14 11:23:37 | 显示全部楼层
由于三位四通换向阀中位是Y技能,所以左面的插装开关阀可以在不工作时锁住负载,防止油缸掉落,同时油缸伸出时,有杆腔只能通过顺序阀回油,控制背压,油缸运行更平稳,当油缸缩回时顺序阀限制了有杆腔的压力,此时基本靠重力下落,X口控制压力很低,因此有杆腔的进油压力也不高。

点评

感觉靠谱  发表于 2025-2-15 09:56
回复

使用道具 举报

您需要登录后才可以回帖 登录 | 立即注册

本版积分规则