搜索
金币充值液压资料下载官方微信群
查看: 6676|回复: 22

请教热轧厂加热炉液压系统故障的问题

  [复制链接]
  • 打卡等级:偶尔看看
  • 打卡总天数:94
  • 打卡总奖励:99
发表于 2025-7-21 16:20:03 | 显示全部楼层 |阅读模式
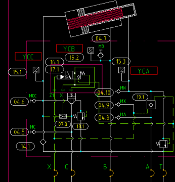
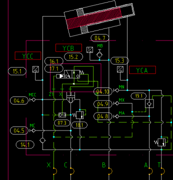
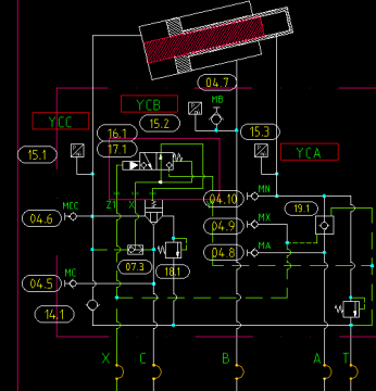
三腔液压缸C腔不保压故障,导致液压缸下降动作瞬间液压缸管路冲击振动严重。更换图中的插装阀控制盖板LFA25RF-7X/F10后,液压系统恢复正常,但是过了5天后又出现和之前一样的问题还是三腔液压缸C腔不保压。再次更换控制盖板恢复正常。同一批上线四个液压缸,除了这一个外其他三个液压缸使用正常无问题。目前还未找到控制盖板损坏的原因不能确定刚换上的控制盖板能用多久,请教各位前辈控制盖板损坏的原因是什么
190986a0cc82e98c9a11aef2812b63a.png

点评

是不是加热炉上翻机液压系统?能否把整个图纸发出来看看?  发表于 2025-7-22 15:58
扫码关注公众号,加群,讨论问题方便写  发表于 2025-7-22 09:22
回复

使用道具 举报

  • 打卡等级:伴坛终老
  • 打卡总天数:2224
  • 打卡总奖励:4507
发表于 2025-7-21 17:24:38 | 显示全部楼层
18.1调压有问题?               
回复

使用道具 举报

  • 打卡等级:论坛老炮
  • 打卡总天数:1325
  • 打卡总奖励:2086
发表于 2025-7-22 07:34:53 来自手机 | 显示全部楼层
查查18.1安全阀
回复

使用道具 举报

  • 打卡等级:常驻居民
  • 打卡总天数:331
  • 打卡总奖励:378
发表于 2025-7-22 08:16:07 | 显示全部楼层
MCC,和MC不保压时的压力分别是多少,知道吗
回复

使用道具 举报

  • 打卡等级:常驻居民
  • 打卡总天数:336
  • 打卡总奖励:425
发表于 2025-7-22 11:08:22 | 显示全部楼层
更换盖板就好了,可能是盖板节流孔堵塞造成的,也可能是先导口X口压力卸不掉造成的
回复

使用道具 举报

  • 打卡等级:论坛老炮
  • 打卡总天数:1325
  • 打卡总奖励:2086
发表于 2025-7-22 16:12:29 | 显示全部楼层
你这个液压缸得有平衡阀,图纸没显示出来
回复

使用道具 举报

  • 打卡等级:以坛为家
  • 打卡总天数:889
  • 打卡总奖励:1347
发表于 2025-7-23 11:35:15 | 显示全部楼层
将盖板反向打压测试一下便知
回复

使用道具 举报

  • 打卡等级:偶尔看看
  • 打卡总天数:94
  • 打卡总奖励:99
 楼主| 发表于 2025-7-23 13:21:59 | 显示全部楼层
tanxiany 发表于 2025-7-23 11:35
将盖板反向打压测试一下便知

盖板拆下来,反向吹烟试验,Y和插装阀控制油口、X口连一起了。正常不会出现这种情况,Y口应该封死
回复

使用道具 举报

  • 打卡等级:即来则安
  • 打卡总天数:221
  • 打卡总奖励:221
发表于 2025-7-25 10:07:17 | 显示全部楼层
描述:油缸保压有问题,更换盖板故障消失。楼主没有描述泄压速度。大概率是慢泄压。重点排查盖板泄漏点原因,电磁球阀大概率没问题。感觉是内置梭阀问题,18.1安全阀大概率没有集成在盖板上。所以18.1大概率没问题。
回复

使用道具 举报

  • 打卡等级:偶尔看看
  • 打卡总天数:94
  • 打卡总奖励:99
 楼主| 发表于 2025-7-25 10:57:11 | 显示全部楼层
新换上去的盖板阀用了4天又出问题了,请教各位前辈什么原因会频繁导致盖板阀关不严,是油缸本身的问题吗
19642be848b697ba994d4d6525a4687.jpg
回复

使用道具 举报

您需要登录后才可以回帖 登录 | 立即注册

本版积分规则