设为首页
收藏本站
所有帖子
关于我们
联系我们
微信群
开启辅助访问
搜索
搜索
本版
用户
门户
Portal
资讯
液压资讯
观点
观点
产品
液压产品
技术
液压技术
合集
导读
Guide
下载
签到
金币
论坛
BBS
登录
立即注册
腾讯QQ
账号
自动登录
找回密码
密码
登录
立即注册
只需一步,快速开始
我的
日志
记录
收藏
勋章
任务
道具
动态
设置
退出
液压圈
»
论坛
›
液压系统
›
故障诊断
›
请教热轧厂加热炉液压系统故障的问题
负载敏感资料下载
|
液压培训资料下载
|
液压样本下载
|
AMESim资料下载
|
力士乐资料下载
|
挖掘机资料下载
|
标准资料下载
|
多路阀资料下载
1
2
/ 2 页
下一页
返回列表
查看:
5814
|
回复:
21
请教热轧厂加热炉液压系统故障的问题
[复制链接]
745038059
745038059
当前离线
积分
91
注册时间
2022-3-1
最后登录
1970-1-1
IP卡
狗仔卡
打卡等级:偶尔看看
打卡总天数:70
打卡总奖励:75
发表于 2025-7-21 16:20:03
|
显示全部楼层
|
阅读模式
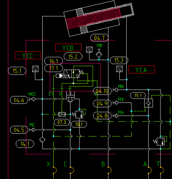
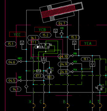
三腔液压缸C腔不保压故障,导致液压缸下降动作瞬间液压缸管路冲击振动严重。更换图中的
插装阀
控制盖板LFA25RF-7X/F10后,
液压系统
恢复正常,但是过了5天后又出现和之前一样的问题还是三腔液压缸C腔不保压。再次更换控制盖板恢复正常。同一批上线四个液压缸,除了这一个外其他三个液压缸使用正常无问题。目前还未找到控制盖板损坏的原因不能确定刚换上的控制盖板能用多久,请教各位前辈控制盖板损坏的原因是什么
点评
qqqqqqwwww
是不是加热炉上翻机液压系统?能否把整个图纸发出来看看?
发表于 2025-7-22 15:58
海中游
扫码关注公众号,加群,讨论问题方便写
发表于 2025-7-22 09:22
回复
使用道具
举报
提升卡
置顶卡
变色卡
钨金
钨金
当前离线
积分
911
注册时间
2011-8-18
最后登录
1970-1-1
IP卡
狗仔卡
打卡等级:伴坛终老
打卡总天数:2119
打卡总奖励:4402
发表于 2025-7-21 17:24:38
|
显示全部楼层
18.1调压有问题?
回复
使用道具
举报
qqqqqqwwww
qqqqqqwwww
当前离线
积分
1803
注册时间
2013-3-31
最后登录
1970-1-1
IP卡
狗仔卡
打卡等级:论坛老炮
打卡总天数:1155
打卡总奖励:1799
发表于 2025-7-22 07:34:53
来自手机
|
显示全部楼层
查查18.1安全阀
回复
使用道具
举报
清风盼月
清风盼月
当前离线
积分
544
注册时间
2018-3-22
最后登录
1970-1-1
IP卡
狗仔卡
打卡等级:即来则安
打卡总天数:279
打卡总奖励:326
发表于 2025-7-22 08:16:07
|
显示全部楼层
MCC,和MC不保压时的压力分别是多少,知道吗
回复
使用道具
举报
a343740703
a343740703
当前离线
积分
387
注册时间
2013-5-24
最后登录
1970-1-1
IP卡
狗仔卡
打卡等级:常驻居民
打卡总天数:325
打卡总奖励:414
发表于 2025-7-22 11:08:22
|
显示全部楼层
更换盖板就好了,可能是盖板节流孔堵塞造成的,也可能是先导口X口压力卸不掉造成的
回复
使用道具
举报
qqqqqqwwww
qqqqqqwwww
当前离线
积分
1803
注册时间
2013-3-31
最后登录
1970-1-1
IP卡
狗仔卡
打卡等级:论坛老炮
打卡总天数:1155
打卡总奖励:1799
发表于 2025-7-22 16:12:29
|
显示全部楼层
你这个液压缸得有平衡阀,图纸没显示出来
回复
使用道具
举报
tanxiany
tanxiany
当前离线
积分
539
注册时间
2019-1-31
最后登录
1970-1-1
IP卡
狗仔卡
打卡等级:以坛为家
打卡总天数:765
打卡总奖励:1172
发表于 2025-7-23 11:35:15
|
显示全部楼层
将盖板反向打压测试一下便知
回复
使用道具
举报
745038059
745038059
当前离线
积分
91
注册时间
2022-3-1
最后登录
1970-1-1
IP卡
狗仔卡
打卡等级:偶尔看看
打卡总天数:70
打卡总奖励:75
楼主
|
发表于 2025-7-23 13:21:59
|
显示全部楼层
tanxiany 发表于 2025-7-23 11:35
将盖板反向打压测试一下便知
盖板拆下来,反向吹烟试验,Y和插装阀控制油口、X口连一起了。正常不会出现这种情况,Y口应该封死
回复
使用道具
举报
chinashuoshu
chinashuoshu
当前离线
积分
303
注册时间
2018-3-31
最后登录
1970-1-1
IP卡
狗仔卡
打卡等级:偶尔看看
打卡总天数:142
打卡总奖励:142
发表于 2025-7-25 10:07:17
|
显示全部楼层
描述:油缸保压有问题,更换盖板故障消失。楼主没有描述泄压速度。大概率是慢泄压。重点排查盖板泄漏点原因,电磁球阀大概率没问题。感觉是内置梭阀问题,18.1安全阀大概率没有集成在盖板上。所以18.1大概率没问题。
回复
使用道具
举报
745038059
745038059
当前离线
积分
91
注册时间
2022-3-1
最后登录
1970-1-1
IP卡
狗仔卡
打卡等级:偶尔看看
打卡总天数:70
打卡总奖励:75
楼主
|
发表于 2025-7-25 10:57:11
|
显示全部楼层
新换上去的盖板阀用了4天又出问题了,请教各位前辈什么原因会频繁导致盖板阀关不严,是油缸本身的问题吗
回复
使用道具
举报
下一页 »
1
2
/ 2 页
下一页
返回列表
高级模式
B
Color
Image
Link
Quote
Code
Smilies
您需要登录后才可以回帖
登录
|
立即注册
本版积分规则
发表回复
回帖后跳转到最后一页
快速回复
返回顶部
返回列表