搜索
金币充值液压资料下载官方微信群
楼主: treasure

有谁见过多油箱结构呀

  [复制链接]
  • 打卡等级:论坛老炮
  • 打卡总天数:1346
  • 打卡总奖励:3442
发表于 2014-2-11 10:30:02 来自手机 | 显示全部楼层
要考虑,两个邮箱的连通问题,如果设置不合理很容易造成,一个油箱满了液压油溢出。
回复

使用道具 举报

发表于 2014-2-11 12:36:02 | 显示全部楼层
管路设计时考虑管径,另外需要一个泵抽油吧
回复

使用道具 举报

  • 打卡等级:以坛为家
  • 打卡总天数:842
  • 打卡总奖励:3389
发表于 2014-2-11 13:50:50 | 显示全部楼层
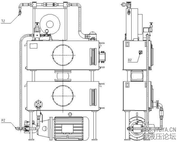
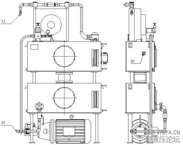
这个就是我经历的两油箱连接的使用例子,图中,电机泵组在最下面,泵从下油箱吸油,然后上油箱回油,也是带风冷的。两油箱之间有个挠性接头来连通。这样设计也是为了满足空间布局,如果单纯为考虑散热而设计两个油箱,个人感觉不划算,因为这样设计加工不便并且有泄漏风险。一般都是考虑到空间布局才这样设计的。设计时需要注意连接通道的过流能力。
未命名.JPG
回复

使用道具 举报

  • 打卡等级:初来乍到
  • 打卡总天数:35
  • 打卡总奖励:134
发表于 2014-2-11 13:52:16 | 显示全部楼层
以前见过分2个油箱的,运行时出现液位高度不一致现象,连接管子不要太细。
回复

使用道具 举报

发表于 2014-2-11 15:40:25 | 显示全部楼层
我一直从事行走液压设计,很少有在设计系统时靠邮箱来散热。散热功率一般都是靠油散来保证。油箱设计通常情况下都是按系统流量以及液压缸差动面积计算,校核,很少用油箱散热面积进行热平衡计算。
回复

使用道具 举报

 楼主| 发表于 2014-2-11 15:56:37 | 显示全部楼层
中华司机 发表于 2014-2-11 13:50
这个就是我经历的两油箱连接的使用例子,图中,电机泵组在最下面,泵从下油箱吸油,然后上油箱回油,也是带 ...

嗯,这个可以有。
跟我的想法有点相近,我主要也是空间位置不够。
回复

使用道具 举报

 楼主| 发表于 2014-2-11 15:58:00 | 显示全部楼层
caoyannan1986 发表于 2014-2-11 13:52
以前见过分2个油箱的,运行时出现液位高度不一致现象,连接管子不要太细。

谨遵教诲,非常感谢!
回复

使用道具 举报

 楼主| 发表于 2014-2-11 16:00:48 | 显示全部楼层
xiaoshxin 发表于 2014-2-11 15:40
我一直从事行走液压设计,很少有在设计系统时靠邮箱来散热。散热功率一般都是靠油散来保证。油箱设计通常情 ...

散热不是主要目的,主要还是受制于空间限制。
你是设计什么产品啊,挖机吗?
回复

使用道具 举报

  • 打卡等级:初来乍到
  • 打卡总天数:58
  • 打卡总奖励:229
发表于 2014-2-11 18:02:52 | 显示全部楼层
可以,就是看你怎么去来合理布局啦。许多大型油压机都分开两个油箱的
回复

使用道具 举报

  • 打卡等级:论坛老炮
  • 打卡总天数:933
  • 打卡总奖励:3022
发表于 2014-2-11 18:16:51 | 显示全部楼层
这个是没见过的了
回复

使用道具 举报

您需要登录后才可以回帖 登录 | 立即注册

本版积分规则