搜索
金币充值液压资料下载官方微信群
12
返回列表 发新帖
楼主: lxmxjtu

请教液压缸设计

  [复制链接]
  • 打卡等级:无名新人
  • 打卡总天数:18
  • 打卡总奖励:35
发表于 2015-4-15 21:52:33 | 显示全部楼层
1、你的缸头没有导向环,应该用球墨铸铁或者加1到2条导向环,或自润轴承,活塞杆可以用45#钢
2、如果该液压缸是有杆腔做功,缸头与有口相同的腔体尺寸有点过小,会导致启动压力要求大
回复

使用道具 举报

  • 打卡等级:无名新人
  • 打卡总天数:1
  • 打卡总奖励:5
发表于 2016-2-4 16:15:14 | 显示全部楼层
下载 这个也要扣金币?!!!!!!!!
回复

使用道具 举报

  • 打卡等级:偶尔看看
  • 打卡总天数:176
  • 打卡总奖励:795
发表于 2016-2-19 20:06:36 | 显示全部楼层
这个缸按你设计的做,最多运行几十次活塞就烂了!
回复

使用道具 举报

  • 打卡等级:即来则安
  • 打卡总天数:202
  • 打卡总奖励:669
 楼主| 发表于 2016-2-22 13:08:33 | 显示全部楼层
Hliyeya 发表于 2016-2-19 20:06
这个缸按你设计的做,最多运行几十次活塞就烂了!

为什么呢?请全面详细解释一下。
回复

使用道具 举报

  • 打卡等级:即来则安
  • 打卡总天数:202
  • 打卡总奖励:669
 楼主| 发表于 2016-2-22 13:36:03 | 显示全部楼层
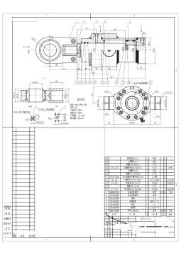
油缸流量及油口要求如图,请各位再给指点指点。

回复

使用道具 举报

  • 打卡等级:无名新人
  • 打卡总天数:16
  • 打卡总奖励:50
发表于 2016-2-22 16:11:18 | 显示全部楼层
我个人感觉你可以可以去下载派克,伊顿,力士乐的冶金缸样本做参考。第一油缸上不要焊接。第二活塞和活塞杆处要加导向带。第三最好是在前端盖上做个导向套,磨偏后可以换导向套,而不是换前端盖。
回复

使用道具 举报

  • 打卡等级:偶尔看看
  • 打卡总天数:176
  • 打卡总奖励:795
发表于 2016-2-22 16:56:15 | 显示全部楼层
lxmxjtu 发表于 2016-2-22 13:08
为什么呢?请全面详细解释一下。

那我说一点结构性错误:活塞杆缩回后,活塞外圈与缸盖引进止口的台阶直接接触,并且活塞此处还装有密封,正好减弱活塞强度,最多几个来回,活塞不是变形就是被撞烂,掉下来的铁销就会拉掉缸筒,破坏密封,整缸报废。
回复

使用道具 举报

您需要登录后才可以回帖 登录 | 立即注册

本版积分规则