搜索
金币充值液压资料下载官方微信群
12
返回列表 发新帖
楼主: 艾尼萨

又没睡的液压大神吗 急求一个关于液压缸的问题

  [复制链接]
 楼主| 发表于 2016-5-30 19:33:35 | 显示全部楼层
lygbeyondgod 发表于 2016-5-30 10:08
能把线宽改改吗?这样子给你猜吗?

不好意思了  图没发好 是我的疏忽  
回复

使用道具 举报

  • 打卡等级:偶尔看看
  • 打卡总天数:176
  • 打卡总奖励:795
发表于 2016-5-31 09:20:53 | 显示全部楼层
艾尼萨 发表于 2016-5-30 19:31
清晰的图发在后面了 有时间 您帮忙看下 让我学点东西  现在还没弄懂怎么进油出油 怎么推动杆运动

这次发的和第一次发的图不是一个角度,
回复

使用道具 举报

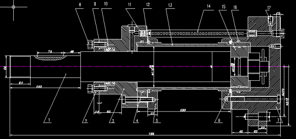
 楼主| 发表于 2016-5-31 09:27:14 | 显示全部楼层
Hliyeya 发表于 2016-5-31 09:20
这次发的和第一次发的图不是一个角度,

这个可以吗  我想知道他怎么进出油的
QQ截图20160531092633.png
回复

使用道具 举报

  • 打卡等级:伴坛终老
  • 打卡总天数:1864
  • 打卡总奖励:3740
发表于 2016-6-11 01:09:33 | 显示全部楼层
两次图纸不一样 大家看一下对不对
回复

使用道具 举报

  • 打卡等级:偶尔看看
  • 打卡总天数:122
  • 打卡总奖励:376
发表于 2017-1-10 16:20:23 | 显示全部楼层
应该是根据客户要求吧,如果导向套端能进油应该不需要油管链接了。所以猜测油缸伸出时是缸底底部小油口进油,油缸回缩是缸底右侧小油口进油。
回复

使用道具 举报

您需要登录后才可以回帖 登录 | 立即注册

本版积分规则