设为首页
收藏本站
所有帖子
关于我们
联系我们
微信群
开启辅助访问
搜索
搜索
本版
用户
门户
Portal
资讯
液压资讯
观点
观点
产品
液压产品
技术
液压技术
合集
导读
Guide
下载
签到
金币
论坛
BBS
登录
立即注册
腾讯QQ
账号
自动登录
找回密码
密码
登录
立即注册
只需一步,快速开始
好友
动态
收藏
分享
帖子
日志
记录
相册
留言板
勋章
任务
道具
设置
退出
液压圈
»
论坛
›
液压系统
›
伺服控制
›
关于力士乐比例换向阀的问题
负载敏感资料下载
|
液压培训资料下载
|
液压样本下载
|
AMESim资料下载
|
力士乐资料下载
|
挖掘机资料下载
|
标准资料下载
|
多路阀资料下载
返回列表
查看:
3770
|
回复:
2
关于力士乐比例换向阀的问题
[复制链接]
qqqqqqwwww
qqqqqqwwww
当前离线
积分
1849
注册时间
2013-3-31
最后登录
1970-1-1
IP卡
狗仔卡
打卡等级:论坛老炮
打卡总天数:1197
打卡总奖励:1861
发表于 2013-4-27 22:19:13
|
显示全部楼层
|
阅读模式
我想问的是4WREE6W132-22的比例换向阀能不能用4WREE6W116-22型号来代替,因为没有备件。后一种只是流量少了一半,请问可行吗?
回复
使用道具
举报
提升卡
置顶卡
变色卡
游勇
游勇
当前离线
积分
2577
注册时间
2011-7-5
最后登录
1970-1-1
IP卡
狗仔卡
打卡等级:初来乍到
打卡总天数:30
打卡总奖励:74
发表于 2013-4-27 23:04:44
|
显示全部楼层
有几个方法:
1. 若阀芯没损坏,把阀芯换过去便可以。
2. 看现时使用的命令值是多少,若少于5V,则更换也没问题,
3. 另一个是换阀後提高系统压力,但耍有油路图才能确定。
回复
使用道具
举报
qqqqqqwwww
qqqqqqwwww
当前离线
积分
1849
注册时间
2013-3-31
最后登录
1970-1-1
IP卡
狗仔卡
打卡等级:论坛老炮
打卡总天数:1197
打卡总奖励:1861
楼主
|
发表于 2013-4-28 06:42:52
|
显示全部楼层
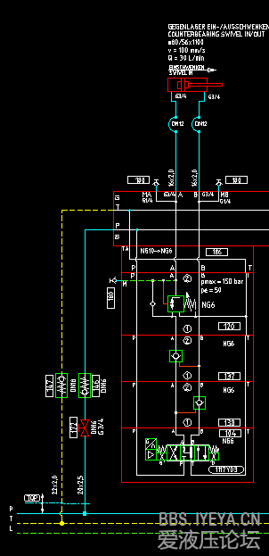
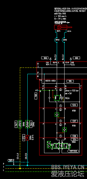
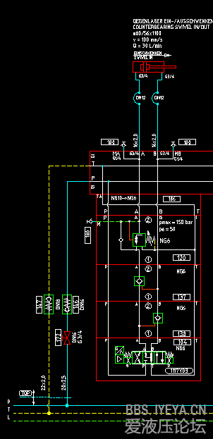
请问游勇老师,这是原理图,系统压力150公斤,支路压力经减压阀后50公斤,如果提高压力应该提高多少?还有为什么低于5V可以更换,高于5V不可以更换?
回复
使用道具
举报
返回列表
高级模式
B
Color
Image
Link
Quote
Code
Smilies
您需要登录后才可以回帖
登录
|
立即注册
本版积分规则
发表回复
回帖后跳转到最后一页
浏览过的版块
液压泵马达
故障诊断
快速回复
返回顶部
返回列表