设为首页
收藏本站
所有帖子
关于我们
联系我们
微信群
开启辅助访问
搜索
搜索
本版
用户
门户
Portal
资讯
液压资讯
观点
观点
产品
液压产品
技术
液压技术
合集
导读
Guide
下载
签到
金币
论坛
BBS
登录
立即注册
腾讯QQ
账号
自动登录
找回密码
密码
登录
立即注册
只需一步,快速开始
好友
动态
收藏
分享
帖子
日志
记录
相册
留言板
勋章
任务
道具
设置
退出
液压圈
»
论坛
›
液压元件
›
液压多路阀
›
系统设计压力
负载敏感资料下载
|
液压培训资料下载
|
液压样本下载
|
AMESim资料下载
|
力士乐资料下载
|
挖掘机资料下载
|
标准资料下载
|
多路阀资料下载
返回列表
查看:
5640
|
回复:
3
系统设计压力
[复制链接]
Emmett_1984
Emmett_1984
当前离线
积分
259
注册时间
2013-2-28
最后登录
1970-1-1
IP卡
狗仔卡
发表于 2013-5-18 19:48:08
|
显示全部楼层
|
阅读模式
本帖最后由 Emmett_1984 于 2013-5-18 19:53 编辑
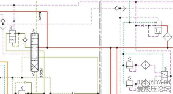
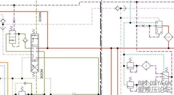
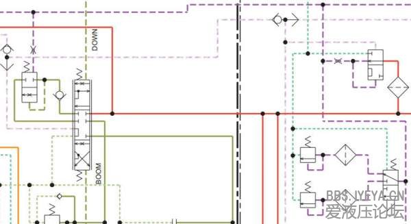
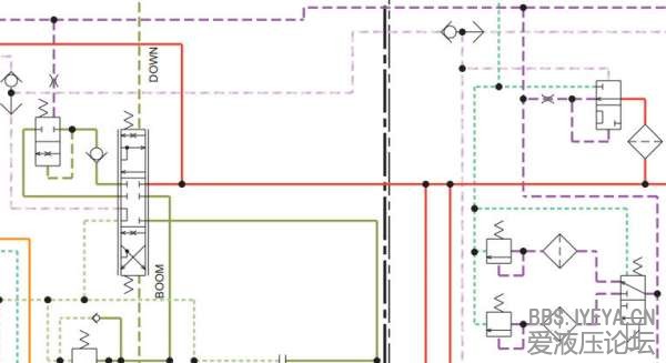
如按图中所示,两图中的浅紫色虚线、红色的分别相连,红色管路(
泵
出口压力)的压力大于浅紫色压力(压力控制阀),当图中的三位六通阀换向后,浅紫色的管路压力上升,是否会引起系统压力再上升?
此外,第一张的右上角过滤器上方的换向阀在什么情况下动作?
设计
,
压力
相关帖子
.
液压传动基础知识
.
液压阀块设计
.
什么事泵持续压力?(林德泵)
.
【求液压大神】液压泵并联之后,出口的流量与压力如何确定
.
齿轮泵自吸压力
.
液压油箱设计
.
液压站里立式电机的设计
.
M7阀的压力补偿器
.
请教怎么做压力在线监测工具
.
液压压力形成原理仿真,求指教
回复
使用道具
举报
提升卡
置顶卡
变色卡
heripeng
heripeng
当前离线
积分
269
注册时间
2013-1-15
最后登录
1970-1-1
IP卡
狗仔卡
打卡等级:无名新人
打卡总天数:4
打卡总奖励:4
发表于 2013-5-18 20:39:28
|
显示全部楼层
此图为负载敏感控制回路
紫色线为LS控制油路。
三位六通打开时,系统感受负载压力。
紫线回路压力等于最大负载压力。
该压力略小于泵出口压力。。
过滤器上的换向阀什么时候开启,没有完整油路,不好分析
回复
使用道具
举报
hUnk.
hUnk.
当前离线
积分
80
注册时间
2013-4-18
最后登录
1970-1-1
IP卡
狗仔卡
发表于 2013-5-19 20:59:47
|
显示全部楼层
坐等完整回路,边分析边学习
回复
使用道具
举报
Emmett_1984
Emmett_1984
当前离线
积分
259
注册时间
2013-2-28
最后登录
1970-1-1
IP卡
狗仔卡
楼主
|
发表于 2013-5-20 15:55:14
|
显示全部楼层
hUnk. 发表于 2013-5-19 20:59
坐等完整回路,边分析边学习
https://www.iyeya.cn/forum.php?mod=viewthread&tid=6943
卡特彼勒365C挖掘机液压系统图-(PPPC)系统
回复
使用道具
举报
返回列表
高级模式
B
Color
Image
Link
Quote
Code
Smilies
您需要登录后才可以回帖
登录
|
立即注册
本版积分规则
发表回复
回帖后跳转到最后一页
浏览过的版块
液压辅件
快速回复
返回顶部
返回列表