搜索
金币充值液压资料下载官方微信群
查看: 5342|回复: 7

[综合讨论] 先手手柄出口接单向阀????求解释(带图)

[复制链接]
  • 打卡等级:无名新人
  • 打卡总天数:1
  • 打卡总奖励:8
发表于 2013-8-15 08:08:28 | 显示全部楼层 |阅读模式
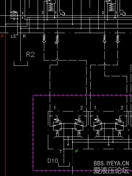
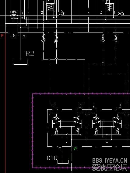
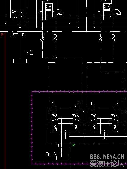
如图先导手柄出口接了单向阀。
换向阀还能回位么?
有这样用过的没
手柄出口接单向阀?.jpg
发表于 2013-8-15 13:40:19 | 显示全部楼层
哈维电液动的阀都要这样,因为他们电液控油和液压先导油共用一个腔,先导接了单向阀,油不会从先导手柄回油,从阀内部泄油!
回复

使用道具 举报

  • 打卡等级:无名新人
  • 打卡总天数:1
  • 打卡总奖励:8
 楼主| 发表于 2013-8-15 18:30:08 | 显示全部楼层
gaoguifeng 发表于 2013-8-15 13:40
哈维电液动的阀都要这样,因为他们电液控油和液压先导油共用一个腔,先导接了单向阀,油不会从先导手柄回油 ...

能不能不带单向阀呢?
回复

使用道具 举报

  • 打卡等级:无名新人
  • 打卡总天数:1
  • 打卡总奖励:8
 楼主| 发表于 2013-8-15 18:33:41 | 显示全部楼层
gaoguifeng 发表于 2013-8-15 13:40
哈维电液动的阀都要这样,因为他们电液控油和液压先导油共用一个腔,先导接了单向阀,油不会从先导手柄回油 ...

我这里的哈威阀是纯液动的,没有加电动。

另外就算内部可以泄,那也不需要带单向阀嘛。。

两边都泄 更好。
回复

使用道具 举报

发表于 2013-8-16 11:33:11 | 显示全部楼层
纯液动的可以不加单向阀,我们在用的机器上就没加,一样好用。
但是带电液控的必须加,因为两者会互相影响,比如只动电控,油液会从先导手柄泄油,(先导手柄泄漏量中位时超级大,可以待命时打开回油口自己看),压力建立不起来,那么电控就没用。
回复

使用道具 举报

  • 打卡等级:无名新人
  • 打卡总天数:1
  • 打卡总奖励:8
 楼主| 发表于 2013-8-16 15:51:12 | 显示全部楼层
gaoguifeng 发表于 2013-8-16 11:33
纯液动的可以不加单向阀,我们在用的机器上就没加,一样好用。
但是带电液控的必须加,因为两者会互相影响 ...

哈威的这点真不人性化啊,,,我看别的多路阀就没这限制啊 。。。

加单向阀多麻烦啊。。。。
回复

使用道具 举报

发表于 2013-9-30 14:22:39 | 显示全部楼层
枫,子 发表于 2013-8-16 15:51
哈威的这点真不人性化啊,,,我看别的多路阀就没这限制啊 。。。

加单向阀多麻烦啊。。。。

其他家没见过技能电控又能液控的
回复

使用道具 举报

  • 打卡等级:初来乍到
  • 打卡总天数:39
  • 打卡总奖励:114
发表于 2013-10-9 20:15:56 | 显示全部楼层
这个还真没有注意过,先看一下哈威样本再来回答
回复

使用道具 举报

您需要登录后才可以回帖 登录 | 立即注册

本版积分规则