- 积分
- 93
- 注册时间
- 2012-4-30
- 最后登录
- 1970-1-1
|

楼主 |
发表于 2013-11-12 10:17:56
|
显示全部楼层
zhangrongji85 发表于 2013-11-8 17:30 
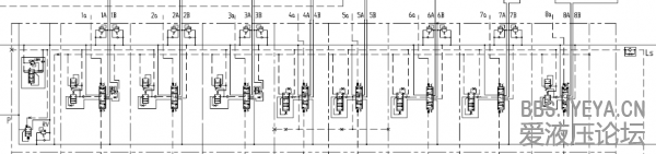
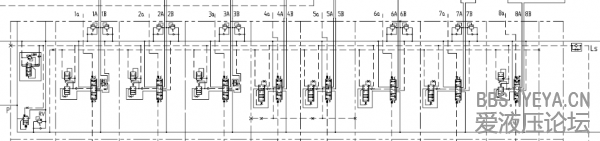
上一张清晰的原理图
1先测试LS压力,快速憋压和慢速憋压LS最终压力是否相同
2检测主阀上的三通流量阀
恩...版主您好!对你的回复表示感谢!!
1、快速憋压和慢速憋压时LS压力都是比泵压差3MPa左右,即快速憋车时泵压15,LS压力为12-13Mpa,慢速憋压时泵压25,LS压力为22左右。
2.请问版主所说的三通流量阀是哪个?主阀上我们所做的工作有:LS溢流阀换了个新的上去试、主溢流阀跟上面油口溢流阀互换试、中位卸荷阀杆抽出检查无异常、LS反馈管上节流单向接头检查无异常。主泵上做的的工作有:三通换向阀拆出清洗并对泵体三通换向阀处内部油道冲洗、LS调节阀几乎调到了底,反而出现溢流压力变更低的现象,本来慢速憋压还能到25.但经调整LS调节阀后不管慢速憋压快速憋压泵压降为12。另外上述情况在我们把先导减压阀解体(虽解体但其上的调整螺钉未动)清洗重装后也出现过,但过了一会儿再次测量,又自己恢复到原来的故障现象(快速憋压25,慢速憋压15)。
3.版主所说的泵调节机构还没有检查...现在新的主泵已经到货,准备换个主泵看下情况,希望能再次听下版主的意见!!!
|
|