搜索
汉力达液压金币充值官方微信群液压资料下载
查看: 5200|回复: 7

怎么使用AMESim建立带单向阀的阶梯柱塞的模型?

[复制链接]
发表于 2014-3-16 20:48:32 | 显示全部楼层 |阅读模式
前辈们好:
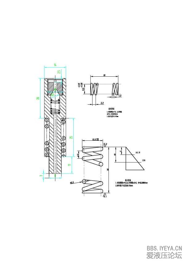
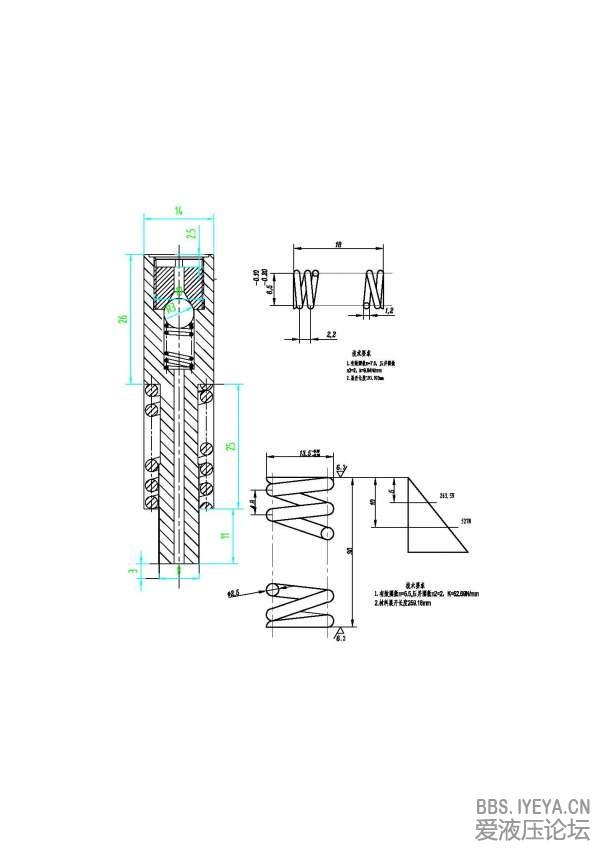
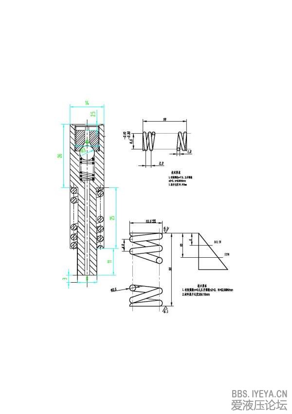
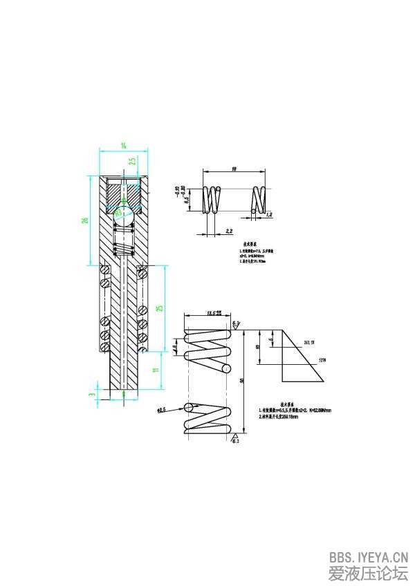
       手头有一个电磁阀控制的阶梯柱柱塞,两位三通电磁阀的移动使阶梯柱塞向小端移动,从而小端腔室内油压进一步升高。阶梯柱塞的大端里有一个单向阀,作用是单向阻断提升后的油从小端腔室回流到大端腔室。由于自己是个菜鸟,刚接触AMESim,特向各位请教一下怎么使用AMESIM建立带单向阀的阶梯柱塞模型。附件是阶梯柱塞的CAD图片和已经使用AMESIM建立的模型草图(模型图一直有问题,主要问题在于单向阀外接柱塞需要使用到相对运动元件库,但自己一直弄不好),请大家指导,谢谢!

阶梯柱塞的AMESIM模型草图

阶梯柱塞的AMESIM模型草图

阶梯柱塞CAD图片

阶梯柱塞CAD图片
 楼主| 发表于 2014-3-16 20:54:52 | 显示全部楼层
本帖最后由 chyu2048 于 2014-3-16 21:00 编辑

还想请教一下HCD库中使用到Pistion with spring的时候有一个参数“chamber length at zero displacement”怎么设置?我看很多多例子中都设为0,好像不符合实际情况啊
Flow_limiter中loaded_spring的参数设置.jpg
回复

使用道具 举报

 楼主| 发表于 2014-3-16 21:07:18 | 显示全部楼层
如果论坛不方便交流,我的QQ是455129062,欢迎老师们指导!
回复

使用道具 举报

发表于 2014-3-17 12:07:31 | 显示全部楼层
这个是sun的软阀吗
回复

使用道具 举报

 楼主| 发表于 2014-3-17 13:58:18 | 显示全部楼层
scx_888 发表于 2014-3-17 12:07
这个是sun的软阀吗

是自己这个小团队设计的,目前想建个模型
回复

使用道具 举报

  • 打卡等级:无名新人
  • 打卡总天数:1
  • 打卡总奖励:1
发表于 2014-3-17 18:01:06 | 显示全部楼层
这个和张海平写的软阀类似啊
回复

使用道具 举报

 楼主| 发表于 2014-3-23 20:41:07 | 显示全部楼层
Thinking11111 发表于 2014-3-17 18:01
这个和张海平写的软阀类似啊

这几天有点事情,没有及时回复。感谢提供信息,我会找张老师的相关资料学习。
回复

使用道具 举报

  • 打卡等级:无名新人
  • 打卡总天数:1
  • 打卡总奖励:1
发表于 2014-3-24 18:04:05 | 显示全部楼层
chyu2048 发表于 2014-3-23 20:41
这几天有点事情,没有及时回复。感谢提供信息,我会找张老师的相关资料学习。

他写了本书叫做液压螺纹插装阀,你可以看下
回复

使用道具 举报

您需要登录后才可以回帖 登录 | 立即注册

本版积分规则