设为首页
收藏本站
所有帖子
关于我们
联系我们
微信群
开启辅助访问
搜索
搜索
本版
用户
门户
Portal
资讯
液压资讯
观点
观点
产品
液压产品
技术
液压技术
合集
导读
Guide
下载
签到
金币
论坛
BBS
登录
立即注册
腾讯QQ
账号
自动登录
找回密码
密码
登录
立即注册
只需一步,快速开始
我的
日志
记录
收藏
勋章
任务
道具
动态
设置
退出
液压圈
»
论坛
›
液压系统
›
液压技术
›
气动元件大家有懂得吗
负载敏感资料下载
|
液压培训资料下载
|
液压样本下载
|
AMESim资料下载
|
力士乐资料下载
|
挖掘机资料下载
|
标准资料下载
|
多路阀资料下载
返回列表
查看:
3695
|
回复:
1
气动元件大家有懂得吗
[复制链接]
青松劲柳
青松劲柳
当前离线
积分
77
注册时间
2013-4-27
最后登录
1970-1-1
IP卡
狗仔卡
发表于 2014-4-3 22:15:55
|
显示全部楼层
|
阅读模式
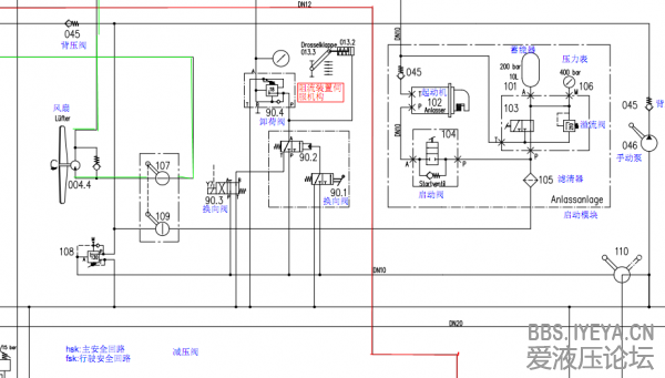
OLk 厂家的。
JM322Tb:要求配齐接头和前面的杆。
前面的杆学名叫什么,最好可以根据名字在网上搜到。(本人没有查到)
气动元件
,
接头
相关帖子
.
请问该液压过渡接头的右端是英制、美制、还是公制的,代号是什么
.
请问该液压过渡接头的右端是英制、美制、还是公制的,代号是什么
.
万众瞩目 – VOSS Point DC 测压接头 德国福士
.
Parker 接头模型
.
气动控制交流
.
有没有熟悉接头的?
.
哪里能买到不锈钢接头现货
.
碳钢卡套接头能卡304不锈钢管子吗,低压,2MPA,
.
这应该是个气动元件,求大神指教是什么元件?
回复
使用道具
举报
提升卡
置顶卡
变色卡
蝈蝈
蝈蝈
当前离线
积分
136
注册时间
2013-6-3
最后登录
1970-1-1
IP卡
狗仔卡
打卡等级:无名新人
打卡总天数:4
打卡总奖励:7
发表于 2014-4-4 06:57:53
|
显示全部楼层
你可以去网上查SMK厂家问问
回复
使用道具
举报
返回列表
高级模式
B
Color
Image
Link
Quote
Code
Smilies
您需要登录后才可以回帖
登录
|
立即注册
本版积分规则
发表回复
回帖后跳转到最后一页
浏览过的版块
插装阀
公告区
资料下载
液压泵马达
AMESim
快速回复
返回顶部
返回列表