设为首页
收藏本站
所有帖子
关于我们
联系我们
微信群
开启辅助访问
搜索
搜索
本版
用户
门户
Portal
资讯
液压资讯
观点
观点
产品
液压产品
技术
液压技术
合集
导读
Guide
下载
签到
金币
论坛
BBS
登录
立即注册
腾讯QQ
账号
自动登录
找回密码
密码
登录
立即注册
只需一步,快速开始
好友
动态
收藏
分享
帖子
日志
记录
相册
留言板
勋章
任务
道具
设置
退出
液压圈
»
论坛
›
液压元件
›
液压多路阀
›
请教液压符号意思
负载敏感资料下载
|
液压培训资料下载
|
液压样本下载
|
AMESim资料下载
|
力士乐资料下载
|
挖掘机资料下载
|
标准资料下载
|
多路阀资料下载
返回列表
查看:
4246
|
回复:
7
请教液压符号意思
[复制链接]
keneya
keneya
当前离线
积分
93
注册时间
2012-12-11
最后登录
1970-1-1
IP卡
狗仔卡
发表于 2014-4-25 17:02:52
|
显示全部楼层
|
阅读模式
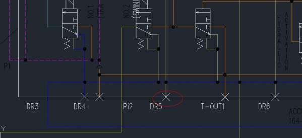
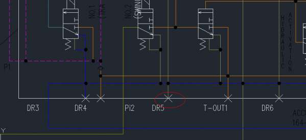
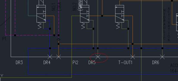
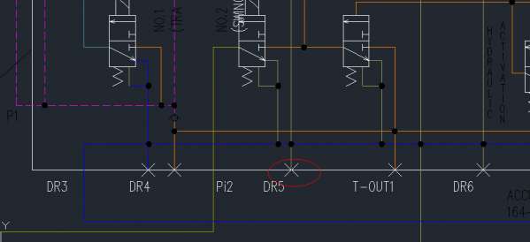
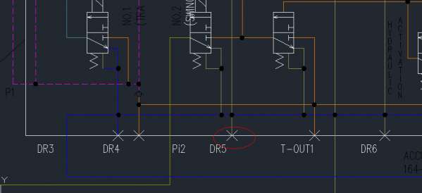
如图所示,那些白色的X表示什么?
回复
使用道具
举报
提升卡
置顶卡
变色卡
液压菜鸟
液压菜鸟
当前离线
积分
90
注册时间
2014-2-27
最后登录
1970-1-1
IP卡
狗仔卡
打卡等级:无名新人
打卡总天数:2
打卡总奖励:10
发表于 2014-4-25 17:15:44
|
显示全部楼层
快接接头?
回复
使用道具
举报
Jacky-Lisa
Jacky-Lisa
当前离线
积分
382
注册时间
2011-3-27
最后登录
1970-1-1
IP卡
狗仔卡
打卡等级:常驻居民
打卡总天数:306
打卡总奖励:742
发表于 2014-4-25 17:17:41
|
显示全部楼层
表示堵头,油口用堵头或官帽堵住了.
回复
使用道具
举报
keneya
keneya
当前离线
积分
93
注册时间
2012-12-11
最后登录
1970-1-1
IP卡
狗仔卡
楼主
|
发表于 2014-4-25 17:20:49
|
显示全部楼层
Jacky-Lisa 发表于 2014-4-25 17:17
表示堵头,油口用堵头或官帽堵住了.
非常感谢
回复
使用道具
举报
液压工兵
液压工兵
当前离线
积分
347
注册时间
2011-6-16
最后登录
1970-1-1
IP卡
狗仔卡
打卡等级:无名新人
打卡总天数:3
打卡总奖励:4
发表于 2014-4-25 17:25:35
|
显示全部楼层
对的 是堵头
回复
使用道具
举报
weiyajun
weiyajun
当前离线
积分
30
注册时间
2013-9-8
最后登录
1970-1-1
IP卡
狗仔卡
打卡等级:无名新人
打卡总天数:1
打卡总奖励:4
发表于 2014-4-25 20:51:28
|
显示全部楼层
表示该油口要被堵住
回复
使用道具
举报
fkccc123
fkccc123
当前离线
积分
458
注册时间
2011-5-1
最后登录
1970-1-1
IP卡
狗仔卡
打卡等级:即来则安
打卡总天数:186
打卡总奖励:554
发表于 2014-4-26 13:05:19
|
显示全部楼层
阀块上的堵头吧
回复
使用道具
举报
降猪十巴掌
降猪十巴掌
当前离线
积分
115
注册时间
2013-5-2
最后登录
1970-1-1
IP卡
狗仔卡
发表于 2014-4-26 20:21:36
|
显示全部楼层
表示油路不通,应用堵头堵死
回复
使用道具
举报
返回列表
高级模式
B
Color
Image
Link
Quote
Code
Smilies
您需要登录后才可以回帖
登录
|
立即注册
本版积分规则
发表回复
回帖后跳转到最后一页
浏览过的版块
工程机械
供求信息
液压油缸
快速回复
返回顶部
返回列表