搜索
金币充值液压资料下载官方微信群
查看: 7100|回复: 7

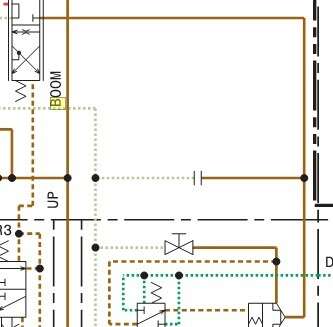
请问大师们,这个图中间跟电容一样的符号是什么意思呀!

[复制链接]
发表于 2014-10-25 21:09:53 | 显示全部楼层 |阅读模式
两个平行线,一个高压一个低压吗?

请问大师们,这个图中间跟电容一样的符号是什么意思呀!

请问大师们,这个图中间跟电容一样的符号是什么意思呀!
  • 打卡等级:无名新人
  • 打卡总天数:23
  • 打卡总奖励:122
发表于 2014-10-25 21:36:27 | 显示全部楼层
这里的线路是断开的,但多数可以附加一些元件,压力补偿器、溢流阀、单向阀等插装元件
回复

使用道具 举报

  • 打卡等级:无名新人
  • 打卡总天数:9
  • 打卡总奖励:56
发表于 2014-10-25 23:09:21 | 显示全部楼层
第一次见这种符号,学习了
回复

使用道具 举报

发表于 2014-10-26 14:45:16 | 显示全部楼层
{:8_250:}{:8_250:}{:8_250:}
回复

使用道具 举报

 楼主| 发表于 2014-10-26 16:56:17 | 显示全部楼层
胡子 发表于 2014-10-25 21:36
这里的线路是断开的,但多数可以附加一些元件,压力补偿器、溢流阀、单向阀等插装元件

原来是这样呀!通了,一个机器怎么这么多断路准备着呀!别的就没有呀!
回复

使用道具 举报

  • 打卡等级:以坛为家
  • 打卡总天数:801
  • 打卡总奖励:2218
发表于 2014-10-26 17:25:50 | 显示全部楼层
学习过了
回复

使用道具 举报

  • 打卡等级:无名新人
  • 打卡总天数:23
  • 打卡总奖励:122
发表于 2014-10-26 18:39:10 | 显示全部楼层
woainiyepan 发表于 2014-10-26 16:56
原来是这样呀!通了,一个机器怎么这么多断路准备着呀!别的就没有呀!

很多负载敏感式多路阀都有
回复

使用道具 举报

  • 打卡等级:无名新人
  • 打卡总天数:21
  • 打卡总奖励:56
发表于 2014-10-29 09:37:19 | 显示全部楼层
相当于预留口吧
回复

使用道具 举报

您需要登录后才可以回帖 登录 | 立即注册

本版积分规则