|
12786| 19
|
变量泵设定压力与系统压力关系疑问 |
|
|
| |
点评
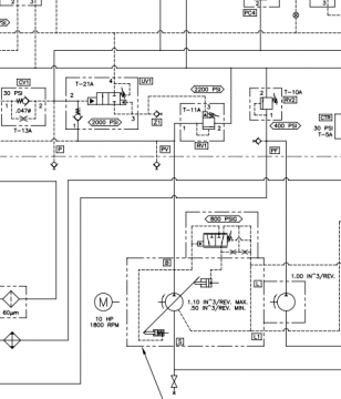
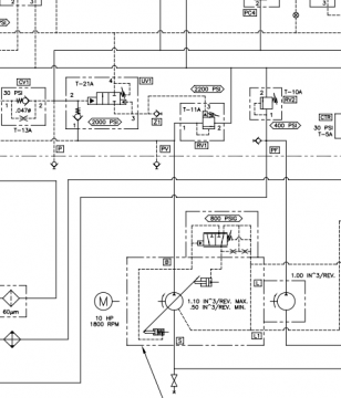
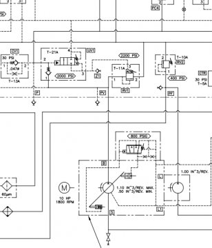
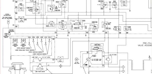
但是系统的压力怎么达到2000PSI呢
| ||
|
|
| |
| ||
| ||
|
|
| |
点评
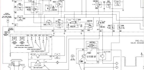
这个很详细了,其它的就是马达和液压缸这些执行元件了
| ||
|
|
点评
哦,RV1是2200PSI。还有,为什么系统压力2200,而蓄能器设定值是800PSI?请指教,多谢
这么一说明白多了。在系统到达800PSI时,泵开始小排量工作,系统压力上升逐渐减慢,当到达2000PSI时,UV1阀导通使溢流阀RV1的遥控口打开,当压力到达2300PSI时,溢流RV1泄压,泵出口压力下降到最小,压蓄能来保压
| |
| ||






IP卡
狗仔卡
发表于 2014-10-28 09:57:51
提升卡
置顶卡
变色卡
楼主
发表于 2014-10-28 22:56:41