搜索
金币充值液压资料下载官方微信群
查看: 4565|回复: 7

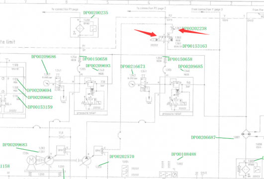
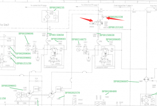
看不懂这个箭头指的地方的作用,谁能帮忙解答

[复制链接]
  • 打卡等级:初来乍到
  • 打卡总天数:38
  • 打卡总奖励:275
发表于 2015-3-13 14:59:42 | 显示全部楼层 |阅读模式
看不懂这个箭头指的地方的作用,谁能帮忙解答

看不懂这个箭头指的地方的作用,谁能帮忙解答

看不懂这个箭头指的地方的作用,谁能帮忙解答
  • 打卡等级:无名新人
  • 打卡总天数:11
  • 打卡总奖励:30
发表于 2015-3-13 20:06:17 | 显示全部楼层
电磁阀用来切换是否调速,节流阀与dfr泵进行流量控制,电磁阀进行切换,个人意见。
回复

使用道具 举报

  • 打卡等级:初来乍到
  • 打卡总天数:45
  • 打卡总奖励:329
发表于 2015-3-23 10:19:59 | 显示全部楼层
电磁换向阀切换实现快速慢速
回复

使用道具 举报

  • 打卡等级:初来乍到
  • 打卡总天数:38
  • 打卡总奖励:275
 楼主| 发表于 2015-3-23 11:32:35 | 显示全部楼层
zhengtianci08 发表于 2015-3-23 10:19
电磁换向阀切换实现快速慢速

但是下面的泵是A10vsoDFR
回复

使用道具 举报

  • 打卡等级:初来乍到
  • 打卡总天数:45
  • 打卡总奖励:329
发表于 2015-3-25 10:20:33 | 显示全部楼层
那个节流阀起什么作用   没有它是不是泵就不能调节排量了

点评

是的。  发表于 2015-3-26 01:12
回复

使用道具 举报

  • 打卡等级:初来乍到
  • 打卡总天数:45
  • 打卡总奖励:329
发表于 2015-3-28 16:27:52 | 显示全部楼层
zhengtianci08 发表于 2015-3-25 10:20
那个节流阀起什么作用   没有它是不是泵就不能调节排量了

看着回答就知道绝对是高手啊
回复

使用道具 举报

发表于 2015-3-31 09:54:20 | 显示全部楼层
阀位于默认位置时,dfr1的x口被堵死,流量阀不起作用,泵仅为恒压泵;换向后,x口接泵出口,且泵出口被堵死,泵实现高压切断,保压待命。还要看卸荷阀的作用,在此图中看不出来,得联系工况
回复

使用道具 举报

您需要登录后才可以回帖 登录 | 立即注册

本版积分规则