搜索
汉力达液压金币充值官方微信群液压资料下载
查看: 18796|回复: 25

液压油缸采用何种密封最好

  [复制链接]
  • 打卡等级:伴坛终老
  • 打卡总天数:1518
  • 打卡总奖励:4244
发表于 2015-4-13 17:22:59 | 显示全部楼层 |阅读模式
我公司用的液压缸老实出现内漏现象,就是活塞杆掉的东西老实往下滑落,油缸端口处用的时间长了也往外渗油。系统压力也不高,小于16MPa。液压系统是别人做的。我公司采用的是车辆用DG油缸。谁有好的密封结构帮忙介绍一下啊。急盼!!!
发表于 2015-4-13 18:07:59 | 显示全部楼层
给我你们的油缸图纸,我帮你看一下
回复

使用道具 举报

发表于 2015-4-13 18:45:02 | 显示全部楼层
普通油封就可以把
回复

使用道具 举报

  • 打卡等级:偶尔看看
  • 打卡总天数:119
  • 打卡总奖励:898
发表于 2015-4-13 19:16:55 | 显示全部楼层
麻烦你可以把图纸上传看看。一直內卸可能与设计和密封选型有关,还有缸筒看看是不是拉毛了。
回复

使用道具 举报

  • 打卡等级:初来乍到
  • 打卡总天数:44
  • 打卡总奖励:323
发表于 2015-4-13 21:54:32 | 显示全部楼层
露天还是室内用,什么密封圈,用多长时间,有无偏载现象?
回复

使用道具 举报

  • 打卡等级:以坛为家
  • 打卡总天数:667
  • 打卡总奖励:2051
发表于 2015-4-14 00:37:16 | 显示全部楼层
下落是阀的内泄,加个平衡阀,密封圈位要耐磨环。看下耐磨环是不是间隙大了
回复

使用道具 举报

  • 打卡等级:伴坛终老
  • 打卡总天数:1518
  • 打卡总奖励:4244
 楼主| 发表于 2015-4-14 08:37:55 | 显示全部楼层

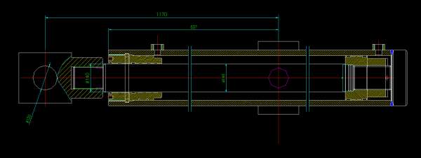
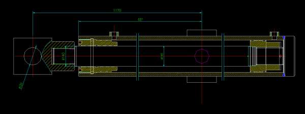
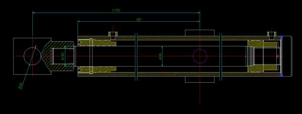
yg.jpg
回复

使用道具 举报

  • 打卡等级:伴坛终老
  • 打卡总天数:1518
  • 打卡总奖励:4244
 楼主| 发表于 2015-4-14 08:38:57 | 显示全部楼层
油缸图纸不是我画的,只有个大概
回复

使用道具 举报

  • 打卡等级:伴坛终老
  • 打卡总天数:1518
  • 打卡总奖励:4244
 楼主| 发表于 2015-4-14 08:40:56 | 显示全部楼层
cqzyouxiang 发表于 2015-4-13 21:54
露天还是室内用,什么密封圈,用多长时间,有无偏载现象?

室内用的。刚开始用一两天后就出现问题了
回复

使用道具 举报

发表于 2015-4-14 09:01:47 | 显示全部楼层
sideph 发表于 2015-4-14 08:37

首先,排除阀的问题,主密封只有一道,导线带比较多,缸的侧载是不是比较大,沟槽如不能变更,换个进口的主密封试试,如能变更,我给你个方案
回复

使用道具 举报

您需要登录后才可以回帖 登录 | 立即注册

本版积分规则