搜索
汉力达液压金币充值官方微信群液压资料下载
查看: 14651|回复: 14

系统图控制线(虚线)的作用

[复制链接]
  • 打卡等级:无名新人
  • 打卡总天数:2
  • 打卡总奖励:15
发表于 2015-6-26 09:13:17 | 显示全部楼层 |阅读模式

系统图控制线(虚线)的作用

系统图控制线(虚线)的作用

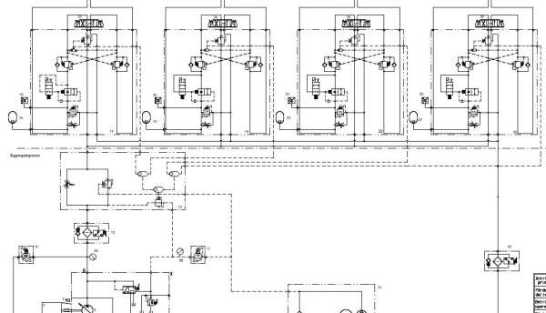
上图为一个机械手家具的液压系统图,采用的是轴向柱塞。4个阀块部分完全一样分别接4个液压缸,同步动作,我想不明白那些控制线是什么作用,即虚线,还请各位大神多多指教。多多发表个人见解。采用的是比例换向阀。
  • 打卡等级:初来乍到
  • 打卡总天数:32
  • 打卡总奖励:234
发表于 2015-6-26 09:31:59 | 显示全部楼层
负载敏感,压力补偿。
回复

使用道具 举报

  • 打卡等级:无名新人
  • 打卡总天数:22
  • 打卡总奖励:149
发表于 2015-6-27 10:12:46 | 显示全部楼层
也就相当于反馈信号吧
回复

使用道具 举报

  • 打卡等级:无名新人
  • 打卡总天数:22
  • 打卡总奖励:149
发表于 2015-6-27 10:14:06 | 显示全部楼层
控制回路,作为一个预设状况,满足条件时触发
回复

使用道具 举报

  • 打卡等级:无名新人
  • 打卡总天数:2
  • 打卡总奖励:15
 楼主| 发表于 2015-7-1 11:40:58 | 显示全部楼层
junfanhydraulic 发表于 2015-6-26 09:31
负载敏感,压力补偿。

您的意思是只要有一处压力过大,就会传递到变量泵,改变泵的排量吗?这些控制线的作用就是调节泵的排量吗
回复

使用道具 举报

  • 打卡等级:无名新人
  • 打卡总天数:2
  • 打卡总奖励:15
 楼主| 发表于 2015-7-1 11:41:54 | 显示全部楼层
wuxich 发表于 2015-6-27 10:12
也就相当于反馈信号吧

在此系统图中,能说的更具体一些吗
回复

使用道具 举报

  • 打卡等级:无名新人
  • 打卡总天数:2
  • 打卡总奖励:15
 楼主| 发表于 2015-7-1 11:42:37 | 显示全部楼层
wuxich 发表于 2015-6-27 10:14
控制回路,作为一个预设状况,满足条件时触发

在此处,控制线的具体作用是触发什么呢?
回复

使用道具 举报

  • 打卡等级:无名新人
  • 打卡总天数:22
  • 打卡总奖励:149
发表于 2015-7-2 09:03:55 | 显示全部楼层
就像你上面说的,传递信号改变流量这样
回复

使用道具 举报

  • 打卡等级:无名新人
  • 打卡总天数:22
  • 打卡总奖励:149
发表于 2015-7-2 09:04:00 | 显示全部楼层
就像你上面说的,传递信号改变流量这样
回复

使用道具 举报

  • 打卡等级:无名新人
  • 打卡总天数:2
  • 打卡总奖励:15
 楼主| 发表于 2015-7-2 12:42:03 | 显示全部楼层
谢谢
回复

使用道具 举报

您需要登录后才可以回帖 登录 | 立即注册

本版积分规则