设为首页
收藏本站
所有帖子
关于我们
联系我们
微信群
开启辅助访问
搜索
搜索
本版
用户
门户
Portal
资讯
液压资讯
观点
观点
产品
液压产品
技术
液压技术
合集
导读
Guide
下载
签到
金币
论坛
BBS
登录
立即注册
腾讯QQ
账号
自动登录
找回密码
密码
登录
立即注册
只需一步,快速开始
好友
动态
收藏
分享
帖子
日志
记录
相册
留言板
勋章
任务
道具
设置
退出
液压圈
»
论坛
›
液压系统
›
测试技术
›
此原理有何不可托
负载敏感资料下载
|
液压培训资料下载
|
液压样本下载
|
AMESim资料下载
|
力士乐资料下载
|
挖掘机资料下载
|
标准资料下载
|
多路阀资料下载
返回列表
查看:
6659
|
回复:
9
此原理有何不可托
[复制链接]
wqa197635
wqa197635
当前离线
积分
9
注册时间
2014-11-4
最后登录
1970-1-1
IP卡
狗仔卡
发表于 2016-1-11 11:04:13
|
显示全部楼层
|
阅读模式
此原理有何不可托
此原理有何不可托
回复
使用道具
举报
提升卡
置顶卡
变色卡
lipandeng
lipandeng
当前离线
积分
683
注册时间
2012-7-21
最后登录
1970-1-1
IP卡
狗仔卡
打卡等级:无名新人
打卡总天数:22
打卡总奖励:80
发表于 2017-1-4 15:37:51
|
显示全部楼层
不妥 电机油泵 型号没有
回复
使用道具
举报
lyn881219
lyn881219
当前离线
积分
167
注册时间
2011-8-9
最后登录
1970-1-1
IP卡
狗仔卡
打卡等级:偶尔看看
打卡总天数:81
打卡总奖励:226
发表于 2017-5-4 23:14:33
|
显示全部楼层
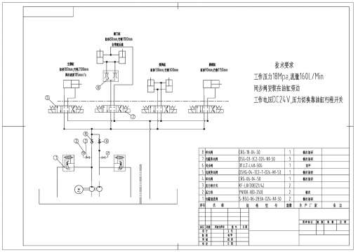
锁钩缸没锁(比如液控单向阀),靠O型中位机能锁止不可靠吧。还有提门缸,液压锁是在有杆腔还是无杆腔,同样的问题,液压锁配O型中位机能换向阀不合适
回复
使用道具
举报
綦天大圣
綦天大圣
当前离线
积分
138
注册时间
2017-8-8
最后登录
1970-1-1
IP卡
狗仔卡
打卡等级:无名新人
打卡总天数:2
打卡总奖励:5
发表于 2017-12-16 16:00:52
|
显示全部楼层
提门缸根据实际情况,同步阀考虑换用同步马达,在一个就是执行元件是否涉及原位保持问题,是否加液压锁。
回复
使用道具
举报
綦天大圣
綦天大圣
当前离线
积分
138
注册时间
2017-8-8
最后登录
1970-1-1
IP卡
狗仔卡
打卡等级:无名新人
打卡总天数:2
打卡总奖励:5
发表于 2017-12-16 16:01:59
|
显示全部楼层
电磁溢流阀的液控部门没看明白。
回复
使用道具
举报
綦天大圣
綦天大圣
当前离线
积分
138
注册时间
2017-8-8
最后登录
1970-1-1
IP卡
狗仔卡
打卡等级:无名新人
打卡总天数:2
打卡总奖励:5
发表于 2017-12-16 16:03:01
|
显示全部楼层
电磁溢流阀的液控部门没看明白。是泄压控制么
回复
使用道具
举报
a1392516745
a1392516745
当前离线
积分
12
注册时间
2015-4-15
最后登录
1970-1-1
IP卡
狗仔卡
打卡等级:无名新人
打卡总天数:18
打卡总奖励:35
发表于 2017-12-17 23:35:39
|
显示全部楼层
分流阀出口不能接一起
回复
使用道具
举报
zzfjct
zzfjct
当前离线
积分
1366
注册时间
2013-7-28
最后登录
1970-1-1
IP卡
狗仔卡
打卡等级:偶尔看看
打卡总天数:74
打卡总奖励:166
发表于 2017-12-18 10:53:42
|
显示全部楼层
本帖最后由 zzfjct 于 2017-12-18 10:54 编辑
问题太多了,流量、速度如何配置的,是否核算过小缸运行速度及合理性?分流截流阀无杆腔排油时压降过大,内置液压锁既有关闭问题又有打开问题。液压阀通径与无杆腔回油流量是否适应?都是基础问题。
回复
使用道具
举报
123trx
123trx
当前离线
积分
111
注册时间
2018-7-13
最后登录
1970-1-1
IP卡
狗仔卡
打卡等级:偶尔看看
打卡总天数:91
打卡总奖励:173
发表于 2018-8-9 10:58:20
|
显示全部楼层
没有流量调节阀,最右边的干的速度超过0.4m/s,冲击很大
回复
使用道具
举报
爱液压love
爱液压love
当前离线
积分
30
注册时间
2019-1-17
最后登录
1970-1-1
IP卡
狗仔卡
打卡等级:无名新人
打卡总天数:10
打卡总奖励:23
发表于 2019-3-27 21:18:39
|
显示全部楼层
换向阀和换向阀回油路应该用单向阀隔开
回复
使用道具
举报
返回列表
高级模式
B
Color
Image
Link
Quote
Code
Smilies
您需要登录后才可以回帖
登录
|
立即注册
本版积分规则
发表回复
回帖后跳转到最后一页
浏览过的版块
企业名录
快速回复
返回顶部
返回列表