搜索
汉力达液压金币充值官方微信群液压资料下载
查看: 9502|回复: 9

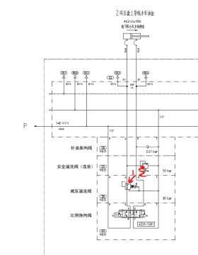
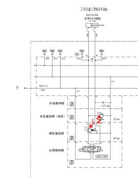
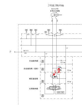
液压原理图 减压溢流阀

[复制链接]
  • 打卡等级:初来乍到
  • 打卡总天数:45
  • 打卡总奖励:147
发表于 2016-1-29 15:25:51 | 显示全部楼层 |阅读模式
本帖最后由 无为12 于 2016-1-29 15:58 编辑

液压原理图 减压溢流阀

液压原理图  减压溢流阀


有几个不清楚的地方:1,减压溢流阀什么时候是减压阀什么时候是溢流阀? 图  1,2(跟箭头垂直的线怎么理解)

                                   2,正常油缸驱动导线小车动作是  前进-加速-减速。请问导线小车没有减速动作为什么跟减压溢流阀有关?
  • 打卡等级:无名新人
  • 打卡总天数:1
  • 打卡总奖励:2
发表于 2016-1-29 16:10:35 | 显示全部楼层
所谓减压溢流阀实际上是三通减压阀,一个方向是减压,另一个方向是溢流阀。
回复

使用道具 举报

  • 打卡等级:无名新人
  • 打卡总天数:4
  • 打卡总奖励:13
发表于 2016-1-29 19:59:54 | 显示全部楼层
减压溢流阀是减压法出口压力超过减压阀设定压力时,减压阀部分溢流,以维持减压阀出口压力稳定,减压阀出口没有减速是由于减压溢流阀没有溢流,油没有溢流出去,输入到油缸里的流量没有减少,所以没有减速!
回复

使用道具 举报

  • 打卡等级:无名新人
  • 打卡总天数:13
  • 打卡总奖励:35
发表于 2016-1-30 22:49:00 | 显示全部楼层
请百度北京市盛维华液压技术有限公司,公司产品样本和液压阀使用手册里有关于减压溢流阀详细讲解
回复

使用道具 举报

  • 打卡等级:初来乍到
  • 打卡总天数:44
  • 打卡总奖励:323
发表于 2016-1-31 10:46:46 | 显示全部楼层
阀在起减压功能时,只是减压,没有自主调节流量的能力;泄点油,无关大局。是靠比例换向阀来调节流量的,即加速与减速。因此,是比例换向阀及其控制部分有问题。
力是加速的动因,但面对可能的质量或负载变化,要获得稳定的可控的加速性调节,在此处也只有通过控制流量因素可以实现。
回复

使用道具 举报

  • 打卡等级:常驻居民
  • 打卡总天数:349
  • 打卡总奖励:1339
发表于 2016-2-1 11:14:38 | 显示全部楼层
对于减压溢流阀没有接触过
回复

使用道具 举报

  • 打卡等级:初来乍到
  • 打卡总天数:45
  • 打卡总奖励:147
 楼主| 发表于 2016-2-5 11:32:07 | 显示全部楼层
cqzyouxiang 发表于 2016-1-31 10:46
阀在起减压功能时,只是减压,没有自主调节流量的能力;泄点油,无关大局。是靠比例换向阀来调节流量的,即 ...

实际中,换了减压溢流阀问题解决了,阀有卡阻。但是我不明白溢流阀怎么影响减速了?
回复

使用道具 举报

  • 打卡等级:初来乍到
  • 打卡总天数:44
  • 打卡总奖励:323
发表于 2016-2-5 20:25:42 | 显示全部楼层
无为12 发表于 2016-2-5 11:32
实际中,换了减压溢流阀问题解决了,阀有卡阻。但是我不明白溢流阀怎么影响减速了?

减速通常是在回油路建被压,或节流,或溢流。从图上看,只有左行可达到预期的减速作用,那么阀是处溢流状态。还是那句话,进油减压是不行的,加速还是比列换向阀起主要作用。
左行减速,溢流阀打开,左腔可看作恒压,与活塞杆速度方向相反,是匀减速。减速结束,阀也关闭,反过来说也行。把加速度定律具体到这个列子里,很容易理解。
回复

使用道具 举报

  • 打卡等级:无名新人
  • 打卡总天数:27
  • 打卡总奖励:69
发表于 2016-2-18 22:18:34 来自手机 | 显示全部楼层
无为12 发表于 2016-1-29 15:25
有几个不清楚的地方:1,减压溢流阀什么时候是减压阀什么时候是溢流阀? 图  1,2(跟箭头垂直的线怎么 ...

看着好像是比例减压阀,那2处都是泄油,感觉大家说得不对,自己找个样本研究先
回复

使用道具 举报

  • 打卡等级:无名新人
  • 打卡总天数:27
  • 打卡总奖励:69
发表于 2016-2-18 22:27:31 来自手机 | 显示全部楼层
bobayy 发表于 2016-2-18 22:18
看着好像是比例减压阀,那2处都是泄油,感觉大家说得不对,自己找个样本研究先

多说一句,没仔细看,比例减压阀控制一般状态下缸的出力,万一比例阀失控,就该安全溢流阀了保护工件了。是1 ,2两个阀,分别是比例减压阀和溢流阀
回复

使用道具 举报

您需要登录后才可以回帖 登录 | 立即注册

本版积分规则