设为首页
收藏本站
所有帖子
关于我们
联系我们
微信群
开启辅助访问
搜索
搜索
本版
用户
门户
Portal
资讯
液压资讯
观点
观点
产品
液压产品
技术
液压技术
合集
导读
Guide
下载
签到
金币
论坛
BBS
登录
立即注册
腾讯QQ
账号
自动登录
找回密码
密码
登录
立即注册
只需一步,快速开始
好友
动态
收藏
分享
帖子
日志
记录
相册
留言板
勋章
任务
道具
设置
退出
液压圈
»
论坛
›
液压系统
›
液压技术
›
液压油缸-负负载
负载敏感资料下载
|
液压培训资料下载
|
液压样本下载
|
AMESim资料下载
|
力士乐资料下载
|
挖掘机资料下载
|
标准资料下载
|
多路阀资料下载
1
2
/ 2 页
下一页
返回列表
查看:
7987
|
回复:
12
液压油缸-负负载
[复制链接]
zhaiyansen
zhaiyansen
当前离线
积分
40
注册时间
2013-5-2
最后登录
1970-1-1
IP卡
狗仔卡
打卡等级:无名新人
打卡总天数:8
打卡总奖励:31
发表于 2016-2-22 14:13:34
|
显示全部楼层
|
阅读模式
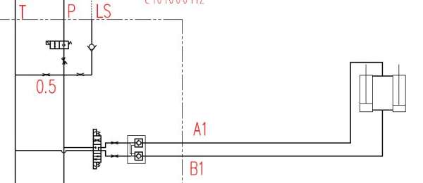
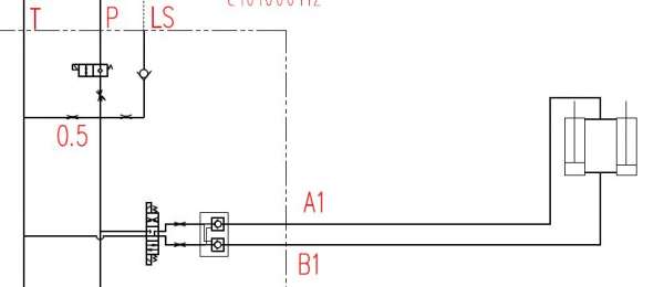
液压油缸-负负载
多路阀
的一联,液压缸在工作中,如果负载做正功的话,如何才能有效的控制液压缸?
液压油
,
如何
相关帖子
.
兼职液压油缸设计
.
请教关于哈威LHT系列平衡阀开启压力如何计算?
.
急求!!AMESim中deadvolume参数如何设置?
.
如何判断液压油泵效率变低了?
.
求助-如何计算一个外啮合齿轮泵排量
.
先导阀的选型
.
柱塞泵仿真出口压力脉动如何调节
.
如何提高AMESIM-SIMULINK仿真速度
.
大连力科石取液压油缸有杆腔正常,无杆腔振动大,请教高手,原因图附后。
.
请教大神:图中背压阀如何调整压力
回复
使用道具
举报
提升卡
置顶卡
变色卡
诚实可靠小郎君
诚实可靠小郎君
当前离线
积分
295
注册时间
2012-2-3
最后登录
1970-1-1
IP卡
狗仔卡
打卡等级:偶尔看看
打卡总天数:118
打卡总奖励:605
发表于 2016-2-22 16:39:45
|
显示全部楼层
活塞杆下降工况 负负载 用平衡阀(或至少背压阀) 否则动作就会断断续续 不稳定
回复
使用道具
举报
KAVL
KAVL
当前离线
积分
86
注册时间
2015-2-26
最后登录
1970-1-1
IP卡
狗仔卡
打卡等级:偶尔看看
打卡总天数:154
打卡总奖励:760
发表于 2016-2-23 08:44:37
|
显示全部楼层
节流阀和液压锁反拉,这样会影响液压锁的启闭响应速度
回复
使用道具
举报
wjw
wjw
当前离线
积分
72
注册时间
2016-2-19
最后登录
1970-1-1
IP卡
狗仔卡
发表于 2016-2-23 12:43:08
|
显示全部楼层
负负载工况用平衡阀,液压锁基本只用在负载保持工况
回复
使用道具
举报
lygbeyondgod
lygbeyondgod
当前离线
积分
565
注册时间
2015-6-3
最后登录
1970-1-1
IP卡
狗仔卡
打卡等级:常驻居民
打卡总天数:349
打卡总奖励:1339
发表于 2016-2-23 15:26:09
|
显示全部楼层
用平衡阀啊,平衡阀可以提供所需背压,使负载平稳降落
回复
使用道具
举报
junbinve
junbinve
当前离线
积分
3
注册时间
2016-3-11
最后登录
1970-1-1
IP卡
狗仔卡
发表于 2016-3-11 12:16:59
|
显示全部楼层
加比例流量阀,可以很有效的控制油缸
回复
使用道具
举报
mzwahe
mzwahe
当前离线
积分
88
注册时间
2011-2-28
最后登录
1970-1-1
IP卡
狗仔卡
发表于 2016-7-15 21:18:30
|
显示全部楼层
把液压锁换成平衡阀就OK了。
回复
使用道具
举报
yepzhx
yepzhx
当前离线
积分
2
注册时间
2021-3-1
最后登录
1970-1-1
IP卡
狗仔卡
发表于 2021-3-1 15:10:58
|
显示全部楼层
junbinve 发表于 2016-3-11 12:16
加比例流量阀,可以很有效的控制油缸
您好,比例流量阀可有品牌或资料?
回复
使用道具
举报
15822128920
15822128920
当前离线
积分
10
注册时间
2017-11-30
最后登录
1970-1-1
IP卡
狗仔卡
发表于 2021-3-1 21:17:49
|
显示全部楼层
将液压锁改为平衡阀
回复
使用道具
举报
yepzhx
yepzhx
当前离线
积分
2
注册时间
2021-3-1
最后登录
1970-1-1
IP卡
狗仔卡
发表于 2022-10-17 19:28:12
|
显示全部楼层
如果是下降负负载的话,加平衡阀可以解决7成的问题,但负载大且集中的话就需要对平衡阀进行改造:如流量型平衡阀,或可调节平衡阀
回复
使用道具
举报
下一页 »
1
2
/ 2 页
下一页
返回列表
高级模式
B
Color
Image
Link
Quote
Code
Smilies
您需要登录后才可以回帖
登录
|
立即注册
本版积分规则
发表回复
回帖后跳转到最后一页
浏览过的版块
供求信息
工程机械
资料下载
快速回复
返回顶部
返回列表