搜索
汉力达液压金币充值官方微信群液压资料下载
查看: 3058|回复: 4

AMESim仿真。囧,我本来不是这样的伸手党

[复制链接]
发表于 2016-5-10 19:19:39 | 显示全部楼层 |阅读模式
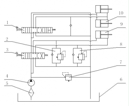
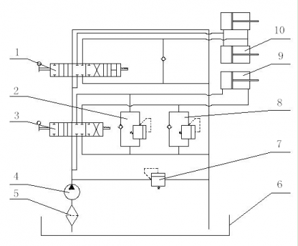
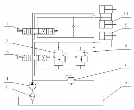
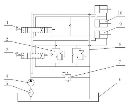
这是装载机工作液压系统的原理图。首先,我不会建模;后面我又想 要是模型建好了。怎样加负载  才能出来符合实际的流量图  压力图,毕竟铲斗上下过程中 负载变化规律也不知道。所以,蒙了。问老师,老师好像也不会AMESim所以   慌了{:8_252:}。  有热心的大神么

AMESim仿真。囧,我本来不是这样的伸手党

AMESim仿真。囧,我本来不是这样的伸手党
发表于 2016-5-10 21:56:01 | 显示全部楼层
请留个QQ号。可以交流下
回复

使用道具 举报

发表于 2016-5-11 11:45:37 | 显示全部楼层
两种办法
1。用AMESim的kinematik库来搭建Boom和Bucket的几何机构 (需要知道铰点的坐标,以及各个元件的重心位置等)
2。 如果可以测量实验数据可以直接把测量出来的大小腔压力用LookUp表放入模型中去。

希望可以帮助到你
回复

使用道具 举报

 楼主| 发表于 2016-5-12 10:48:14 | 显示全部楼层
wz0624nba 发表于 2016-5-11 11:45
两种办法
1。用AMESim的kinematik库来搭建Boom和Bucket的几何机构 (需要知道铰点的坐标,以及各个元件的 ...

谢谢{:8_250:}{:8_250:}{:8_250:}
回复

使用道具 举报

  • 打卡等级:无名新人
  • 打卡总天数:1
  • 打卡总奖励:4
发表于 2016-5-17 10:38:08 | 显示全部楼层
这个用基本模型就行了,图形对应关系很好,自己弄弄就好了
回复

使用道具 举报

您需要登录后才可以回帖 登录 | 立即注册

本版积分规则