搜索
汉力达液压金币充值官方微信群液压资料下载
查看: 12186|回复: 20

这个液压原理图你怎么看??

    [复制链接]
  • 打卡等级:无名新人
  • 打卡总天数:1
  • 打卡总奖励:3
发表于 2016-6-7 22:06:11 | 显示全部楼层 |阅读模式
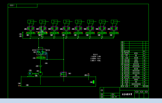
这是一个非标设备的液压站。要求实讨论,实现高低压功能。请高手看看,讨论发表发表意见

这个液压原理图你怎么看??

这个液压原理图你怎么看??

0000.rar

39.67 KB, 下载次数: 21

售价: 5 金钱  [记录]

这个液压原理图你怎么看??

发表于 2016-6-8 03:15:28 | 显示全部楼层
先把起码的画图工夫学会再搞设计吧。
回复

使用道具 举报

  • 打卡等级:即来则安
  • 打卡总天数:206
  • 打卡总奖励:646
发表于 2016-6-8 07:44:49 | 显示全部楼层
H中位机能的三位四通阀A\B出口都加溢流阀?莫非有不同的压力需求?否则没必要。另溢流阀最好加在电磁阀前。
回复

使用道具 举报

  • 打卡等级:无名新人
  • 打卡总天数:1
  • 打卡总奖励:1
发表于 2016-6-8 07:46:01 | 显示全部楼层
感觉这个原理很有问题的。(抛砖引玉
回复

使用道具 举报

  • 打卡等级:常驻居民
  • 打卡总天数:563
  • 打卡总奖励:2233
发表于 2016-6-8 08:58:37 | 显示全部楼层
你那应该是画的减压阀吧,不知道,顺序阀不是顺序阀减压阀不是减压阀。基本功有待提高
回复

使用道具 举报

  • 打卡等级:常驻居民
  • 打卡总天数:336
  • 打卡总奖励:944
发表于 2016-6-8 09:00:55 | 显示全部楼层
泵后加一个安全阀就好了
回复

使用道具 举报

  • 打卡等级:无名新人
  • 打卡总天数:1
  • 打卡总奖励:3
发表于 2016-6-8 10:20:53 | 显示全部楼层
话说液压缸好多啊
回复

使用道具 举报

  • 打卡等级:偶尔看看
  • 打卡总天数:95
  • 打卡总奖励:276
发表于 2016-6-8 10:50:40 | 显示全部楼层
图是有些问题。对泵没有保护,要是负载压力大于减压阀(没画对)设定压力,就要减压,但是负载压力小于设定压的时候,减压阀不起作用,调不了压力。望大神指点。
回复

使用道具 举报

  • 打卡等级:常驻居民
  • 打卡总天数:349
  • 打卡总奖励:1339
发表于 2016-6-8 11:12:40 | 显示全部楼层
建议你把液压元件的画法好好学习一下,这是很基本的东西
回复

使用道具 举报

  • 打卡等级:常驻居民
  • 打卡总天数:349
  • 打卡总奖励:1339
发表于 2016-6-8 11:14:13 | 显示全部楼层
这些东西,都是标准的,一般都是模块化,在做原理图的时候直接插入就可以,单从你的画法上看,你好像对液压元件的基本原理不是很懂,否则不会这样画
回复

使用道具 举报

您需要登录后才可以回帖 登录 | 立即注册

本版积分规则