搜索
金币充值液压资料下载官方微信群
查看: 4908|回复: 5

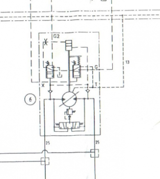
A6VM55HD1E/63W-VZ-B027bB斜轴向柱塞泵

  [复制链接]
发表于 2016-6-12 22:04:59 | 显示全部楼层 |阅读模式
这种变量马达最小转速是多少?可以为0么?控制活塞这个斜线往上还是往下为排量增大方向(活塞往马达方向接近排量增大还是减少)?如何判断?

A6VM55HD1E/63W-VZ-B027bB斜轴向柱塞泵

A6VM55HD1E/63W-VZ-B027bB斜轴向柱塞泵

A6VM55HD1E/63W-VZ-B027bB斜轴向柱塞泵

A6VM55HD1E/63W-VZ-B027bB斜轴向柱塞泵
发表于 2016-6-17 16:29:28 | 显示全部楼层
马达一般最大排量下启动,低速大扭,靠弹簧推动。即弹簧推开的方向为最大排量,弹簧受压缩的方向为最小排量。马达一般不工作在0排量,一般有最小排量限制,马达有转速限制,0排量就飞车了。另外排量太小时进入死区,不稳定,效率低,泵、马达高压、斜盘小偏角都为恶略工况。即靠泵、马达排量调节速比是有限。
回复

使用道具 举报

发表于 2016-6-19 08:18:22 | 显示全部楼层
柱塞马达最小转速不能为零,有最小转速限制的。
回复

使用道具 举报

 楼主| 发表于 2016-6-19 12:34:49 | 显示全部楼层
静静等待 发表于 2016-6-19 08:18
柱塞马达最小转速不能为零,有最小转速限制的。

好的,谢谢,我已经查阅资料了,好像可以
回复

使用道具 举报

发表于 2016-7-2 09:26:58 | 显示全部楼层
xiaoheiniupp 发表于 2016-6-19 12:34
好的,谢谢,我已经查阅资料了,好像可以

你说的是零排量马达,比如力士乐A6VE、丹佛斯H1B马达都可以零排量,但是这样的情况使用时要特别注意
回复

使用道具 举报

 楼主| 发表于 2016-7-3 21:10:39 | 显示全部楼层
静静等待 发表于 2016-7-2 09:26
你说的是零排量马达,比如力士乐A6VE、丹佛斯H1B马达都可以零排量,但是这样的情况使用时要特别注意

谢谢.......................
回复

使用道具 举报

您需要登录后才可以回帖 登录 | 立即注册

本版积分规则