设为首页
收藏本站
所有帖子
关于我们
联系我们
微信群
开启辅助访问
搜索
搜索
本版
用户
门户
Portal
资讯
液压资讯
观点
观点
产品
液压产品
技术
液压技术
合集
导读
Guide
下载
签到
金币
论坛
BBS
登录
立即注册
腾讯QQ
账号
自动登录
找回密码
密码
登录
立即注册
只需一步,快速开始
好友
动态
收藏
分享
帖子
日志
记录
相册
留言板
勋章
任务
道具
设置
退出
液压圈
»
论坛
›
液压元件
›
液压辅件
›
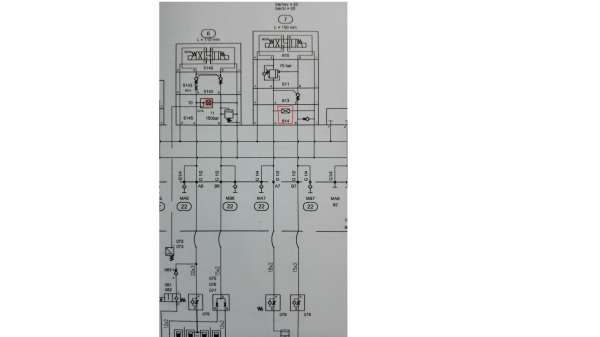
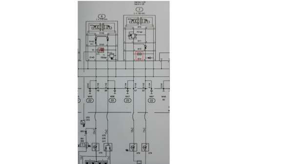
请问图中划红线框 614是什么阀
负载敏感资料下载
|
液压培训资料下载
|
液压样本下载
|
AMESim资料下载
|
力士乐资料下载
|
挖掘机资料下载
|
标准资料下载
|
多路阀资料下载
返回列表
查看:
4847
|
回复:
3
请问图中划红线框 614是什么阀
[复制链接]
wgj
wgj
当前离线
积分
68
注册时间
2015-7-1
最后登录
1970-1-1
IP卡
狗仔卡
打卡等级:无名新人
打卡总天数:10
打卡总奖励:48
发表于 2016-7-10 10:41:22
|
显示全部楼层
|
阅读模式
请问图中划红线框 614是什么阀
请问图中划红线框 614是什么阀 什么作用
请问图中划红线框 614是什么阀
回复
使用道具
举报
提升卡
置顶卡
变色卡
TM168
TM168
当前离线
积分
9
注册时间
2016-6-23
最后登录
1970-1-1
IP卡
狗仔卡
发表于 2016-7-10 19:18:39
|
显示全部楼层
应该是手动卸荷吧!当你设备维修的时候,还是会有压力憋在管路。
回复
使用道具
举报
wgj
wgj
当前离线
积分
68
注册时间
2015-7-1
最后登录
1970-1-1
IP卡
狗仔卡
打卡等级:无名新人
打卡总天数:10
打卡总奖励:48
楼主
|
发表于 2016-7-12 17:51:19
|
显示全部楼层
好像不是的 这个是Parker的元器件
回复
使用道具
举报
ihydraulics
ihydraulics
当前离线
积分
393
注册时间
2017-2-17
最后登录
1970-1-1
IP卡
狗仔卡
打卡等级:以坛为家
打卡总天数:764
打卡总奖励:2260
发表于 2017-2-25 21:51:44
|
显示全部楼层
应该是预留腔孔,用于功能的扩展,例如拧入压力阀等,一般用螺塞堵住。
回复
使用道具
举报
返回列表
高级模式
B
Color
Image
Link
Quote
Code
Smilies
您需要登录后才可以回帖
登录
|
立即注册
本版积分规则
发表回复
回帖后跳转到最后一页
快速回复
返回顶部
返回列表