设为首页
收藏本站
所有帖子
关于我们
联系我们
微信群
开启辅助访问
搜索
搜索
本版
用户
门户
Portal
资讯
液压资讯
观点
观点
产品
液压产品
技术
液压技术
合集
导读
Guide
下载
签到
金币
论坛
BBS
登录
立即注册
腾讯QQ
账号
自动登录
找回密码
密码
登录
立即注册
只需一步,快速开始
好友
动态
收藏
分享
帖子
日志
记录
相册
留言板
勋章
任务
道具
设置
退出
液压圈
»
论坛
›
液压系统
›
故障诊断
›
德国液压图纸看不明白,请指导!
负载敏感资料下载
|
液压培训资料下载
|
液压样本下载
|
AMESim资料下载
|
力士乐资料下载
|
挖掘机资料下载
|
标准资料下载
|
多路阀资料下载
返回列表
查看:
5844
|
回复:
5
德国液压图纸看不明白,请指导!
[复制链接]
qidian1982
qidian1982
当前离线
积分
66
注册时间
2012-8-13
最后登录
1970-1-1
IP卡
狗仔卡
打卡等级:无名新人
打卡总天数:1
打卡总奖励:2
发表于 2016-8-4 12:55:43
|
显示全部楼层
|
阅读模式
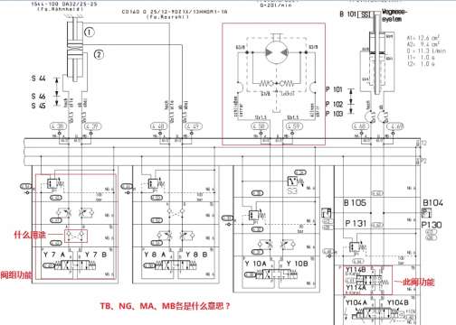
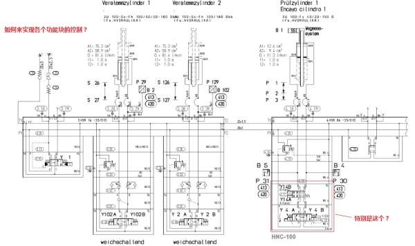
各位前辈:
这边有张液压图纸想向各位前辈请教一下,烦请详细解释一下,谢谢!
特别是如何来实现过程的控制,以及为什么是这样选型的。
德国
德国液压图纸看不明白,请指导!
德国液压图纸看不明白,请指导!
相关帖子
.
Liebherr吊机旋转速度慢
.
图书
.
德国液压件讲解之流量控制阀
.
德国液压件讲解之转子泵
.
万众瞩目 – VOSS Point DC 测压接头 德国福士
.
德国公司采用一种新型独特的设计将密封件转化成减振器
.
VOSWINKEL 快速接头上海卡普灵流体技术有限公司
.
INGOL SENSOR 来自德国的军工品质传感器
.
德国力士乐比例溢流阀
.
长期特价销售上海立新 北京华德 德国力士乐
回复
使用道具
举报
提升卡
置顶卡
变色卡
huanghaihua
huanghaihua
当前离线
积分
313
注册时间
2013-11-15
最后登录
1970-1-1
IP卡
狗仔卡
打卡等级:初来乍到
打卡总天数:58
打卡总奖励:229
发表于 2016-8-4 21:04:01
|
显示全部楼层
所说的功能都是起保压锁紧作用。建议楼主查找一些液压入门书看看吧!
回复
使用道具
举报
wp6750274
wp6750274
当前离线
积分
139
注册时间
2015-7-11
最后登录
1970-1-1
IP卡
狗仔卡
打卡等级:偶尔看看
打卡总天数:62
打卡总奖励:189
发表于 2016-8-21 15:01:44
|
显示全部楼层
图一比例阀带放大,器图2液压锁起保压作用,图2右边两位四通带两个电磁头
回复
使用道具
举报
梦的坚持
梦的坚持
当前离线
积分
43
注册时间
2016-11-22
最后登录
1970-1-1
IP卡
狗仔卡
打卡等级:初来乍到
打卡总天数:53
打卡总奖励:151
发表于 2016-11-26 15:13:30
|
显示全部楼层
图1作用是液压缸锁位,无泄漏二位四通电磁阀。图2左是正常y型电磁换向阀回路所用的双向互锁,双向调速系统。
回复
使用道具
举报
三石
三石
当前离线
积分
14
注册时间
2017-7-5
最后登录
1970-1-1
IP卡
狗仔卡
发表于 2017-7-6 17:38:20
|
显示全部楼层
用途液压锁,功能换向y型技能,此阀功能y104/y114他都得电O型锁
回复
使用道具
举报
kasaral
kasaral
当前离线
积分
13
注册时间
2016-1-1
最后登录
1970-1-1
IP卡
狗仔卡
发表于 2017-9-21 21:42:36
|
显示全部楼层
MA MB是测压点
回复
使用道具
举报
返回列表
高级模式
B
Color
Image
Link
Quote
Code
Smilies
您需要登录后才可以回帖
登录
|
立即注册
本版积分规则
发表回复
回帖后跳转到最后一页
浏览过的版块
伺服控制
液压泵马达
企业名录
工程机械
供求信息
液压技术
插装阀
液压电磁阀
AMESim
快速回复
返回顶部
返回列表