搜索
金币充值液压资料下载官方微信群
查看: 6808|回复: 7

旋转密封结构和密封件请教

[复制链接]
  • 打卡等级:常驻居民
  • 打卡总天数:458
  • 打卡总奖励:1443
发表于 2016-8-5 17:33:13 | 显示全部楼层 |阅读模式
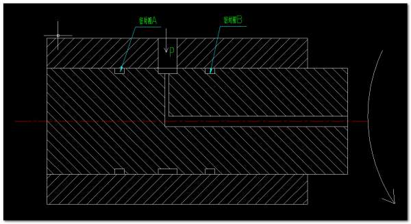
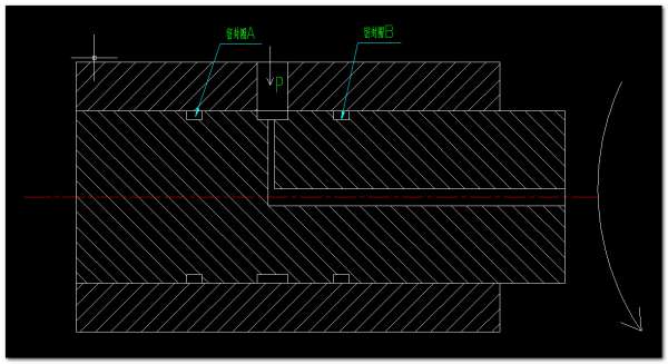
如图,芯轴旋转速度500r/min,P口压力3MPa,请教筒体与芯轴处的旋转密封件A和B选什么密封件?

旋转密封结构和密封件请教

旋转密封结构和密封件请教
  • 打卡等级:以坛为家
  • 打卡总天数:818
  • 打卡总奖励:2264
发表于 2016-8-8 08:03:25 | 显示全部楼层
找Parker的旋转密封件
回复

使用道具 举报

  • 打卡等级:即来则安
  • 打卡总天数:206
  • 打卡总奖励:646
发表于 2016-8-8 10:05:21 | 显示全部楼层
特伦堡的旋转密封也行,沟槽尺寸都有。
回复

使用道具 举报

发表于 2016-9-1 13:47:09 | 显示全部楼层
搞不懂为什么密封沟槽设计在轴上,那只能选择涨环了。如果在孔上的话,可以选择PTFE轴封,盘根,机封都可以。

评分

参与人数 1金钱 +10 收起 理由
吸铁石 + 10 赞同!

查看全部评分

回复

使用道具 举报

发表于 2016-10-25 09:47:58 | 显示全部楼层
这个硬件结构用旋转格莱圈比较合适,但是需要考虑下PV值,最好不要超过6
回复

使用道具 举报

发表于 2016-10-25 09:48:33 | 显示全部楼层
繁星点点 发表于 2016-8-8 10:05
特伦堡的旋转密封也行,沟槽尺寸都有。

是在说我们特瑞堡吗?{:9_235:}
回复

使用道具 举报

发表于 2016-10-28 19:26:23 | 显示全部楼层
专用旋转密件,网上很容易查到。 但如果线速度不超过十五米每秒,最好用格莱圈,因为容易买到,方便以后更换。如果密封要求低,就连密封件也省了吧。油压并不高,不知工况对内泄量的要求了。

不用密封件的话,这个形状简单,精度加工到一两丝是容易做到的,另外图上看,密封长度也是不短的。

比如叶片泵的的转子与配油盘间,柱塞泵的柱塞与缸筒间,毛的密封件,油压比你这个高多了。所以也不是一点内泄也不允许。
回复

使用道具 举报

  • 打卡等级:无名新人
  • 打卡总天数:23
  • 打卡总奖励:63
发表于 2016-10-29 15:13:56 | 显示全部楼层
jie0921 发表于 2016-9-1 13:47
搞不懂为什么密封沟槽设计在轴上,那只能选择涨环了。如果在孔上的话,可以选择PTFE轴封,盘根,机封都可以 ...

密封在轴上容易加工
回复

使用道具 举报

您需要登录后才可以回帖 登录 | 立即注册

本版积分规则