关于我们
联系我们
微信群
搜索
搜索
本版
用户
门户
Portal
资讯
液压资讯
观点
观点
产品
液压产品
技术
液压技术
合集
导读
Guide
下载
签到
金币
记录
Doing
论坛
BBS
登录
立即注册
腾讯QQ
账号
自动登录
找回密码
密码
登录
立即注册
收藏
帖子
日志
相册
勋章
道具
设置
退出
液压圈
»
论坛
›
液压元件
›
液压油缸
›
这是柱塞缸吗?感觉进油口有问题
返回列表
查看:
3848
|
回复:
2
这是柱塞缸吗?感觉进油口有问题
[复制链接]
sjj417
sjj417
当前离线
积分
42
注册时间
2013-6-24
最后登录
1970-1-1
IP卡
狗仔卡
打卡等级:无名新人
打卡总天数:3
打卡总奖励:9
发表于 2016-8-12 10:04:50
|
显示全部楼层
|
阅读模式
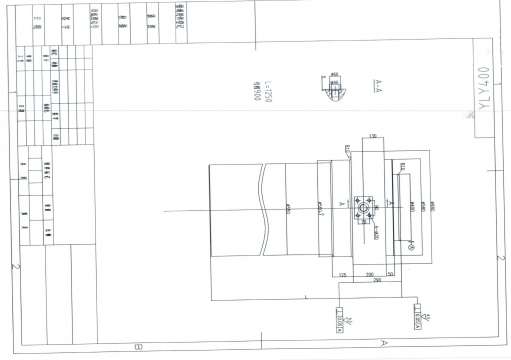
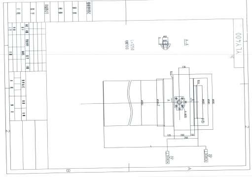
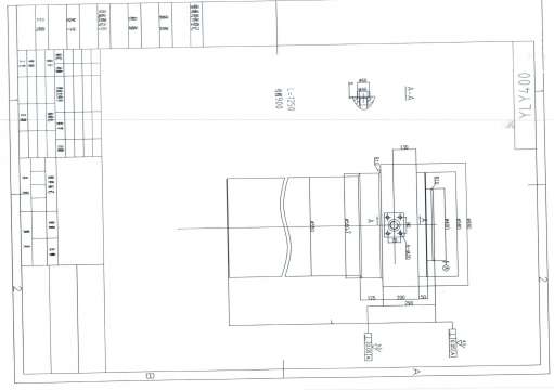
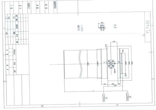
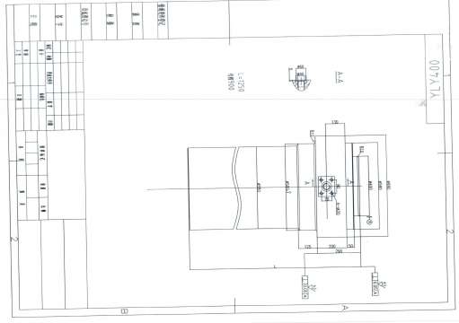
这是客户发过来的
油缸
图,感觉像柱塞油缸,但是油口位置又有点说不通,求大神指教。
这是柱塞缸吗?感觉进油口有问题
回复
使用道具
举报
提升卡
置顶卡
变色卡
西西米兰
西西米兰
当前离线
积分
1
注册时间
2016-8-12
最后登录
1970-1-1
IP卡
狗仔卡
发表于 2016-8-12 16:59:40
|
显示全部楼层
单作用缸,没看出啥问题,法兰式的油口上面接油管吗?还是?
回复
使用道具
举报
sjj417
sjj417
当前离线
积分
42
注册时间
2013-6-24
最后登录
1970-1-1
IP卡
狗仔卡
打卡等级:无名新人
打卡总天数:3
打卡总奖励:9
楼主
|
发表于 2016-8-15 14:27:05
|
显示全部楼层
西西米兰 发表于 2016-8-12 16:59
单作用缸,没看出啥问题,法兰式的油口上面接油管吗?还是?
就是油口位置觉得怪,正常油口应该在下面才对。
回复
使用道具
举报
返回列表
高级模式
B
Color
Image
Link
Quote
Code
Smilies
您需要登录后才可以回帖
登录
|
立即注册
本版积分规则
回帖后跳转到最后一页
浏览过的版块
伺服控制
快速回复
返回顶部
返回列表