搜索
金币充值液压资料下载官方微信群
查看: 5519|回复: 8

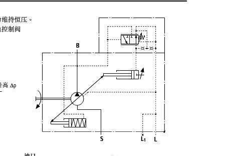
恒压变量泵

    [复制链接]
发表于 2016-10-12 16:51:36 | 显示全部楼层 |阅读模式
假如DR阀设定210BAR,是怎样正常工作的,小于210BAR是相当于定量泵吗,大于210BAR的时候,是直接到排量最小了吗。

恒压变量泵

恒压变量泵
  • 打卡等级:偶尔看看
  • 打卡总天数:81
  • 打卡总奖励:254
发表于 2016-10-12 18:30:38 | 显示全部楼层
是的,小于泵设定的压力阶段,泵相当于定量泵
回复

使用道具 举报

  • 打卡等级:以坛为家
  • 打卡总天数:817
  • 打卡总奖励:2263
发表于 2016-10-13 08:23:05 | 显示全部楼层
压力小于210bar,泵最大排量工作;压力在210bar附近时,泵排量按执行机构需求输出,需要多少流量输出多少流量,不需要则输出为零。
回复

使用道具 举报

 楼主| 发表于 2016-10-13 10:27:14 | 显示全部楼层
hebutllj 发表于 2016-10-13 08:23
压力小于210bar,泵最大排量工作;压力在210bar附近时,泵排量按执行机构需求输出,需要多少流量输出多少流 ...

当大于210BAR时   泵马上是最小排量吗
回复

使用道具 举报

  • 打卡等级:偶尔看看
  • 打卡总天数:99
  • 打卡总奖励:105
发表于 2016-10-13 15:02:02 | 显示全部楼层
压力不大于210的时候,流量是恒定的你可以看看恒压泵的流量曲线图
回复

使用道具 举报

发表于 2016-10-14 21:05:45 | 显示全部楼层
相当于泵的安全阀 安全阀压力210 但工作压力到200接近210压力时阀开始起作用 逐步开始切断变量  超过设定压力210 斜盘持平 零排量 高压待机  小于200压力时 为全排量  压力阀不起作用 200-210之间有个切换过程 排量不接近全排量(有个变量切换过程)
回复

使用道具 举报

  • 打卡等级:以坛为家
  • 打卡总天数:817
  • 打卡总奖励:2263
发表于 2016-10-26 16:00:11 | 显示全部楼层
拆的 发表于 2016-10-13 10:27
当大于210BAR时   泵马上是最小排量吗

不是马上最小排量,也不一定是最小排量。最小排量是零排量,但是那是还是输出阀需要的流量,你如果阀不需要流量,则减小到最小零排量。(以上基于无最小排量限制)
回复

使用道具 举报

  • 打卡等级:无名新人
  • 打卡总天数:6
  • 打卡总奖励:14
发表于 2016-11-10 20:48:28 | 显示全部楼层
DR恒压泵,在使用当中压力一直保持设定值,排量最大或者零,实现零流量,保压力。
回复

使用道具 举报

  • 打卡等级:无名新人
  • 打卡总天数:1
  • 打卡总奖励:1
发表于 2016-12-2 23:24:22 | 显示全部楼层
小于设定值,应该是定量工作,达到这个值,应该就开始变量,根据负载需要输出流量
回复

使用道具 举报

您需要登录后才可以回帖 登录 | 立即注册

本版积分规则