设为首页
收藏本站
所有帖子
关于我们
联系我们
微信群
开启辅助访问
搜索
搜索
本版
用户
门户
Portal
资讯
液压资讯
观点
观点
产品
液压产品
技术
液压技术
合集
导读
Guide
下载
签到
金币
论坛
BBS
登录
立即注册
腾讯QQ
账号
自动登录
找回密码
密码
登录
立即注册
只需一步,快速开始
好友
动态
收藏
分享
帖子
日志
记录
相册
留言板
勋章
任务
道具
设置
退出
液压圈
»
论坛
›
液压元件
›
液压油缸
›
单作用活塞能用格莱圈吗
负载敏感资料下载
|
液压培训资料下载
|
液压样本下载
|
AMESim资料下载
|
力士乐资料下载
|
挖掘机资料下载
|
标准资料下载
|
多路阀资料下载
1
2
3
/ 3 页
下一页
返回列表
查看:
18410
|
回复:
22
单作用活塞能用格莱圈吗
[复制链接]
sjj417
sjj417
当前离线
积分
42
注册时间
2013-6-24
最后登录
1970-1-1
IP卡
狗仔卡
打卡等级:无名新人
打卡总天数:3
打卡总奖励:9
发表于 2017-1-15 19:18:57
|
显示全部楼层
|
阅读模式
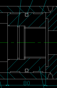
如题,如图,从活塞尾部进油,自重下降,只靠一个格莱圈可行吗?介质是水-乙二醇,格莱圈的密封圈为氟橡胶。求高手解答。
单作用活塞能用格莱圈吗
回复
使用道具
举报
提升卡
置顶卡
变色卡
亿通液压
亿通液压
当前离线
积分
2
注册时间
2017-1-17
最后登录
1970-1-1
IP卡
狗仔卡
发表于 2017-1-17 09:21:13
|
显示全部楼层
格莱圈可以用在单项密封,但是保压效果不是很好
回复
使用道具
举报
wangxinju710408
wangxinju710408
当前离线
积分
7
注册时间
2017-1-6
最后登录
1970-1-1
IP卡
狗仔卡
打卡等级:无名新人
打卡总天数:14
打卡总奖励:43
发表于 2017-1-17 09:43:51
|
显示全部楼层
不适合用格莱圈,静止时密封性能太差,容易出现渗漏
回复
使用道具
举报
ytj9926
ytj9926
当前离线
积分
4
注册时间
2017-1-17
最后登录
1970-1-1
IP卡
狗仔卡
发表于 2017-1-17 11:36:35
|
显示全部楼层
哦!原来这样啊,恩学习中。
回复
使用道具
举报
gd36522
gd36522
当前离线
积分
21
注册时间
2012-12-3
最后登录
1970-1-1
IP卡
狗仔卡
发表于 2017-1-17 16:48:06
|
显示全部楼层
没问题。买好点的格莱圈
回复
使用道具
举报
hallite
hallite
当前离线
积分
1
注册时间
2017-2-13
最后登录
1970-1-1
IP卡
狗仔卡
发表于 2017-2-13 16:53:28
|
显示全部楼层
格来圈表面环可以不用PTFE加CU的,这样保压效果好
回复
使用道具
举报
二月花
二月花
当前离线
积分
8
注册时间
2012-3-7
最后登录
1970-1-1
IP卡
狗仔卡
打卡等级:无名新人
打卡总天数:1
打卡总奖励:6
发表于 2017-4-14 17:23:30
|
显示全部楼层
水乙二醇用丁晴橡胶的Y圈就可以了
回复
使用道具
举报
霄云
霄云
当前离线
积分
30
注册时间
2010-9-14
最后登录
1970-1-1
IP卡
狗仔卡
打卡等级:初来乍到
打卡总天数:31
打卡总奖励:86
发表于 2017-5-12 01:43:27
|
显示全部楼层
格莱圈适合高压高速,保压效果不清楚
回复
使用道具
举报
bernie123456789
bernie123456789
当前离线
积分
111
注册时间
2016-10-22
最后登录
1970-1-1
IP卡
狗仔卡
发表于 2017-5-21 05:44:45
|
显示全部楼层
可以的,用在静压密封。
回复
使用道具
举报
clg20111024
clg20111024
当前离线
积分
18
注册时间
2016-2-24
最后登录
1970-1-1
IP卡
狗仔卡
打卡等级:无名新人
打卡总天数:1
打卡总奖励:3
发表于 2017-6-22 13:12:19
|
显示全部楼层
二月花 发表于 2017-4-14 17:23
水乙二醇用丁晴橡胶的Y圈就可以了
水乙二醇一般应用于高温环境下,丁晴橡胶应该是不能的
回复
使用道具
举报
下一页 »
1
2
3
/ 3 页
下一页
返回列表
高级模式
B
Color
Image
Link
Quote
Code
Smilies
您需要登录后才可以回帖
登录
|
立即注册
本版积分规则
发表回复
回帖后跳转到最后一页
浏览过的版块
资料下载
工程机械
供求信息
液压电磁阀
液压多路阀
插装阀
AMESim
快速回复
返回顶部
返回列表