搜索
汉力达液压金币充值官方微信群液压资料下载
查看: 5616|回复: 9

PVG多路阀

[复制链接]
发表于 2017-2-10 13:12:43 | 显示全部楼层 |阅读模式
[img]file:///C:\Users\lenovo\AppData\Roaming\Tencent\Users\1109569862\QQ\WinTemp\RichOle\H[G$EJ00TEJM478NLZUJ(~D.png[/img]问问

PVG多路阀

PVG多路阀



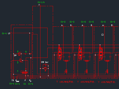
大神们,这是PVG100/32多路阀进油联,图纸各个阀芯都起到什么作用呀,非常谢谢  急急 在线等

 楼主| 发表于 2017-2-10 13:14:19 | 显示全部楼层

回复

使用道具 举报

  • 打卡等级:无名新人
  • 打卡总天数:5
  • 打卡总奖励:6
发表于 2017-2-11 15:31:08 | 显示全部楼层
1、用于电驱动的先导油源,可以理解为一个减压阀。2、逻辑阀;3、溢流阀(2和3组合限定多路阀P口的压力,Pmax=阀3设定值+逻辑阀2弹簧);4、过滤器,防止小流量阀3因为堵塞而影响阀的最高压力设定
回复

使用道具 举报

  • 打卡等级:无名新人
  • 打卡总天数:1
  • 打卡总奖励:1
发表于 2017-2-13 09:14:02 | 显示全部楼层
首先,你这原理图是错误的,每一联都应该有一个定差减压阀,这个才是负载敏感比例阀组,1是压力补偿阀,2.用于负载敏感的逻辑阀,3是LS路溢流阀4.过滤器,建议去看剖面图
回复

使用道具 举报

  • 打卡等级:无名新人
  • 打卡总天数:5
  • 打卡总奖励:6
发表于 2017-2-13 13:18:02 | 显示全部楼层
lisi1943 发表于 2017-2-13 09:14
首先,你这原理图是错误的,每一联都应该有一个定差减压阀,这个才是负载敏感比例阀组,1是压力补偿阀,2. ...

DANFOSS负载敏感比例阀组的压力补偿器都设计工作模块上,序号1在泵侧模块上,只是一个减压阀,给工作模块的阀芯换向提供油源,你说序1是压力补偿阀是不对。。。
回复

使用道具 举报

  • 打卡等级:无名新人
  • 打卡总天数:1
  • 打卡总奖励:1
发表于 2017-2-13 16:18:45 | 显示全部楼层
丹弗斯的阀不是先导的啊,并且在剖面图中未找到此阀
回复

使用道具 举报

  • 打卡等级:无名新人
  • 打卡总天数:5
  • 打卡总奖励:6
发表于 2017-2-13 18:01:08 | 显示全部楼层
lisi1943 发表于 2017-2-13 16:18
丹弗斯的阀不是先导的啊,并且在剖面图中未找到此阀

DANFOSS的PVG系列电控多路阀都是电控液来实现换向的,直动式电磁铁输出力太小,克服不了阀芯的稳态液动力,而这个序1就是为多路阀提供换向液控力的减压阀,压力设定为12bar或者20bar,原理图上可以看得出来。。。样本上也有写
回复

使用道具 举报

  • 打卡等级:无名新人
  • 打卡总天数:1
  • 打卡总奖励:1
发表于 2017-2-14 09:46:37 | 显示全部楼层
zhanghaibowin 发表于 2017-2-13 18:01
DANFOSS的PVG系列电控多路阀都是电控液来实现换向的,直动式电磁铁输出力太小,克服不了阀芯的稳态液动力 ...

原理上确实是先导油路,但未在剖面图中发现此油路及此阀
回复

使用道具 举报

 楼主| 发表于 2017-2-14 16:18:04 | 显示全部楼层
zhanghaibowin 发表于 2017-2-13 18:01
DANFOSS的PVG系列电控多路阀都是电控液来实现换向的,直动式电磁铁输出力太小,克服不了阀芯的稳态液动力 ...

但是PVG32系列 样本上的先导油口是通过减压阀,但是原理上没有显示泄油口呀,先导油原的泄油口
回复

使用道具 举报

  • 打卡等级:无名新人
  • 打卡总天数:5
  • 打卡总奖励:6
发表于 2017-2-14 17:06:04 | 显示全部楼层
拆的 发表于 2017-2-14 16:18
但是PVG32系列 样本上的先导油口是通过减压阀,但是原理上没有显示泄油口呀,先导油原的泄油口

小伙{:7_282:}说话要严谨呦!你发的原理图上有T口和T0口,T口是回油口,T0是泄油口,好不好....
回复

使用道具 举报

您需要登录后才可以回帖 登录 | 立即注册

本版积分规则