搜索
汉力达液压金币充值官方微信群液压资料下载
查看: 4463|回复: 9

大家看帮忙看一下这个阀的作用是什么可以取消吗。

[复制链接]
  • 打卡等级:初来乍到
  • 打卡总天数:39
  • 打卡总奖励:111
发表于 2017-8-5 10:27:48 | 显示全部楼层 |阅读模式
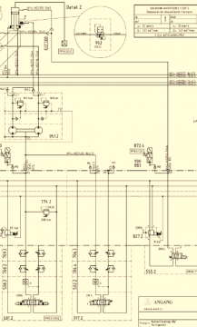
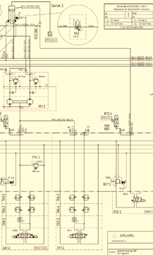
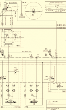
图中952这个阀什么作用啊,型号是:RS32-330。厂家:Beringer 可以取消吗。求大神指教。

大家看帮忙看一下这个阀的作用是什么可以取消吗。

大家看帮忙看一下这个阀的作用是什么可以取消吗。
  • 打卡等级:以坛为家
  • 打卡总天数:764
  • 打卡总奖励:2260
发表于 2017-8-5 13:40:08 | 显示全部楼层
防管路爆破阀,不建议去掉
回复

使用道具 举报

  • 打卡等级:无名新人
  • 打卡总天数:1
  • 打卡总奖励:3
发表于 2017-8-5 19:42:26 | 显示全部楼层
背压阀,防止断电后油缸由于自重而掉落。
回复

使用道具 举报

  • 打卡等级:偶尔看看
  • 打卡总天数:66
  • 打卡总奖励:158
发表于 2017-8-6 20:14:51 | 显示全部楼层
管路防破阀,高温场合防止管路破裂或脱落后大量油液流出引起火灾危险。
回复

使用道具 举报

发表于 2017-8-10 20:41:05 | 显示全部楼层
防爆阀,就是防止软管爆裂而大造成重力掉落,拆掉不影响正常工作,为安全考虑还是别拆了
回复

使用道具 举报

  • 打卡等级:初来乍到
  • 打卡总天数:39
  • 打卡总奖励:111
 楼主| 发表于 2017-8-11 17:58:54 | 显示全部楼层
谢谢各位 液压缸杠侧有一个夹紧器,用于定位。那这个阀的存在的意义换大吗。
回复

使用道具 举报

发表于 2017-8-30 10:58:43 | 显示全部楼层
防止油缸下落时超速的,不能去掉
回复

使用道具 举报

  • 打卡等级:无名新人
  • 打卡总天数:1
  • 打卡总奖励:1
发表于 2017-9-2 23:16:51 | 显示全部楼层
防爆阀,控制油管两端压差,两端压差过大直接断路。处于安全考虑不建议去掉。
回复

使用道具 举报

发表于 2017-9-3 12:03:30 | 显示全部楼层
鞍钢液压小学生 发表于 2017-8-11 17:58
谢谢各位 液压缸杠侧有一个夹紧器,用于定位。那这个阀的存在的意义换大吗。

这个东西吧  如果你有保压的要求的话是肯定不能去的  像我之前做过的运梁车运量过程中管路爆破了需要保证悬挂不蹋缩   所以这种情况下肯定是不能去的   但是你这个如果不怕破了漏油的话去了也无所谓
回复

使用道具 举报

发表于 2017-9-3 19:20:08 | 显示全部楼层
如果软管爆了,导致软管侧压力巨降,阀前后压差变大,可将阀门关闭,防止超速下降,实现事故定位
回复

使用道具 举报

您需要登录后才可以回帖 登录 | 立即注册

本版积分规则