设为首页
收藏本站
所有帖子
关于我们
联系我们
微信群
开启辅助访问
搜索
搜索
本版
用户
门户
Portal
资讯
液压资讯
观点
观点
产品
液压产品
技术
液压技术
合集
导读
Guide
下载
签到
金币
论坛
BBS
登录
立即注册
腾讯QQ
账号
自动登录
找回密码
密码
登录
立即注册
只需一步,快速开始
好友
动态
收藏
分享
帖子
日志
记录
相册
留言板
勋章
任务
道具
设置
退出
液压圈
»
论坛
›
液压系统
›
AMESim
›
请教大神关于超级元件引脚位置的问题
负载敏感资料下载
|
液压培训资料下载
|
液压样本下载
|
AMESim资料下载
|
力士乐资料下载
|
挖掘机资料下载
|
标准资料下载
|
多路阀资料下载
返回列表
查看:
3049
|
回复:
0
请教大神关于超级元件引脚位置的问题
[复制链接]
tczz
tczz
当前离线
积分
441
注册时间
2015-8-7
最后登录
1970-1-1
IP卡
狗仔卡
打卡等级:即来则安
打卡总天数:263
打卡总奖励:291
发表于 2017-8-15 15:28:18
|
显示全部楼层
|
阅读模式
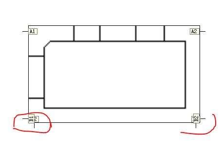
做了超级元件,自己画的外形引脚布置,可是存好后再调用的时候,又给我加了个框,而且引脚位置没法改,字母标签都被覆盖了,求大神指导,怎么把我自己画的引脚跟系统分配的引脚重合起来?
自己画的
调用后的
回复
使用道具
举报
提升卡
置顶卡
变色卡
返回列表
高级模式
B
Color
Image
Link
Quote
Code
Smilies
您需要登录后才可以回帖
登录
|
立即注册
本版积分规则
发表回复
回帖后跳转到最后一页
浏览过的版块
液压技术
资料下载
快速回复
返回顶部
返回列表