设为首页
收藏本站
所有帖子
关于我们
联系我们
微信群
开启辅助访问
搜索
搜索
本版
用户
门户
Portal
资讯
液压资讯
观点
观点
产品
液压产品
技术
液压技术
合集
导读
Guide
下载
签到
金币
论坛
BBS
登录
立即注册
腾讯QQ
账号
自动登录
找回密码
密码
登录
立即注册
只需一步,快速开始
好友
动态
收藏
分享
帖子
日志
记录
相册
留言板
勋章
任务
道具
设置
退出
液压圈
»
论坛
›
液压系统
›
液压技术
›
A4VSGHD1这个泵的原理是什么
负载敏感资料下载
|
液压培训资料下载
|
液压样本下载
|
AMESim资料下载
|
力士乐资料下载
|
挖掘机资料下载
|
标准资料下载
|
多路阀资料下载
返回列表
查看:
1100
|
回复:
1
A4VSGHD1这个泵的原理是什么
[复制链接]
zhengguole
zhengguole
当前离线
积分
163
注册时间
2013-1-7
最后登录
1970-1-1
IP卡
狗仔卡
打卡等级:无名新人
打卡总天数:1
打卡总奖励:1
发表于 2023-4-11 10:55:33
|
显示全部楼层
|
阅读模式
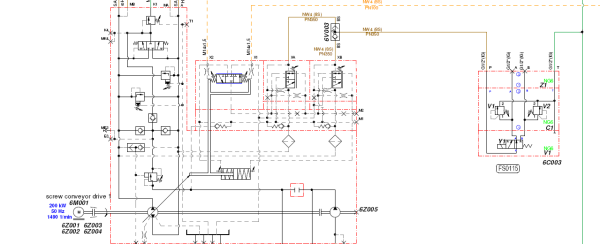
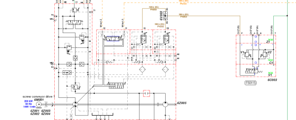
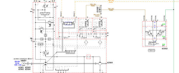
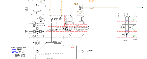
谁能告诉我刚开始是怎么保持中位的,我看着变量活塞式左边有油,右边没有油;另外XA ,XB那两个阀是什么作用,左右边的绿线是回油。
回复
使用道具
举报
提升卡
置顶卡
变色卡
13617147622
13617147622
当前离线
积分
257
注册时间
2015-6-26
最后登录
1970-1-1
IP卡
狗仔卡
打卡等级:即来则安
打卡总天数:274
打卡总奖励:340
发表于 2023-4-13 10:19:51
|
显示全部楼层
右边没有压力,左边压力加弹簧力等于右边弹簧力,平衡时就是中位,XA、XB是遥控溢流阀V1、V2的主阀芯,XA对应泵A管路溢流,XB对应泵B管路溢流
回复
使用道具
举报
返回列表
高级模式
B
Color
Image
Link
Quote
Code
Smilies
您需要登录后才可以回帖
登录
|
立即注册
本版积分规则
发表回复
回帖后跳转到最后一页
浏览过的版块
企业名录
液压辅件
插装阀
液压泵马达
液压多路阀
快速回复
返回顶部
返回列表