搜索
汉力达液压金币充值官方微信群液压资料下载
查看: 1377|回复: 6

请教疑惑问题

[复制链接]
  • 打卡等级:常驻居民
  • 打卡总天数:367
  • 打卡总奖励:536
发表于 2023-5-12 11:39:01 | 显示全部楼层 |阅读模式
本帖最后由 zjh0043 于 2023-5-12 11:40 编辑

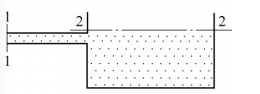
如图所示:流体由管道流向一个开口容器,容器截面2-2远远大于管道截面1-1,则截面2-2处液体流速可近似为零,压力与大气压相等,根据“速度高处压力低,速度低处压力高”的伯努利方程,截面 1-1面压力低于大气压,直观想象,既然截面2-2压力大于截面1-1压力,容器中的流体应该往管道倒灌才对,怎么会由管道流向容器?这不是与前面的“压力梯度推动流体运动”结论矛盾吗?
1.png
  • 打卡等级:无名新人
  • 打卡总天数:12
  • 打卡总奖励:12
发表于 2023-5-13 21:54:37 | 显示全部楼层
流到平齐就流不动了啊,继续注入需要有泵源啊
回复

使用道具 举报

  • 打卡等级:初来乍到
  • 打卡总天数:30
  • 打卡总奖励:74
发表于 2023-5-14 10:26:58 来自手机 | 显示全部楼层
从一般观察所得, 液体只会从油箱通过管子离开, 楼主的想像可成立的原因只能是因为管子连接到泵源。
回复

使用道具 举报

  • 打卡等级:常驻居民
  • 打卡总天数:367
  • 打卡总奖励:536
 楼主| 发表于 2023-5-16 10:37:54 | 显示全部楼层
游勇 发表于 2023-5-14 10:26
从一般观察所得, 液体只会从油箱通过管子离开, 楼主的想像可成立的原因只能是因为管子连接到泵源。 ...

管段1-1端连接泵,油源不断
回复

使用道具 举报

  • 打卡等级:常驻居民
  • 打卡总天数:367
  • 打卡总奖励:536
 楼主| 发表于 2023-5-16 10:39:04 | 显示全部楼层
dirina 发表于 2023-5-13 21:54
流到平齐就流不动了啊,继续注入需要有泵源啊

管段1-1端连泵,不断有油输入
回复

使用道具 举报

  • 打卡等级:即来则安
  • 打卡总天数:292
  • 打卡总奖励:405
发表于 2023-5-17 08:09:37 | 显示全部楼层
这是一个很好的问题。如果列出1-1与2-2之间的伯努利方程属实会得出截面 1-1面压力低于大气压的结论,如果是这样的话液体就不会向右侧移动。那么问题出在哪里呢?问题在于没有把伯努利方程用对!伯努利方程是基于能量守恒的方程,而目前的例子中液体在传输过程中能量并不守恒,是有能量损失的,损失点就在于管道与开口容器的结合处!在此处液体的流动方向发生剧烈变化,动能消失了,所以在列写1-1与2-2之间的伯努利方程时,方程的左侧应该减去一项能量损失值,才能与2-2的能量相等,而这个能量损失值就是1-1的动能!这样计算1-1截面的压力就会大于大气压,就对了。
回复

使用道具 举报

  • 打卡等级:无名新人
  • 打卡总天数:12
  • 打卡总奖励:12
发表于 2023-5-23 13:25:36 | 显示全部楼层
zjh0043 发表于 2023-5-16 10:39
管段1-1端连泵,不断有油输入

泵源压力由负载决定,永远大于负载,为什么会倒灌
回复

使用道具 举报

您需要登录后才可以回帖 登录 | 立即注册

本版积分规则