搜索
汉力达液压金币充值官方微信群液压资料下载
查看: 1312|回复: 12

插装阀通径选小后果

[复制链接]
  • 打卡等级:常驻居民
  • 打卡总天数:342
  • 打卡总奖励:402
发表于 2024-6-26 18:23:35 | 显示全部楼层 |阅读模式
系统回路中有一个总插装阀控制多缸同步动作,如果插装阀通径选小了,不能满足多个缸同时动作的流量,会有什么现象发生,会导致油缸抖动吗
回复

使用道具 举报

  • 打卡等级:以坛为家
  • 打卡总天数:701
  • 打卡总奖励:857
发表于 2024-6-27 08:30:58 | 显示全部楼层
阀的压损会增加  泵的负载增加  系统发热量增加 执行器速度变慢
回复

使用道具 举报

  • 打卡等级:即来则安
  • 打卡总天数:237
  • 打卡总奖励:237
发表于 2024-6-27 13:35:27 | 显示全部楼层
是靠什么方式同步的
回复

使用道具 举报

  • 打卡等级:偶尔看看
  • 打卡总天数:66
  • 打卡总奖励:158
发表于 2024-6-27 13:46:44 | 显示全部楼层
需要提供原理图。
回复

使用道具 举报

  • 打卡等级:常驻居民
  • 打卡总天数:342
  • 打卡总奖励:402
 楼主| 发表于 2024-7-1 17:53:55 | 显示全部楼层

每个缸都有一个比例阀,通过调节比例阀得开口度来同步
回复

使用道具 举报

  • 打卡等级:常驻居民
  • 打卡总天数:342
  • 打卡总奖励:402
 楼主| 发表于 2024-7-1 18:07:11 | 显示全部楼层
zzfjct 发表于 2024-6-27 13:46
需要提供原理图。

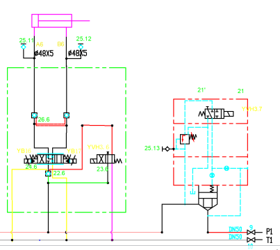
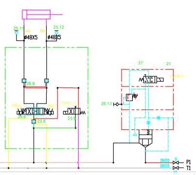
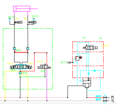
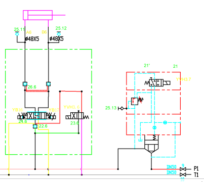
原理是主回路通过一个插装式减压阀后,并联6个同规格的缸

原理

原理

点评

通电减压,断电关闭。是一个常闭式插装减压阀。  发表于 2024-7-2 13:31
这个减压用法没问题吗?  发表于 2024-7-2 12:33
回复

使用道具 举报

  • 打卡等级:常驻居民
  • 打卡总天数:342
  • 打卡总奖励:402
 楼主| 发表于 2024-7-2 13:35:32 | 显示全部楼层
连接硬管和油缸的软管,是一根细长管,比硬管内径小了一倍,这会不会是抖动的主要原因,抖动过程中软管上下也震动。
回复

使用道具 举报

  • 打卡等级:以坛为家
  • 打卡总天数:694
  • 打卡总奖励:1109
发表于 2024-7-3 11:21:37 | 显示全部楼层
插装阀通径小,会造成油缸速度慢一些。不会造成油缸抖动。

油缸抖动,是因为同步不好的原因。一般是一个电磁阀控制,安装齿轮同步阀来同步油缸。
6个比例阀一起控制,但实际流量还是不一样的,尤其是使用时间长了以后。
修改PLC程序,单独给有问题的油缸比例阀信号数值进行补偿。

或者在有问题的油缸控制阀组上增加叠加单向节流阀,手动调节。
或者在有问题油缸油管上增加管式节流阀,手动调节。
回复

使用道具 举报

  • 打卡等级:常驻居民
  • 打卡总天数:342
  • 打卡总奖励:402
 楼主| 发表于 2024-7-3 14:25:33 | 显示全部楼层
海中游 发表于 2024-7-3 11:21
插装阀通径小,会造成油缸速度慢一些。不会造成油缸抖动。

油缸抖动,是因为同步不好的原因。一般是一个电 ...

谢谢您,正打算在阀组上安装节流阀试试,通过对液压系统的排查发现,插装阀50的通径能满足6缸同步流量要求(现场供货油缸比设计的要小,属于细长型(110/80-2100)
回复

使用道具 举报

  • 打卡等级:常驻居民
  • 打卡总天数:342
  • 打卡总奖励:402
 楼主| 发表于 2024-7-3 14:37:14 | 显示全部楼层
海中游 发表于 2024-7-3 11:21
插装阀通径小,会造成油缸速度慢一些。不会造成油缸抖动。

油缸抖动,是因为同步不好的原因。一般是一个电 ...

所有的油缸都抖动,另外,1.连接油缸和阀台之间的中间管路(硬管+软管)不合适,硬管太粗,软管太细,会不会引起抖动;2.比例阀P—A流量为100%,P—B流量为50%,把A,B口互换以后也会让抖动缓减不少,但抖动也还存在。比例阀开口大调到35%以上就抖动厉害,20%就没事,但20%速度太慢。
回复

使用道具 举报

您需要登录后才可以回帖 登录 | 立即注册

本版积分规则